
昆山租厂房的有福了~超值价,低至15元/平米起,大家都在抢!
建筑面积:93117.6㎡
招商信息:可分租
招商方向:装配制造、人工智能、生物医药、电子信息技术、新能源环保、仓储配套等企业
园区概况
区位优势
威人科技产业园所在地位于上海与苏州之间,百强县之首—昆山,陆家镇顺铁路99号,临近京沪高速陆家出口2公里。
产品赏鉴
整体欧式建筑风格,落地式采光,四周通透,花园式绿化设计,人工喷泉。
产业定位
项目信息
办公综合楼
性质:商务办公
1-6层,总面积11427.6㎡
配两部客梯,每层2个卫生间
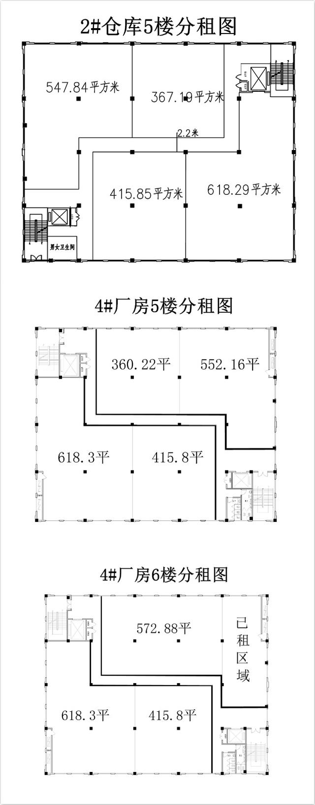
1#仓库、2#仓库
性质:仓储贸易
每栋11670㎡,1945㎡/层(可分租)
配3T、5T货梯,每层2个卫生间
1-5#厂房
性质:工业化
每栋11670㎡,1945㎡/层(可分租)
配3T、5T货梯,每层2个卫生间
其他
厂区配有专业的物业服务管理中心、餐厅、咖啡厅、超市等生活配套设施。消防为丙二类等级,配有4000kva用电量,提供车位600余个
项目优势
政府入驻补贴,园区直招
租金
低至15/平米/月起!!!
可根据客户的不同要求
按需分租
为客户节约每一分成本
广告





























