这个冬天不太冷!兰亭御园开工啦!
2018年,家里迎来了二胎妹妹,老大弟弟也不过才两岁都不到,两个娃都小都需要人看,无奈下,只能娘家婆家一家带一个。一家在城东一家在城西,每天我们两夫妻城东城西两头跑,平时我说两家离得太远的时候,老公都会反驳说昆山就那么大,还能远到哪里去!终于有一天,他也忍不住和我感慨说好像真的有点远,一来一回开车要小两个钟头好累啊。既然他也这么说了,我就顺水推舟把我一直以来换房的想法提上了日程。中间买房的一波多折就不多说了,今年入手的兰亭御园终于交房啦!马上开工!
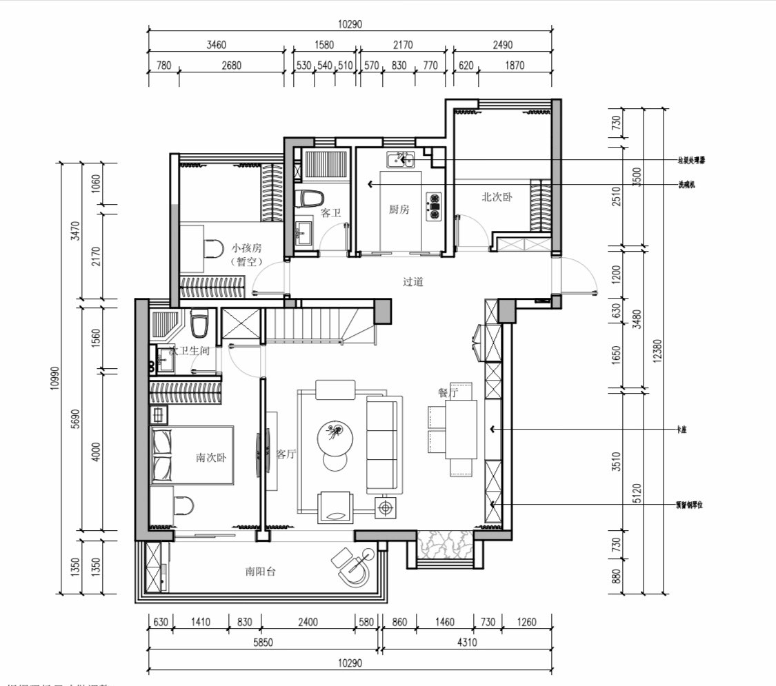
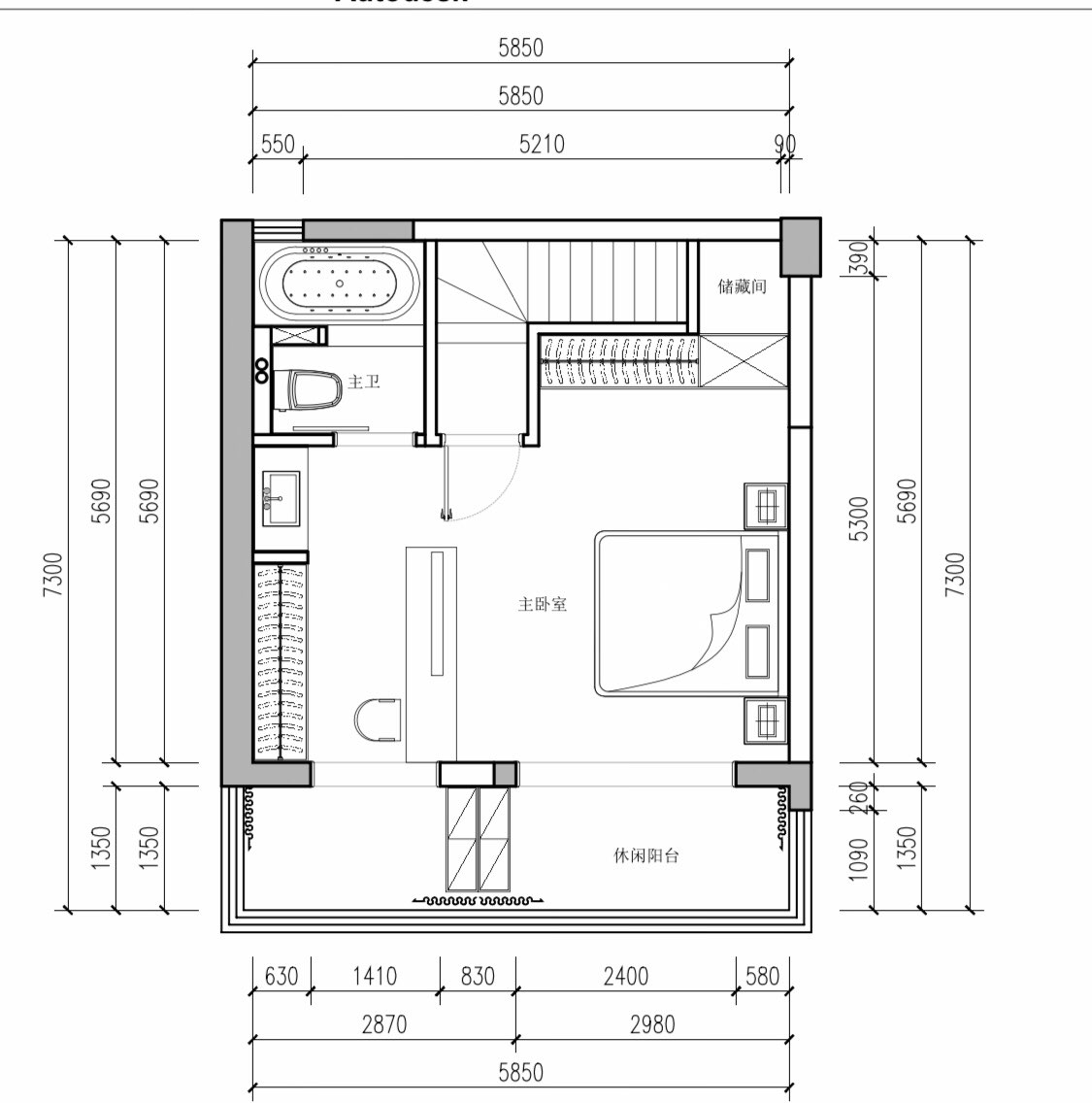
先上一波签约、开工和设计图!



这次对于装修公司的选择不多纠结了,还是选择了曾经为我们装修婚房的1918!装修公司千千万,我不说1918装修质量有多高,价格多么低,没有哪家装修公司能做到十全十美,我只需要一家沟通顺畅,有问题就抓紧改的公司!1918合作愉快!设计师歌子考虑问题很细致!合作愉快!


再来一波效果图!在此立帖,记录小家的逐步成型!




先上一波签约、开工和设计图!



这次对于装修公司的选择不多纠结了,还是选择了曾经为我们装修婚房的1918!装修公司千千万,我不说1918装修质量有多高,价格多么低,没有哪家装修公司能做到十全十美,我只需要一家沟通顺畅,有问题就抓紧改的公司!1918合作愉快!设计师歌子考虑问题很细致!合作愉快!


再来一波效果图!在此立帖,记录小家的逐步成型!

































