夜间模式
打赏中心
每日签到
幸运转盘
论坛帮助
活动聚焦
手机客户端
道具中心
商家认证
勋章中心
诚信认证
快捷通道
关闭
您还没有登录,快捷通道只有在登录后才能使用。
立即登录
还没有帐号? 赶紧
注册一个
论坛首页
论坛导航
商家
招聘
装修
昆山优选
小红娘
分类信息
二手房
昆山视窗
登录
注册
找回密码
帖子
用户
版块
帖子
搜索
论坛首页
>
论坛导航
>
酸甜苦辣话装修
>
大慈装饰
>
★★【大慈施工】10年+工程直管,2860+户施工顺利交付入住★ ★
发帖
回复
返回列表
上一页
1...
233
234
235
236
237
...269
下一页
到第
页
确认
新帖
5054835
阅读
2681
回复
★★【大慈施工】10年+工程直管,2860+户施工顺利交付入住★ ★
[复制链接]
扫描到手机
论坛小编教你如何扫二维码
上一主题
下一主题
美女离线
大慈装饰
UID:597111
注册时间
2013-05-29
最后登录
2025-10-12
发帖
20494
搜Ta的帖子
精华
0
昆币
2276
访问TA的空间
加好友
用道具
级别:
家装商家
发帖
20494
昆币
2276 枚
加关注
发消息
只看该作者
2340楼
发表于: 2022-07-21
,
来自:江苏省
0==
金塘园木工吊顶
本帖评分记录
共
条评分
爆料有奖!关注昆山论坛抖音号,抖音搜索“昆山论坛”,或搜索抖音号:ksbbs
大慈装饰 昆山推荐率85%以上,口碑品牌 热线:0512-57779948/18551100758 地址:昆山市九方城保利地产大楼1704-1710
引用
举报
美女离线
大慈装饰
UID:597111
注册时间
2013-05-29
最后登录
2025-10-12
发帖
20494
搜Ta的帖子
精华
0
昆币
2276
访问TA的空间
加好友
用道具
级别:
家装商家
发帖
20494
昆币
2276 枚
加关注
发消息
只看该作者
2341楼
发表于: 2022-07-23
,
来自:江苏省
0==
本帖评分记录
共
条评分
爆料有奖!关注昆山论坛抖音号,抖音搜索“昆山论坛”,或搜索抖音号:ksbbs
引用
举报
美女离线
大慈装饰
UID:597111
注册时间
2013-05-29
最后登录
2025-10-12
发帖
20494
搜Ta的帖子
精华
0
昆币
2276
访问TA的空间
加好友
用道具
级别:
家装商家
发帖
20494
昆币
2276 枚
加关注
发消息
只看该作者
2342楼
发表于: 2022-07-24
,
来自:江苏省
0==
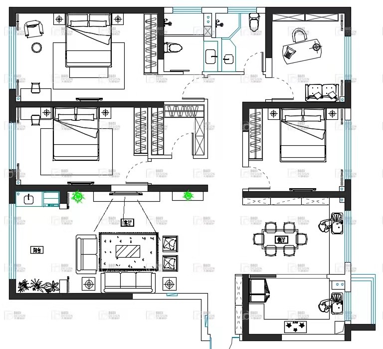
开工大吉
坐标│江苏·昆山
区域│
左岸尚海湾41#**6室
户型│四房二厅一厨二卫三阳
面积│167㎡
风格│现代
设计师丨王工
[ 此帖被大慈装饰在2022-07-24 11:00重新编辑 ]
本帖评分记录
共
条评分
爆料有奖!关注昆山论坛抖音号,抖音搜索“昆山论坛”,或搜索抖音号:ksbbs
引用
举报
美女离线
大慈装饰
UID:597111
注册时间
2013-05-29
最后登录
2025-10-12
发帖
20494
搜Ta的帖子
精华
0
昆币
2276
访问TA的空间
加好友
用道具
级别:
家装商家
发帖
20494
昆币
2276 枚
加关注
发消息
只看该作者
2343楼
发表于: 2022-07-25
,
来自:江苏省
0==
珠江名苑瓦工阶段
本帖评分记录
共
条评分
爆料有奖!关注昆山论坛抖音号,抖音搜索“昆山论坛”,或搜索抖音号:ksbbs
引用
举报
美女离线
大慈装饰
UID:597111
注册时间
2013-05-29
最后登录
2025-10-12
发帖
20494
搜Ta的帖子
精华
0
昆币
2276
访问TA的空间
加好友
用道具
级别:
家装商家
发帖
20494
昆币
2276 枚
加关注
发消息
只看该作者
2344楼
发表于: 2022-07-27
,
来自:江苏省
0==
本帖评分记录
共
条评分
爆料有奖!关注昆山论坛抖音号,抖音搜索“昆山论坛”,或搜索抖音号:ksbbs
引用
举报
美女离线
大慈装饰
UID:597111
注册时间
2013-05-29
最后登录
2025-10-12
发帖
20494
搜Ta的帖子
精华
0
昆币
2276
访问TA的空间
加好友
用道具
级别:
家装商家
发帖
20494
昆币
2276 枚
加关注
发消息
只看该作者
2345楼
发表于: 2022-07-28
,
来自:江苏省
0==
麒麟新村瓦工阶段
本帖评分记录
共
条评分
爆料有奖!关注昆山论坛抖音号,抖音搜索“昆山论坛”,或搜索抖音号:ksbbs
引用
举报
美女离线
大慈装饰
UID:597111
注册时间
2013-05-29
最后登录
2025-10-12
发帖
20494
搜Ta的帖子
精华
0
昆币
2276
访问TA的空间
加好友
用道具
级别:
家装商家
发帖
20494
昆币
2276 枚
加关注
发消息
只看该作者
2346楼
发表于: 2022-07-29
,
来自:江苏省
0==
北大资源水电材料进场,进入水电阶段!
本帖评分记录
共
条评分
爆料有奖!关注昆山论坛抖音号,抖音搜索“昆山论坛”,或搜索抖音号:ksbbs
引用
举报
美女离线
大慈装饰
UID:597111
注册时间
2013-05-29
最后登录
2025-10-12
发帖
20494
搜Ta的帖子
精华
0
昆币
2276
访问TA的空间
加好友
用道具
级别:
家装商家
发帖
20494
昆币
2276 枚
加关注
发消息
只看该作者
2347楼
发表于: 2022-07-30
,
来自:江苏省
0==
本帖评分记录
共
条评分
爆料有奖!关注昆山论坛抖音号,抖音搜索“昆山论坛”,或搜索抖音号:ksbbs
引用
举报
美女离线
大慈装饰
UID:597111
注册时间
2013-05-29
最后登录
2025-10-12
发帖
20494
搜Ta的帖子
精华
0
昆币
2276
访问TA的空间
加好友
用道具
级别:
家装商家
发帖
20494
昆币
2276 枚
加关注
发消息
只看该作者
2348楼
发表于: 2022-07-31
,
来自:江苏省
0==
田林苑水电全景
本帖评分记录
共
条评分
爆料有奖!关注昆山论坛抖音号,抖音搜索“昆山论坛”,或搜索抖音号:ksbbs
引用
举报
美女离线
大慈装饰
UID:597111
注册时间
2013-05-29
最后登录
2025-10-12
发帖
20494
搜Ta的帖子
精华
0
昆币
2276
访问TA的空间
加好友
用道具
级别:
家装商家
发帖
20494
昆币
2276 枚
加关注
发消息
只看该作者
2349楼
发表于: 2022-08-03
,
来自:江苏省
0==
本帖评分记录
共
条评分
爆料有奖!关注昆山论坛抖音号,抖音搜索“昆山论坛”,或搜索抖音号:ksbbs
引用
举报
发帖
回复
返回列表
上一页
1...
233
234
235
236
237
...269
下一页
到第
页
确认
https://ksbbs.com
访问内容超出本站范围,不能确定是否安全
继续访问
取消访问
快速回复
限76 字节
如果您提交过一次失败了,可以用”恢复数据”来恢复帖子内容
您目前还是游客,请
登录
或
注册
进入高级模式
文字颜色
发 布
回复后跳转到最后一页
上一个
下一个
隐藏
快速跳转
社会民生
聚焦昆山
立法直通车
昆山分类信息
昆山市教育局
昆山公交集团
昆山市交通运输局
消费维权
美丽昆山
昆山百事通
文明昆山
全民反诈
城市生活
玉山广场
昆友圈
走遍天下
昆山招聘
KBS车友会
昆山体育
房产装修
房产大家谈
房产租售
酸甜苦辣话装修
生活资讯
家有儿女
美食天地
花草宠物
交友婚恋
闲花文字
数码摄影
认证商家
论坛商家
昆山商情
社区站务
论坛事务
删帖声明
关闭
关闭
选中
1
篇
全选
喜欢就打赏个小红包吧
请选择打赏金额
1元
5元
10元
30元
100元
200元
您是游客,登陆后可以使用赏金钱包
赏金钱包支付
微信扫码支付
赏
我要提现
用微信扫描二维码完成支付
电话:0512-57993030
工作日 8:30-17:00在线
广告热线:18012662666
紧急联系:18888186330