夜间模式
打赏中心
每日签到
幸运转盘
论坛帮助
活动聚焦
手机客户端
道具中心
商家认证
勋章中心
诚信认证
快捷通道
关闭
您还没有登录,快捷通道只有在登录后才能使用。
立即登录
还没有帐号? 赶紧
注册一个
论坛首页
论坛导航
商家
招聘
装修
昆山优选
小红娘
分类信息
二手房
昆山视窗
登录
注册
找回密码
帖子
用户
版块
帖子
搜索
论坛首页
>
论坛导航
>
酸甜苦辣话装修
>
大慈装饰
>
【家装日记】 杉欣花园17# 199㎡—现代风格 —『朴素典雅』(开 ..
发帖
回复
返回列表
新帖
23408
阅读
4
回复
【家装日记】 杉欣花园17# 199㎡—现代风格 —『朴素典雅』(开工阶段)
[复制链接]
扫描到手机
论坛小编教你如何扫二维码
上一主题
下一主题
美女离线
大慈装饰
UID:597111
注册时间
2013-05-29
最后登录
2025-11-13
发帖
20498
搜Ta的帖子
精华
0
昆币
2288
访问TA的空间
加好友
用道具
级别:
家装商家
发帖
20498
昆币
2288 枚
加关注
发消息
只看楼主
使用道具
电梯直达
楼主
发表于: 2017-02-27
,
来自:江苏省
0==
杉欣花园17# 199㎡复式
合作模式:半包模式
设计单位:大慈设计A组
施工单位:
大慈大宅施工
软装设计:
DACI软装设计机构
项目经理:张工
项目监理:李工
小编语:业主选择相信大慈,主要是相信大慈的口碑与能力,在详细交谈后,根据顾客的喜好和特点,设计师就选定了现代偏新中式风格。
感谢杉欣花园王女士对
大慈装饰
的信任,开贴了,记录施工过程的同时也便于我们与业主沟通!
[ 此帖被大慈装饰在2017-02-27 16:34重新编辑 ]
本帖评分记录
凉白开
昆币
+1
-
2017-03-06
共
1
条评分
,
昆币
+1
热点推荐
【晚8点红包】课本知识点悄悄变化!你家娃的课本还有哪些不一样?
方便“到位”!昆山超10000个共享泊位来了,这样停
普通人的困扰,说到底还是没有原生家庭托举一切靠自己背后没有安全感
锦溪首家肯德基要来了,而且还是车速取餐厅
4套装修方案PK!昆山知名装修公司任你选
今天中午湖滨北路托普学校停车场,一浙江车牌堵住出口影响通行
本周精选:快递分拣.普工.兼职打包.业务助理.保安.维修工.叉车工.仓库管理
周末不如Town walk!中英版周庄名片来啦
周末天气晴好,出来赏秋
华丽转身,打卡热地!昆山出现多个沉浸式文创新地标……
冬韵周市①|周市暖冬“四件套”,给你刚好的温柔
大降温、有霜冻!昆山发布寒潮蓝色预警信号
荣樾和风认购盛启!95席纯墅藏品已取证
更真实更放心!昆山论坛婚恋平台上线
关注昆山论坛抖音官方号ksbbs爆料有奖
昆山论坛招聘网,随时随地找工作
一秒极速下载昆山论坛APP,好玩
昆山分类信息重磅发布 闲置可以换钱
爆料有奖!关注昆山论坛抖音号,抖音搜索“昆山论坛”,或搜索抖音号:ksbbs
大慈装饰 昆山推荐率85%以上,口碑品牌 热线:0512-57779948/18551100758 地址:昆山市九方城保利地产大楼1704-1710
回复
举报
美女离线
大慈装饰
UID:597111
注册时间
2013-05-29
最后登录
2025-11-13
发帖
20498
搜Ta的帖子
精华
0
昆币
2288
访问TA的空间
加好友
用道具
级别:
家装商家
发帖
20498
昆币
2288 枚
加关注
发消息
只看该作者
沙发
发表于: 2017-02-27
,
来自:江苏省
0==
设计说明:
本案为现代偏新中式风格。运用偏暗的墙面,沙发配合地板给人一种朴素的感觉,餐厅使用木质的桌椅,古朴却不失典雅,横平竖直的现代风格吊灯给朴素的家增添了现代风格的色彩。
空间格局:
复式三方
两厅两卫
开工时间:2017年2月27日
公司地址:昆山市柏庐北路156号(柏庐路与娄苑路交口)
公司电话:0512-57779948
公司网址:[url][urlend2]
本帖评分记录
共
条评分
爆料有奖!关注昆山论坛抖音号,抖音搜索“昆山论坛”,或搜索抖音号:ksbbs
引用
举报
美女离线
大慈装饰
UID:597111
注册时间
2013-05-29
最后登录
2025-11-13
发帖
20498
搜Ta的帖子
精华
0
昆币
2288
访问TA的空间
加好友
用道具
级别:
家装商家
发帖
20498
昆币
2288 枚
加关注
发消息
只看该作者
板凳
发表于: 2017-02-27
,
来自:江苏省
0==
效果图精彩展现
本帖评分记录
共
条评分
爆料有奖!关注昆山论坛抖音号,抖音搜索“昆山论坛”,或搜索抖音号:ksbbs
引用
举报
美女离线
大慈装饰
UID:597111
注册时间
2013-05-29
最后登录
2025-11-13
发帖
20498
搜Ta的帖子
精华
0
昆币
2288
访问TA的空间
加好友
用道具
级别:
家装商家
发帖
20498
昆币
2288 枚
加关注
发消息
只看该作者
地板
发表于: 2017-02-27
,
来自:江苏省
0==
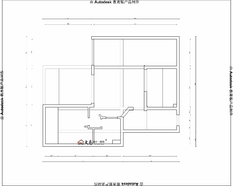
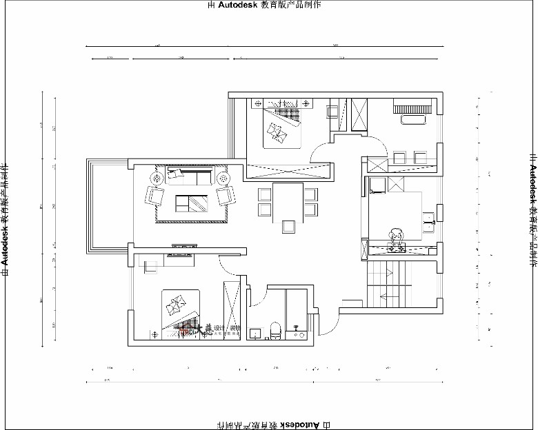
施工图精彩呈现
车库结构图
车库平面布置图
一层结构图
一层平面布置图
二层结构图
二层平面布置图
本帖评分记录
共
条评分
爆料有奖!关注昆山论坛抖音号,抖音搜索“昆山论坛”,或搜索抖音号:ksbbs
引用
举报
美女离线
大慈装饰
UID:597111
注册时间
2013-05-29
最后登录
2025-11-13
发帖
20498
搜Ta的帖子
精华
0
昆币
2288
访问TA的空间
加好友
用道具
级别:
家装商家
发帖
20498
昆币
2288 枚
加关注
发消息
只看该作者
4楼
发表于: 2017-02-27
,
来自:江苏省
0==
开工大吉
本帖评分记录
共
条评分
爆料有奖!关注昆山论坛抖音号,抖音搜索“昆山论坛”,或搜索抖音号:ksbbs
引用
举报
发帖
回复
返回列表
https://ksbbs.com
访问内容超出本站范围,不能确定是否安全
继续访问
取消访问
快速回复
限76 字节
如果您在写长篇帖子又不马上发表,建议存为草稿
您目前还是游客,请
登录
或
注册
进入高级模式
文字颜色
发 布
回复后跳转到最后一页
上一个
下一个
隐藏
快速跳转
社会民生
聚焦昆山
立法直通车
昆山分类信息
昆山市教育局
昆山公交集团
昆山市交通运输局
消费维权
美丽昆山
昆山百事通
文明昆山
全民反诈
城市生活
玉山广场
昆友圈
走遍天下
昆山招聘
KBS车友会
昆山体育
房产装修
房产大家谈
房产租售
酸甜苦辣话装修
生活资讯
家有儿女
美食天地
花草宠物
交友婚恋
闲花文字
数码摄影
认证商家
论坛商家
昆山商情
社区站务
论坛事务
删帖声明
关闭
关闭
选中
1
篇
全选
喜欢就打赏个小红包吧
请选择打赏金额
1元
5元
10元
30元
100元
200元
您是游客,登陆后可以使用赏金钱包
赏金钱包支付
微信扫码支付
赏
我要提现
用微信扫描二维码完成支付
电话:0512-57993030
工作日 8:30-17:00在线
广告热线:18012662666
紧急联系:18888186330