夜间模式
  • 22926阅读
  • 4回复

【家装日记】 玉湖新城花园16# 180㎡—现代简约 —(开工阶段) [复制链接]

上一主题 下一主题
美女离线大慈装饰
级别: 家装商家

发帖
20504
昆币
2301 枚
只看楼主 使用道具 电梯直达
楼主  发表于: 2017-02-28 , 来自:江苏省0==
玉湖新城花园16#    180㎡

合作模式:半包模式
设计单位:大慈设计B组
施工单位:大慈大宅施工
软装设计:DACI软装设计机构
项目经理:周工
项目监理:李工

     感谢玉湖新城花园翁先生对大慈装饰的信任,开贴了,记录施工过程的同时也便于我们与业主沟通!

本帖评分记录
烈酒烫心 昆币 +1 - 2018-05-12
凉白开 昆币 +1 - 2017-03-06
2条评分昆币+2
爆料有奖!关注昆山论坛抖音号,抖音搜索“昆山论坛”,或搜索抖音号:ksbbs
 
大慈装饰  昆山推荐率85%以上,口碑品牌  热线:0512-57779948/18551100758 地址:昆山市九方城保利地产大楼1704-1710
美女离线大慈装饰
级别: 家装商家

发帖
20504
昆币
2301 枚
沙发  发表于: 2017-02-28 , 来自:江苏省0==
空间格局:复式
开工时间:2017年2月28日
公司地址:昆山市柏庐北路156号(柏庐路与娄苑路交口)
公司电话:0512-57779948
公司网址:[url][urlend2]
爆料有奖!关注昆山论坛抖音号,抖音搜索“昆山论坛”,或搜索抖音号:ksbbs
 
美女离线大慈装饰
级别: 家装商家

发帖
20504
昆币
2301 枚
板凳  发表于: 2017-02-28 , 来自:江苏省0==

大慈施工模式:

☞纯半包模式(客户自行选择品牌,我们只负责选样,不参与采购的任何环节)
☞主材代购模式(客户在我们半包基础上,由我们参于客户认可的主材进行采购及后期协调,减轻客户负担)
☞全程托管模式(我们利用采购渠道资源,付出时间人力成本,承担采购风险,在获得我们合理利润的同时,
让客户节约时间,降低采购价格,抵抗采购风险)

大慈施工的目标:
☞在施工项目昆山地区行业占有率第一名
☞精准施工、口碑营销,增加回头客比例
☞所有问题因“我”而止的服务理念
☞客户的满意度行业居首

大慈施工的优势:
☞施工目标——完整地表达设计构想
☞施工组织——严密地组织施工过程
☞施工人员——专注于专业施工队伍
☞材料工艺——高档材料,国际化先进工艺
☞现场施工负责制——取代传统,行业居首
☞验收回访——双考核体系,重视客户满意度
☞文明施工——统一醒目的文施标准,细节之处见用心

爆料有奖!关注昆山论坛抖音号,抖音搜索“昆山论坛”,或搜索抖音号:ksbbs
 
美女离线大慈装饰
级别: 家装商家

发帖
20504
昆币
2301 枚
地板  发表于: 2017-02-28 , 来自:江苏省0==

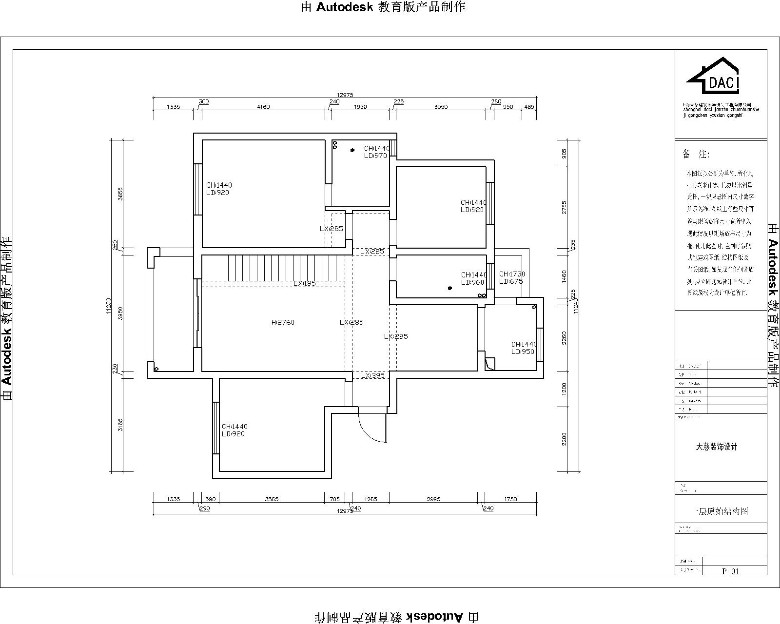
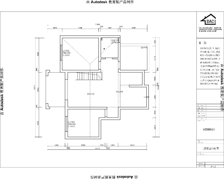
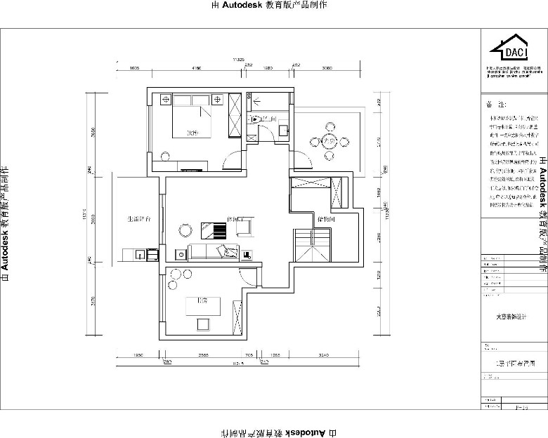
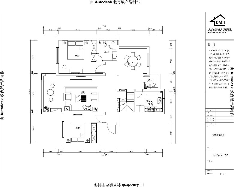
施工图分享
一层原始架构图

一层平面布置图

二层原始架构图

二层平面布置图

爆料有奖!关注昆山论坛抖音号,抖音搜索“昆山论坛”,或搜索抖音号:ksbbs
 
美女离线大慈装饰
级别: 家装商家

发帖
20504
昆币
2301 枚
4楼 发表于: 2017-02-28 , 来自:江苏省0==
开工大吉

爆料有奖!关注昆山论坛抖音号,抖音搜索“昆山论坛”,或搜索抖音号:ksbbs
 
快速回复
限76 字节
如果您提交过一次失败了,可以用”恢复数据”来恢复帖子内容
 
上一个 下一个