夜间模式
  • 39734阅读
  • 31回复

[装修讨论]城东夏驾园装修 [复制链接]

上一主题 下一主题
离线田志龙
发帖
1053
昆币
1181 枚
10楼 发表于: 2018-03-02 , 来自:江苏省0==
    
爆料有奖!关注昆山论坛抖音号,抖音搜索“昆山论坛”,或搜索抖音号:ksbbs
 
发帖
11504
昆币
15072 枚
11楼 发表于: 2018-03-02 , 来自:江苏省0==
您可以上昆山论坛装修板块报名,还能获得4份一对一户型设计,可以帮您免费去量房、出设计方案和报价,还有论坛监理帮你监工哦~~~
爆料有奖!关注昆山论坛抖音号,抖音搜索“昆山论坛”,或搜索抖音号:ksbbs
 
离线lgshwxc
级别: 昆山过客
发帖
19
昆币
31 枚
12楼 发表于: 2018-03-03 , 来自:上海市0==
大家看看如下设计如何?给点意见,比如卫生间的门如何拆等?
爆料有奖!关注昆山论坛抖音号,抖音搜索“昆山论坛”,或搜索抖音号:ksbbs
 
帅哥离线376933615
级别: 昆山过客
发帖
12
昆币
13 枚
13楼 发表于: 2018-03-03 , 来自:江苏省0==
厨房不够用吧都没地方切菜什么的,卫生间没淋浴房?
爆料有奖!关注昆山论坛抖音号,抖音搜索“昆山论坛”,或搜索抖音号:ksbbs
 
级别: 禁止发言
发帖
19560
昆币
18336 枚
14楼 发表于: 2018-03-04 , 来自:江苏省0==
用户被禁言,该主题自动屏蔽!
爆料有奖!关注昆山论坛抖音号,抖音搜索“昆山论坛”,或搜索抖音号:ksbbs
 
级别: 禁止发言
发帖
19560
昆币
18336 枚
15楼 发表于: 2018-03-04 , 来自:江苏省0==
用户被禁言,该主题自动屏蔽!
爆料有奖!关注昆山论坛抖音号,抖音搜索“昆山论坛”,或搜索抖音号:ksbbs
 
帅哥离线升洲装饰
级别: 禁止发言
管辖: 升洲装饰
发帖
5159
昆币
10226 枚
16楼 发表于: 2018-03-04 , 来自:江苏省0==
用户被禁言,该主题自动屏蔽!
爆料有奖!关注昆山论坛抖音号,抖音搜索“昆山论坛”,或搜索抖音号:ksbbs
 
级别: 禁止发言
发帖
19560
昆币
18336 枚
17楼 发表于: 2018-03-05 , 来自:江苏省0==
用户被禁言,该主题自动屏蔽!
爆料有奖!关注昆山论坛抖音号,抖音搜索“昆山论坛”,或搜索抖音号:ksbbs
 
离线lgshwxc
级别: 昆山过客
发帖
19
昆币
31 枚
18楼 发表于: 2018-03-05 , 来自:上海市0==
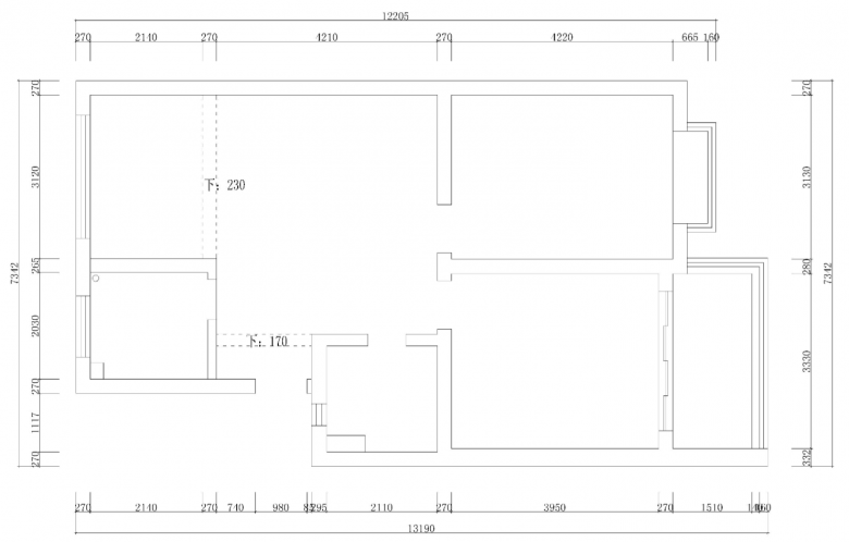
如下是户型图,由2房2厅改3房,各位如有好的方案发上来看看,和我一样的户型有很多。
[ 此帖被lgshwxc在2018-03-05 18:31重新编辑 ]
爆料有奖!关注昆山论坛抖音号,抖音搜索“昆山论坛”,或搜索抖音号:ksbbs
 
离线lgshwxc
级别: 昆山过客
发帖
19
昆币
31 枚
19楼 发表于: 2018-03-05 , 来自:上海市0==
回 376933615 的帖子
376933615:厨房不够用吧都没地方切菜什么的,卫生间没淋浴房? (2018-03-03 14:34)

这个只是看看户型怎么改,切菜的地方和淋浴房肯定有
[ 此帖被lgshwxc在2018-03-05 18:32重新编辑 ]
爆料有奖!关注昆山论坛抖音号,抖音搜索“昆山论坛”,或搜索抖音号:ksbbs
 
快速回复
限76 字节
如果您提交过一次失败了,可以用”恢复数据”来恢复帖子内容
 
上一个 下一个