夜间模式
打赏中心
每日签到
幸运转盘
论坛帮助
活动聚焦
手机客户端
道具中心
商家认证
勋章中心
诚信认证
快捷通道
关闭
您还没有登录,快捷通道只有在登录后才能使用。
立即登录
还没有帐号? 赶紧
注册一个
论坛首页
论坛导航
商家
招聘
装修
昆山优选
小红娘
分类信息
二手房
昆山视窗
登录
注册
找回密码
帖子
用户
版块
帖子
搜索
论坛首页
>
论坛导航
>
昆山商情
>
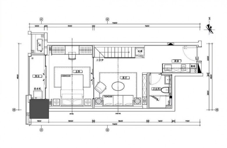
北欧,小复式。(看起来简单,就是最高明的设计)设计费,一部ip ..
发帖
回复
返回列表
新帖
图片投票
5064
阅读
0
回复
[装修]
北欧,小复式。(看起来简单,就是最高明的设计)设计费,一部iphone 的价钱
[复制链接]
扫描到手机
论坛小编教你如何扫二维码
上一主题
下一主题
帅哥离线
印象水仙设计
UID:788292
注册时间
2017-05-09
最后登录
2026-01-03
发帖
11326
搜Ta的帖子
精华
0
昆币
19395
访问TA的空间
加好友
用道具
级别:
家装商家
发帖
11326
昆币
19395 枚
加关注
发消息
只看楼主
使用道具
电梯直达
楼主
发表于: 2018-03-29
,
来自:江苏省
0==
你们喜欢这种小复式吗?
其实,房子不在于大小,而是在于住的是否舒适!
认同我的观点的朋友记得给我留言哦
内容来自 iPhone 手机客户端
本帖评分记录
共
条评分
热点推荐
就在天地华城彩票点!又有昆山人喜中657万
昆山化肥厂门前的岁月光影留痕
老婆公司订单暴增,年终奖提前发了!6000到20万不等
天冷腊肉整起来……小时候过年前,家家户户都要做点
4套装修方案PK!昆山知名装修公司任你选
你知道吗?昆山是如何引进“三线”企业的
1月4日招聘:销售业务.旅游顾问.超市店员.前台.保安.保洁.门卫.财务助理.文员
验收即交付,交付即入驻!富民载体二期(裕同定建)项目跑出千灯速度
火力全开!昆山大提速,未来出行更方便了!
心动的offer,拿下!昆山架起人才与产业双向奔赴的“高速路”
江苏最低工资涨了!170元的涨幅,够不够对冲物价?
不需要00后断亲,我这代能断的全断了吧
昆山首个宋韵全维实景示范区
更真实更放心!昆山论坛婚恋平台上线
关注昆山论坛抖音官方号ksbbs爆料有奖
昆山论坛招聘网,随时随地找工作
一秒极速下载昆山论坛APP,好玩
昆山分类信息重磅发布 闲置可以换钱
爆料有奖!关注昆山论坛抖音号,抖音搜索“昆山论坛”,或搜索抖音号:ksbbs
请点击【印象水仙室内设计】看更多实景作品集! 大Boss的电话(微信) 金钟 15962697359
回复
举报
发帖
回复
返回列表
https://ksbbs.com
访问内容超出本站范围,不能确定是否安全
继续访问
取消访问
快速回复
限76 字节
批量上传需要先选择文件,再选择上传
您目前还是游客,请
登录
或
注册
进入高级模式
文字颜色
发 布
回复后跳转到最后一页
上一个
下一个
隐藏
快速跳转
社会民生
聚焦昆山
立法直通车
昆山分类信息
昆山市教育局
昆山公交集团
昆山市交通运输局
消费维权
美丽昆山
昆山百事通
文明昆山
全民反诈
城市生活
玉山广场
昆友圈
走遍天下
昆山招聘
KBS车友会
昆山体育
房产装修
房产大家谈
房产租售
酸甜苦辣话装修
生活资讯
家有儿女
美食天地
花草宠物
交友婚恋
闲花文字
数码摄影
认证商家
论坛商家
昆山商情
社区站务
论坛事务
删帖声明
关闭
关闭
选中
1
篇
全选
喜欢就打赏个小红包吧
请选择打赏金额
1元
5元
10元
30元
100元
200元
您是游客,登陆后可以使用赏金钱包
赏金钱包支付
微信扫码支付
赏
我要提现
用微信扫描二维码完成支付
电话:0512-57993030
工作日 8:30-17:00在线
广告热线:18012662666
紧急联系:18888186330