夜间模式
  • 194049阅读
  • 120回复

【寅盛杯装修日记大赛】装修路上缘分多,奇妙的二次装修之旅(回忆录) [复制链接]

上一主题 下一主题
级别: 禁止发言
发帖
836
昆币
904 枚
30楼 发表于: 2019-03-05 , 来自:云南省0==
用户被禁言,该主题自动屏蔽!
爆料有奖!关注昆山论坛抖音号,抖音搜索“昆山论坛”,或搜索抖音号:ksbbs
 
离线肖雄132
级别: 昆山过客
发帖
64
昆币
123 枚
31楼 发表于: 2019-03-05 , 来自:江苏省0==
回 ksluola 的帖子
ksluola:美式风格会不会贵一点 (2019-03-04 16:17)

硬装家具会贵一点
爆料有奖!关注昆山论坛抖音号,抖音搜索“昆山论坛”,或搜索抖音号:ksbbs
 
离线肖雄132
级别: 昆山过客
发帖
64
昆币
123 枚
32楼 发表于: 2019-03-05 , 来自:江苏省0==
回 零收入 的帖子
零收入:效果图不错 (2019-03-04 16:16)

是的,我和老婆都比较喜欢这样的装修风格
爆料有奖!关注昆山论坛抖音号,抖音搜索“昆山论坛”,或搜索抖音号:ksbbs
 
离线肖雄132
级别: 昆山过客
发帖
64
昆币
123 枚
33楼 发表于: 2019-03-05 , 来自:江苏省0==
回 紫倾 的帖子
紫倾:想问一下楼主,装修公司出的效果图是出整个空间的还是只出客餐厅的? (2019-03-03 05:45)

我没有要求出我家房间的效果图,因为没什么装饰,如果有要求,也可以出效果图
爆料有奖!关注昆山论坛抖音号,抖音搜索“昆山论坛”,或搜索抖音号:ksbbs
 
离线肖雄132
级别: 昆山过客
发帖
64
昆币
123 枚
34楼 发表于: 2019-03-05 , 来自:江苏省0==
放几张当时的开工照,全家出动




敲墙






爆料有奖!关注昆山论坛抖音号,抖音搜索“昆山论坛”,或搜索抖音号:ksbbs
 
离线肖雄132
级别: 昆山过客
发帖
64
昆币
123 枚
35楼 发表于: 2019-03-05 , 来自:江苏省0==
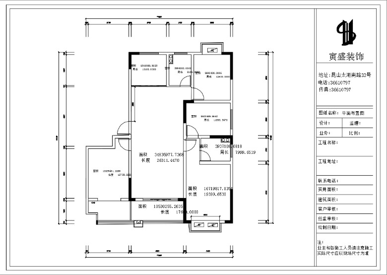
随便放几张当时的设计图,跟王工讨论了好几次,听取了我们的建议,改图也改了好多次,跟我们讲解的也很细致,感谢王工的耐心与细心










[ 此帖被肖雄132在2019-03-05 15:17重新编辑 ]
爆料有奖!关注昆山论坛抖音号,抖音搜索“昆山论坛”,或搜索抖音号:ksbbs
 
美女离线云樨
发帖
910
昆币
1053 枚
36楼 发表于: 2019-03-07 , 来自:江苏省0==
爆料有奖!关注昆山论坛抖音号,抖音搜索“昆山论坛”,或搜索抖音号:ksbbs
 
美女离线云樨
发帖
910
昆币
1053 枚
37楼 发表于: 2019-03-07 , 来自:江苏省0==
爆料有奖!关注昆山论坛抖音号,抖音搜索“昆山论坛”,或搜索抖音号:ksbbs
 
美女离线云樨
发帖
910
昆币
1053 枚
38楼 发表于: 2019-03-07 , 来自:江苏省0==
不错哦
爆料有奖!关注昆山论坛抖音号,抖音搜索“昆山论坛”,或搜索抖音号:ksbbs
 
离线肖雄132
级别: 昆山过客
发帖
64
昆币
123 枚
39楼 发表于: 2019-03-09 , 来自:江苏省0==
回 云樨 的帖子
云樨:不错哦[表情] (2019-03-07 09:08)

爆料有奖!关注昆山论坛抖音号,抖音搜索“昆山论坛”,或搜索抖音号:ksbbs
 
快速回复
限76 字节
如果您在写长篇帖子又不马上发表,建议存为草稿
 
上一个 下一个