夜间模式
  • 195793阅读
  • 623回复

【寅盛杯装修日记大赛】我的北欧混搭,感觉自己棒棒的 [复制链接]

上一主题 下一主题
美女离线也许有一天mm
发帖
3225
昆币
3959 枚
60楼 发表于: 2019-03-25 , 来自:江苏省0==
        回忆一下量房的情形吧。哪四家呢,按照量房到达的顺序来介绍吧。华庭宜居,1918, 一号国际,名匠。因为不是同时到的,或者说不是全部都按照约定时间准时到的,有提前到的,有迟到的。我基本是重复四次说了我的硬性要求,有点累的。个人很守时,一般都会在跟别人约定的时间前几分钟到。好吧,再说说约谈的感受吧。
        华庭,第一个到的, 跟监理小哥哥一样,都提前到了。业务小哥哥很健谈,后来知道他小名叫小四,问了我的需求,装修风格,要求,预算等等,也介绍了华庭。整个交流过程流畅,是我理解的服务行业的标准流程。小四哥哥也是很积极的加了我微信。好像该称呼小四弟弟。我尊大了。
        1918, 设计师姜工自己一个人来量房的,也是唯一一个提前找到了房屋户型图, 承重墙结构尺寸应该是已经有了。来此一游,更多的是聊聊户主的需求等等。很喜欢这样提前做功课的。BTW, 也是第一个提出加微信,并且第一个组建1918微信服务群的。这点值得称赞!
        一号国际,业务一行两人来量房。清晰记得业务员在打招呼认识之后,开始介绍,我们一号国际定位呢相对高端些, 提供终身服务,所以呢,报价通常会比别家高一些,xxxxx。在那一刻,一号国际已经被我KO。服务行业,不是第一条问客户需求吗?我理解错了??
       名匠,迟到了。我已无力再第四次叙说我的硬性要求。设计师和助理都来了。设计师年纪较大,聊天的过程中话不多,也不知道有没有get到我的要求。
       老阿姨记忆力还行,该有的细节都描述清楚了。
爆料有奖!关注昆山论坛抖音号,抖音搜索“昆山论坛”,或搜索抖音号:ksbbs
 
美女离线也许有一天mm
发帖
3225
昆币
3959 枚
61楼 发表于: 2019-03-25 , 来自:江苏省0==
1/18,周一, 工作日
        不知道为什么,过完年回来工作无敌忙。但是, 我还是抽空整理下自己装修说明。因为担心装修公司不能完全get到我的要求,所以还是花点时间写个说明。当然说明的部分,有些是硬性要求, 必须达成的, 有些只是想法, 不一定具操作性,或者说实际并不理想, 不建议实施。这些都写给装修公司,请他们帮我设计, 若不能满足,要给我建议的设计。1/16发送出去word档,请各家设计师认真看下说明,若有疑问我们再及时沟通。现在看来,有些设计师会注重客户的需求,有些设计师比较个性。
爆料有奖!关注昆山论坛抖音号,抖音搜索“昆山论坛”,或搜索抖音号:ksbbs
 
美女离线也许有一天mm
发帖
3225
昆币
3959 枚
62楼 发表于: 2019-03-25 , 来自:江苏省0==

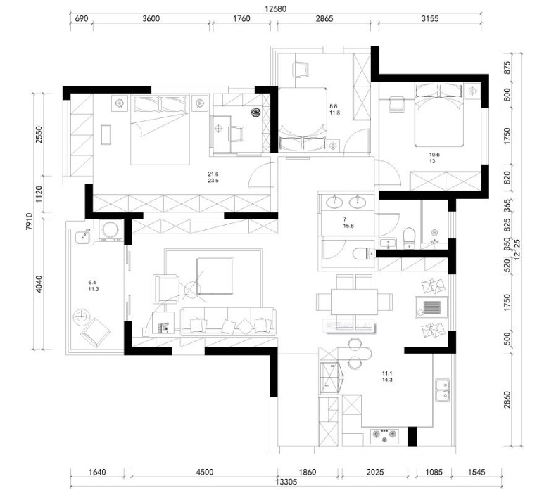
户型图, 建筑面积137.7平米,三房两厅两卫,南北通透
爆料有奖!关注昆山论坛抖音号,抖音搜索“昆山论坛”,或搜索抖音号:ksbbs
 
美女离线也许有一天mm
发帖
3225
昆币
3959 枚
63楼 发表于: 2019-03-25 , 来自:江苏省0==

本想上原始户型图,发现我居然没有,有点不合适啊
这是更改过的户型图, 原有的主卧主卫改小书房,公卫外储藏室放弃,改成三分离卫生间, 淋浴+马桶+淋浴柜可以独立使用,这里是我的硬性要求。另外,很喜欢主卧的整排衣柜
爆料有奖!关注昆山论坛抖音号,抖音搜索“昆山论坛”,或搜索抖音号:ksbbs
 
美女离线也许有一天mm
发帖
3225
昆币
3959 枚
64楼 发表于: 2019-03-25 , 来自:江苏省0==
以下为发给装修公司的具体说明(PS: 还有internal 版本的说明, 这只是初版,在跟设计师不断地沟通中持续完善):
    1,两个孩子, 女儿小学一年级, 儿子幼儿园大班, 我们夫妻俩, 孩子外婆, 常住人口5个(三个房间, 以后外婆会分开住)
    2,清装修,重装饰
    3,不考虑中央空调和地暖,考虑全屋挂机,维修和更换更方便
    4,全屋强化地板(灰色)
    5,可以大胆的用色(烟粉色等低饱和度有灰度的粉, 粉+绿, 门的颜色等等)
    6,北欧,混搭
爆料有奖!关注昆山论坛抖音号,抖音搜索“昆山论坛”,或搜索抖音号:ksbbs
 
美女离线也许有一天mm
发帖
3225
昆币
3959 枚
65楼 发表于: 2019-03-25 , 来自:江苏省0==

继续说明

玄关
整面墙的鞋柜(兼具衣帽间,座位可有可无,底下留空);穿衣镜;
对面墙挂钩类+装饰+转角门型架(optional)
玄关灯,简约即可
玄关处地砖,有考虑六边形花砖过道

餐厅:一面墙整排柜子, 收纳挂烫机, 吸尘器等清洁用具, 无需吊顶
            2M+的大长桌 (内藏1M, 1.2M小长桌);或者小长桌+中岛台
            吊扇灯可以有;无需酒柜;挂壁式取暖器(电);
厨房
1.    厨房防水做到顶
2.    主光源+辅光源
3.    厨房和餐厅间,半开放式料理台隔断,料理台上方吊架或吊灯
厨房地面倾向于六边形化妆, 与餐厅的地板过度考虑造型变化(需考量操作性和成本);
橱柜包括台面,能砌则砌;里外挡水;单下水槽;抽拉式水龙头;小厨宝(或者电加热器水龙头);中岛台或半开放式隔断操作台;集成灶+蒸箱烤箱;单独锅具收纳;抽屉分隔;小电器较多(电饭煲, 微波炉, 面包机, 多士炉,榨汁机, 豆浆机);壁挂式置物架收纳碗沥水架
4.    热水器是否可以移到卫生间淋浴区???
5.    冰箱入柜
爆料有奖!关注昆山论坛抖音号,抖音搜索“昆山论坛”,或搜索抖音号:ksbbs
 
美女离线也许有一天mm
发帖
3225
昆币
3959 枚
66楼 发表于: 2019-03-25 , 来自:江苏省0==

卧室:卧室的床,榻榻米不考虑 所以小卧室需要注意收纳
         衣柜多考虑抽屉,男女服饰分区,无需裤架;平开门,隐形把手,不要五金把手
•    主卧,卫生间改成书房, 半开放式, 防潮隔音要做好
•    次卧一,二:衣柜, 床, 书桌

主卫:至少三分离(最好四分离) 不要浴缸
•    主双台盘(不起雾镜柜, 镜前灯)+小厨宝+毛巾加热器
•    排风扇
•    淋浴区: 半人高矮墙+浴帘+挡水条,大理石拉槽, 长方形地漏; 梯架空间要预留
•    不考虑置物架, 壁龛吧
•    1cm高门压条代替门槛石,极度不喜欢门槛石

客厅:客厅背景,整面墙的收纳柜;投影幕布;无需吊顶,考虑石膏线文化砖等多种元素;需要阅读区
         无茶几或小茶几, 边几;客厅窗帘,仅装饰作用
         背景墙, 沙发后若不装柜子, 必须有窄柜, 上面台板可以掀开的样式(这个木工可以做, 简单)
阳台:移门式封阳台, 注意防水, 洗衣机下水和其他下水要注意距离
          洗衣机+烘干机+洗手台柜子
         保温层要铲掉,墙面全部瓷砖
爆料有奖!关注昆山论坛抖音号,抖音搜索“昆山论坛”,或搜索抖音号:ksbbs
 
美女离线也许有一天mm
发帖
3225
昆币
3959 枚
67楼 发表于: 2019-03-25 , 来自:江苏省0==
这份说明一方面想装修公司说明自己的需求,另一方面也是给自己提个醒
毕竟装修小白啊
internal版本,备注了很多注意点。不少东西一旦装好后期就没发变更,或者变更比较麻烦了,给自己提个醒
爆料有奖!关注昆山论坛抖音号,抖音搜索“昆山论坛”,或搜索抖音号:ksbbs
 
美女离线也许有一天mm
发帖
3225
昆币
3959 枚
68楼 发表于: 2019-03-25 , 来自:江苏省0==
继续写回忆录啊  呵呵
1/18,周五,翘班, 第一次月星家居逛了逛,没什么目的, 所以收获不大。
        因为一直用的集成灶, 所以看了美大, 大概的价位。据说三月有浙江海宁厂里的团购会, 价格在7K~10K不等,预算内。
        另外看了德尔地板, 这是美大集成灶介绍的。在这之后知道,在强化地板这块,德尔确实是做的不错的。较为中意的几个花色,其实也就是灰不拉几的色,挂牌298每平米,店员当即给我给我打八折,没想好,没定。全屋铺的话,一笔不小的费用啊。不喜欢地砖的冷冷冰冰,但是又懒,实木地板我是伺候不起的,所以就选择了强化地板,皮实。家有熊娃,随便造吧。
        
爆料有奖!关注昆山论坛抖音号,抖音搜索“昆山论坛”,或搜索抖音号:ksbbs
 
美女离线也许有一天mm
发帖
3225
昆币
3959 枚
69楼 发表于: 2019-03-25 , 来自:江苏省0==
较为中意的美大两款集成灶,拍了型号和挂牌价,询问了最低价
       还有德尔的地板,灰色的一款
       后面就看砍价的本事了

        
爆料有奖!关注昆山论坛抖音号,抖音搜索“昆山论坛”,或搜索抖音号:ksbbs
 
快速回复
限76 字节
如果您提交过一次失败了,可以用”恢复数据”来恢复帖子内容
 
上一个 下一个