夜间模式
打赏中心
每日签到
幸运转盘
论坛帮助
活动聚焦
手机客户端
道具中心
商家认证
勋章中心
诚信认证
快捷通道
关闭
您还没有登录,快捷通道只有在登录后才能使用。
立即登录
还没有帐号? 赶紧
注册一个
论坛首页
论坛导航
商家
招聘
装修
昆山优选
小红娘
分类信息
二手房
昆山视窗
登录
注册
找回密码
帖子
用户
版块
帖子
搜索
论坛首页
>
论坛导航
>
酸甜苦辣话装修
>
【叶氏·大美居整体软装】选择叶氏,帮助装修小白学装修
发帖
回复
返回列表
上一页
1...
9
10
11
12
13
...16
下一页
到第
页
确认
新帖
119602
阅读
150
回复
【叶氏·大美居整体软装】选择叶氏,帮助装修小白学装修
[复制链接]
扫描到手机
论坛小编教你如何扫二维码
上一主题
下一主题
美女离线
baby6893
UID:66109
注册时间
2008-01-27
最后登录
2020-06-25
发帖
4677
搜Ta的帖子
精华
0
昆币
3901
访问TA的空间
加好友
用道具
级别:
昆山中级市民
发帖
4677
昆币
3901 枚
加关注
发消息
只看该作者
100楼
发表于: 2019-10-20
,
来自:江苏省
0==
先插播一下哦,需要黑龙江有机米的站内短我
内容来自 iPhone 手机客户端
本帖评分记录
共
条评分
爆料有奖!关注昆山论坛抖音号,抖音搜索“昆山论坛”,或搜索抖音号:ksbbs
引用
举报
美女离线
baby6893
UID:66109
注册时间
2008-01-27
最后登录
2020-06-25
发帖
4677
搜Ta的帖子
精华
0
昆币
3901
访问TA的空间
加好友
用道具
级别:
昆山中级市民
发帖
4677
昆币
3901 枚
加关注
发消息
只看该作者
101楼
发表于: 2019-10-20
,
来自:江苏省
0==
油漆师傅在批腻子
内容来自 iPhone 手机客户端
本帖评分记录
共
条评分
爆料有奖!关注昆山论坛抖音号,抖音搜索“昆山论坛”,或搜索抖音号:ksbbs
引用
举报
美女离线
baby6893
UID:66109
注册时间
2008-01-27
最后登录
2020-06-25
发帖
4677
搜Ta的帖子
精华
0
昆币
3901
访问TA的空间
加好友
用道具
级别:
昆山中级市民
发帖
4677
昆币
3901 枚
加关注
发消息
只看该作者
102楼
发表于: 2019-10-20
,
来自:江苏省
0==
监理检查批过腻子平不平,果然检到一处,又整改
内容来自 iPhone 手机客户端
本帖评分记录
共
条评分
爆料有奖!关注昆山论坛抖音号,抖音搜索“昆山论坛”,或搜索抖音号:ksbbs
引用
举报
美女离线
baby6893
UID:66109
注册时间
2008-01-27
最后登录
2020-06-25
发帖
4677
搜Ta的帖子
精华
0
昆币
3901
访问TA的空间
加好友
用道具
级别:
昆山中级市民
发帖
4677
昆币
3901 枚
加关注
发消息
只看该作者
103楼
发表于: 2019-10-20
,
来自:江苏省
0==
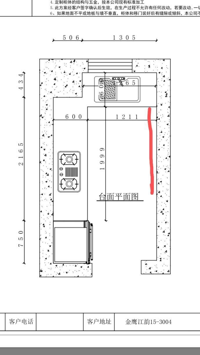
当初的图纸,我嫌厨房台面太少,又加了半排台面,耽误了一下时间,大约一周后装好了
内容来自 iPhone 手机客户端
本帖评分记录
共
条评分
爆料有奖!关注昆山论坛抖音号,抖音搜索“昆山论坛”,或搜索抖音号:ksbbs
引用
举报
美女离线
baby6893
UID:66109
注册时间
2008-01-27
最后登录
2020-06-25
发帖
4677
搜Ta的帖子
精华
0
昆币
3901
访问TA的空间
加好友
用道具
级别:
昆山中级市民
发帖
4677
昆币
3901 枚
加关注
发消息
只看该作者
104楼
发表于: 2019-10-20
,
来自:江苏省
0==
这个部分,提醒一下厨娘们,还是尽量台面多一点,我当初觉得厨房空间要大一点,后来后悔了,还得大一点实用
内容来自 iPhone 手机客户端
本帖评分记录
共
条评分
爆料有奖!关注昆山论坛抖音号,抖音搜索“昆山论坛”,或搜索抖音号:ksbbs
引用
举报
美女离线
baby6893
UID:66109
注册时间
2008-01-27
最后登录
2020-06-25
发帖
4677
搜Ta的帖子
精华
0
昆币
3901
访问TA的空间
加好友
用道具
级别:
昆山中级市民
发帖
4677
昆币
3901 枚
加关注
发消息
只看该作者
105楼
发表于: 2019-10-20
,
来自:江苏省
0==
8/9号,面涂结束,颜色跟我当初选的没什么太大差别,还不错
内容来自 iPhone 手机客户端
本帖评分记录
共
条评分
爆料有奖!关注昆山论坛抖音号,抖音搜索“昆山论坛”,或搜索抖音号:ksbbs
引用
举报
美女离线
baby6893
UID:66109
注册时间
2008-01-27
最后登录
2020-06-25
发帖
4677
搜Ta的帖子
精华
0
昆币
3901
访问TA的空间
加好友
用道具
级别:
昆山中级市民
发帖
4677
昆币
3901 枚
加关注
发消息
只看该作者
106楼
发表于: 2019-10-20
,
来自:江苏省
0==
由于我买了芝华士的懒人沙发,设计师说和简美不搭,又变成简欧了,所以,家具还得听设计师的指点啊
内容来自 iPhone 手机客户端
本帖评分记录
共
条评分
爆料有奖!关注昆山论坛抖音号,抖音搜索“昆山论坛”,或搜索抖音号:ksbbs
引用
举报
美女离线
baby6893
UID:66109
注册时间
2008-01-27
最后登录
2020-06-25
发帖
4677
搜Ta的帖子
精华
0
昆币
3901
访问TA的空间
加好友
用道具
级别:
昆山中级市民
发帖
4677
昆币
3901 枚
加关注
发消息
只看该作者
107楼
发表于: 2019-10-20
,
来自:江苏省
0==
紧接着电工的筒灯装完,我觉得我盯的蛮紧的时程,要高效高效
内容来自 iPhone 手机客户端
本帖评分记录
共
条评分
爆料有奖!关注昆山论坛抖音号,抖音搜索“昆山论坛”,或搜索抖音号:ksbbs
引用
举报
美女离线
baby6893
UID:66109
注册时间
2008-01-27
最后登录
2020-06-25
发帖
4677
搜Ta的帖子
精华
0
昆币
3901
访问TA的空间
加好友
用道具
级别:
昆山中级市民
发帖
4677
昆币
3901 枚
加关注
发消息
只看该作者
108楼
发表于: 2019-10-20
,
来自:江苏省
0==
监理连夜把我打扫卫生,为了准备铺地板
内容来自 iPhone 手机客户端
本帖评分记录
共
条评分
爆料有奖!关注昆山论坛抖音号,抖音搜索“昆山论坛”,或搜索抖音号:ksbbs
引用
举报
美女离线
baby6893
UID:66109
注册时间
2008-01-27
最后登录
2020-06-25
发帖
4677
搜Ta的帖子
精华
0
昆币
3901
访问TA的空间
加好友
用道具
级别:
昆山中级市民
发帖
4677
昆币
3901 枚
加关注
发消息
只看该作者
109楼
发表于: 2019-10-20
,
来自:江苏省
0==
说实话,监理还是很配合我的,我要快就快,要紧就紧,能往前提的也没耽误我从外面买了材料的安装
内容来自 iPhone 手机客户端
本帖评分记录
共
条评分
爆料有奖!关注昆山论坛抖音号,抖音搜索“昆山论坛”,或搜索抖音号:ksbbs
引用
举报
发帖
回复
返回列表
上一页
1...
9
10
11
12
13
...16
下一页
到第
页
确认
https://ksbbs.com
访问内容超出本站范围,不能确定是否安全
继续访问
取消访问
快速回复
限76 字节
如果您提交过一次失败了,可以用”恢复数据”来恢复帖子内容
您目前还是游客,请
登录
或
注册
进入高级模式
文字颜色
发 布
回复后跳转到最后一页
上一个
下一个
隐藏
快速跳转
社会民生
聚焦昆山
立法直通车
昆山分类信息
昆山市教育局
昆山公交集团
昆山市交通运输局
消费维权
美丽昆山
昆山百事通
文明昆山
全民反诈
城市生活
玉山广场
昆友圈
走遍天下
昆山招聘
KBS车友会
昆山体育
房产装修
房产大家谈
房产租售
酸甜苦辣话装修
生活资讯
家有儿女
美食天地
花草宠物
交友婚恋
闲花文字
数码摄影
认证商家
论坛商家
昆山商情
社区站务
论坛事务
删帖声明
关闭
关闭
选中
1
篇
全选
喜欢就打赏个小红包吧
请选择打赏金额
1元
5元
10元
30元
100元
200元
您是游客,登陆后可以使用赏金钱包
赏金钱包支付
微信扫码支付
赏
我要提现
用微信扫描二维码完成支付
电话:0512-57993030
工作日 8:30-17:00在线
广告热线:18012662666
紧急联系:18888186330