夜间模式
  • 8701阅读
  • 3回复

112平米的三居室,美式风格,给大家晒晒! [复制链接]

上一主题 下一主题
级别: 家装商家

发帖
21325
昆币
22262 枚
只看楼主 使用道具 电梯直达
楼主  发表于: 2019-12-17 , 来自:江苏省0==

今天分享的是一套建筑面积112平米的现代美式风三居室,优雅而又充满了质感,无论是颜色搭配还是家具的选择上,都让人感觉到淡淡的奢华感,却又不会让人感觉太过花哨、容易过时。一起来看看这套房子吧!


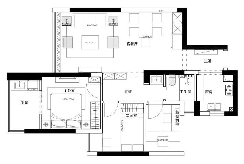
平面布置图▼


入户玄关走廊,空间比较窄,也没办法做嵌入式的鞋柜,所以选择了这款可以把鞋子斜着摆放的鞋柜,超适合窄玄关走廊。


玄关的侧面就是厨房,半开放式的厨房,而且还有窗户,其实油烟问题不大。U字型厨房的收纳设计非常多,橱柜和吊柜都可以做在两侧。


走过玄关之后就来到了客餐厅,很喜欢客餐厅的背景色,浅蓝色搭配白色的家具,显得非常的优雅纯洁。


餐厅的空间还是比较宽敞的,选择圆方两用的餐桌,更加实用。把冰箱和柜子做在了一起,嵌入式的到顶柜子看起来也更舒服。


餐厅和客厅之间用吧台作为隔断,也是给家里增添了一些情调,这些细节的设计,就是提升家里颜值的重用部分哦。


电视背景墙的设计非常的简单,浅蓝色的壁纸搭配石膏线条,以后想要更换也方便一些。电视背景墙边上还做了隔断收纳柜,更加实用。


米色的皮沙发搭配浅色的背景墙和木地板,让整个空间看起来都显得非常的优雅。


通往卧室的走道,用柜子来代替墙面,嵌入式的柜子设计让走道多出更多的收纳空间,又不会让人觉得太过狭窄。


主卧的背景色选择了更加温馨的米黄色,搭配浅色系的壁纸、床品等,整体给人的感觉就是温馨而又舒适。


书房兼客房是做了榻榻米的设计,中间有个升降桌,也方便邀请朋友来玩的时候,多个休闲区域。


卫生间干湿分离,淋浴房内用仿古砖做点点缀,错落铺贴的彩色砖,也让卫生间看起来更加的有趣一些。


本帖评分记录
reb2000 昆币 +1 -来自昆山论坛APP 2019-12-17
1条评分昆币+1
爆料有奖!关注昆山论坛抖音号,抖音搜索“昆山论坛”,或搜索抖音号:ksbbs
 
电话:13912674136   微信账号:13912674136 QQ:2993026895  公司地址:张浦镇学士路35号          
帅哥在线kunshanbzl
发帖
1985
昆币
3328 枚
沙发  发表于: 2019-12-17 , 来自:湖北省0==
分包还是全包?
全做下来多少钱
爆料有奖!关注昆山论坛抖音号,抖音搜索“昆山论坛”,或搜索抖音号:ksbbs
 
帅哥离线duda_hart
发帖
10808
昆币
22576 枚
板凳  发表于: 2019-12-17 , 来自:上海市0==
地板太难看了
爆料有奖!关注昆山论坛抖音号,抖音搜索“昆山论坛”,或搜索抖音号:ksbbs
 
级别: 家装商家

发帖
21325
昆币
22262 枚
地板  发表于: 2019-12-18 , 来自:江苏省0==
回 kunshanbzl 的帖子
kunshanbzl:分包还是全包?
全做下来多少钱 (2019-12-17 17:15)

电话:13912674136
微信:13912674136
欢迎联系我们,帮你出个报价比较一下
爆料有奖!关注昆山论坛抖音号,抖音搜索“昆山论坛”,或搜索抖音号:ksbbs
 
快速回复
限76 字节
如果您提交过一次失败了,可以用”恢复数据”来恢复帖子内容
 
上一个 下一个