夜间模式
  • 13751阅读
  • 0回复

131平米的日式风格,禅意和文艺都有,超美! [复制链接]

上一主题 下一主题
级别: 家装商家

发帖
21350
昆币
22308 枚
只看楼主 使用道具 电梯直达
楼主  发表于: 2020-02-11 , 来自:江苏省0==

今天介绍的是一套建筑面积131平米的日式风三居室案例,设计师用简洁的原木风家具贯穿了整个家,让人感觉到轻松而又舒适。日式风独特的韵味又带着一丝文艺范,这样的佛系生活,简单而又安逸,让人内心能够平静下来。


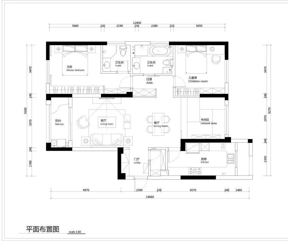
平面布置图▲


入户的玄关走廊一侧做了嵌入式鞋柜,另一侧是高低不一的换鞋凳,方便屋主一家人坐着换鞋,平时拖鞋也能藏在换鞋凳的底部。


走过玄关走廊就到了客厅空间,客厅的墙面选择了直接刷白的设计,搭配木质的茶几、电视柜和木与布艺结合沙发,让人感觉简约而又自然。


和客厅相对的餐厅空间也同样是选择了留白搭配木质家具的设计,餐厅顶部的吊顶选择了全木质的,让用餐环境变得更为温馨一些。


在餐厅的边上是一个榻榻米休闲区,在榻榻米上摆放蒲团和小茶几、矮书柜,和朋友一起泡茶、聊天和看书都是非常惬意的事情。


厨房内部的空间还是比较宽敞的,设计师选择了U字形的橱柜布局方案,让厨房动线变得更短,储物空间又更多,再加上白色与灰色的结合,简约而又轻松。


主卧室的设计非常的素雅,大白墙搭配灰色的床品、窗帘和木质家具,床尾处做上嵌入式的推拉门衣柜,床头柜边上摆放衣帽架吗,简约自然当中又不失清新文艺的感觉。


儿童房在白与木作为主体的情况下,加入了粉色作为点缀,搭配一些卡通元素,让儿童房变得更为浪漫、可爱一些。


公卫的空间是非常宽敞的,除了淋浴区外还有着一个大浴缸,马桶和洗手台也分列在卫生间的两侧,整体白、灰与木的搭配显得年轻大方。


阳台的一侧被设计师利用起来做成了一个山水小景,另一侧就是洗衣区。阳台上铺设防腐木和文化砖,也让人感觉更为自然文艺。



爆料有奖!关注昆山论坛抖音号,抖音搜索“昆山论坛”,或搜索抖音号:ksbbs
 
电话:13912674136   微信账号:13912674136 QQ:2993026895  公司地址:张浦镇学士路35号          
快速回复
限76 字节
如果您提交过一次失败了,可以用”恢复数据”来恢复帖子内容
 
上一个 下一个