夜间模式
  • 12682阅读
  • 1回复

107平的美式风三居室,好喜欢这款森系电视背景墙 [复制链接]

上一主题 下一主题
级别: 家装商家

发帖
21350
昆币
22308 枚
只看楼主 使用道具 电梯直达
楼主  发表于: 2020-02-18 , 来自:江苏省0==

今天说的是一套建筑面积107平米的美式风三居室案例,房子整体的配色非常丰富和多样,但同时又不会让人感觉太过突兀。很喜欢客厅的这款森系的壁纸电视背景墙,花纹好看和整体的风格也非常融洽。


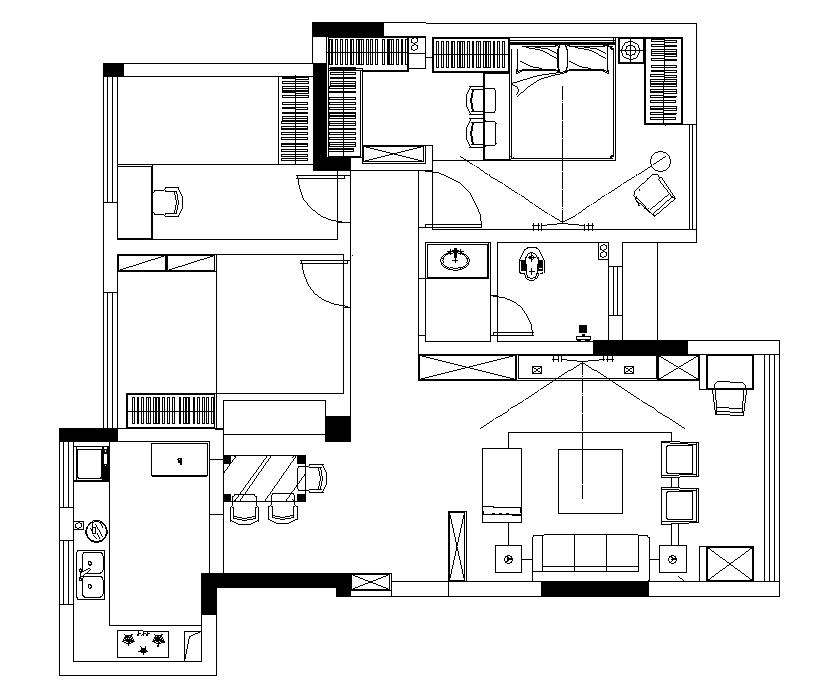
平面布置图▲


入户玄关位于中间的户型,一直延伸到了卧室的走廊,尽头处的绿植装饰画和灰蓝色的背景墙、深色的仿古砖结合起来,有些别样的差异感。


客厅这个空间是最喜欢的一个空间,墨绿色的沙发背景墙搭配森系的壁纸电视背景墙,在深色仿古砖的衬托下,显得典雅而又自然。


电视柜上还摆放了几个火烈鸟的装饰品,让客厅多出了一些活力感。电视背景墙的两侧也做了石膏线的造型,很常见的美式风设计。


客厅和入户门之间有着一个小矮柜,让玄关不至于没有储物空间。沙发边上的边几和落地灯,都是比较传统的美式风家具。


位于房子另一侧的餐厅也是很喜欢的一个空间,尤其是这堵文化砖的半墙隔断,看到的第一眼就让人觉得很有美式乡村风的感觉。


厨房和餐厅之间做了半墙隔断,那么自然也是半开放式的布局。厨房内部蓝白色的小砖相间,让人感觉到一些小清新感。


主卧室的床头背景墙被刷成了蓝色,而主卫被设计师改成了开放式的衣帽间,白色的柜子搭配深蓝色的背景墙,看起来别有一番风味。


儿童房的配色会更为清新一些,绿色搭配藕粉色,床品和窗帘的颜色和款式都比较可爱,整体给人一种浪漫、优雅的感觉。


卫生间的洗手台被放在了门外,多彩的仿古小砖铺满了这个空间的墙地面,深木色的浴室柜和浴室镜带来更传统的美式风感觉。


爆料有奖!关注昆山论坛抖音号,抖音搜索“昆山论坛”,或搜索抖音号:ksbbs
 
电话:13912674136   微信账号:13912674136 QQ:2993026895  公司地址:张浦镇学士路35号          
美女离线傻妞的世界
发帖
6198
昆币
5207 枚
爆料
1
沙发  发表于: 2020-02-18 , 来自:江苏省0==
挺好看的
爆料有奖!关注昆山论坛抖音号,抖音搜索“昆山论坛”,或搜索抖音号:ksbbs
 
快速回复
限76 字节
如果您提交过一次失败了,可以用”恢复数据”来恢复帖子内容
 
上一个 下一个