夜间模式
  • 356700阅读
  • 859回复

【薇薇家居全案软装】装修话辛酸,说说自家装修的那些事 [复制链接]

上一主题 下一主题
离线朗通装饰
级别: 家装商家

发帖
16956
昆币
14173 枚
10楼 发表于: 2020-08-19 , 来自:江苏省0==
恭喜楼主,开工大吉!

欢迎后续多上传美图
也邀请大家多看装修日记,多学装修心得
装修日记http://www.ksbbs.com/read-htm-tid-4497784.html  
公司网址:[url][urlend4] / (精彩案例邀您欣赏)






爆料有奖!关注昆山论坛抖音号,抖音搜索“昆山论坛”,或搜索抖音号:ksbbs
 
美女离线小妹妹j
发帖
1111
昆币
1796 枚
11楼 发表于: 2020-08-19 , 来自:江苏省0==
本来定的开放式厨房,设计都已经设计好了,结果燃气公司那里一问不行。我家归属利通燃气公司,为这个事情折腾了一段时间,第一次电话联系她们,一个小姑娘接的电话,说是厨房燃气不移位另外再装一个燃气报警器的情况下可以做开放式厨房。第二次我老公现场去登记就不行了。我后来又致电去这回接电话的是一位大姐,说是不行,无论何种情况都不行,我把上次致电的情况说了一遍,她说给我先说声抱歉,她说如果上次答应我可能那个员工新来的。
爆料有奖!关注昆山论坛抖音号,抖音搜索“昆山论坛”,或搜索抖音号:ksbbs
 
美女离线小妹妹j
发帖
1111
昆币
1796 枚
12楼 发表于: 2020-08-19 , 来自:江苏省0==
为什么要把这个事情拿出来说,真的这件事情就蛮挺折腾人的,大家一定要重视。开发式厨房宽敞大气也好看。可昆山不行
爆料有奖!关注昆山论坛抖音号,抖音搜索“昆山论坛”,或搜索抖音号:ksbbs
 
美女离线小妹妹j
发帖
1111
昆币
1796 枚
13楼 发表于: 2020-08-19 , 来自:江苏省0==
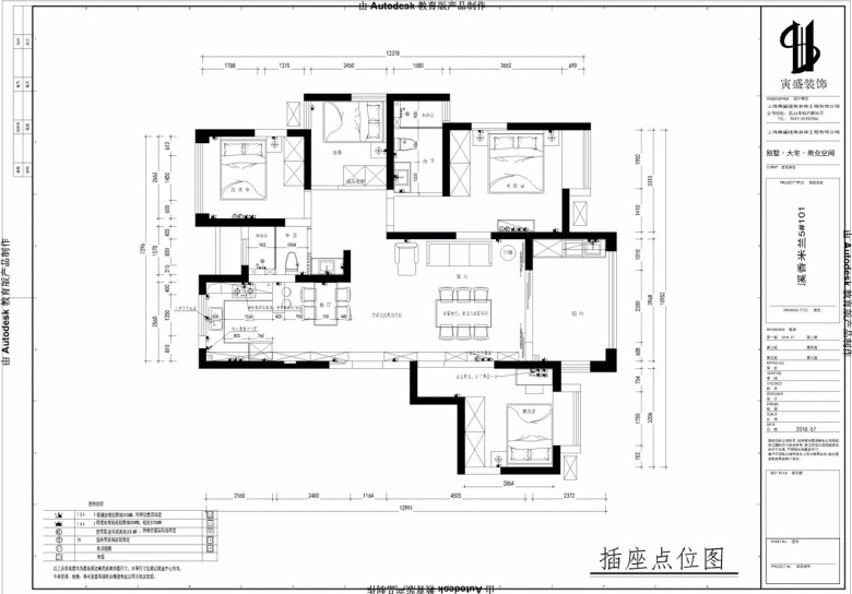
开关和插座图

爆料有奖!关注昆山论坛抖音号,抖音搜索“昆山论坛”,或搜索抖音号:ksbbs
 
美女离线小妹妹j
发帖
1111
昆币
1796 枚
14楼 发表于: 2020-08-19 , 来自:江苏省0==
水路、吊顶、开关、插座、平面布置图










爆料有奖!关注昆山论坛抖音号,抖音搜索“昆山论坛”,或搜索抖音号:ksbbs
 
美女离线小妹妹j
发帖
1111
昆币
1796 枚
15楼 发表于: 2020-08-19 , 来自:江苏省0==
家里原本的样子,没拍多少





爆料有奖!关注昆山论坛抖音号,抖音搜索“昆山论坛”,或搜索抖音号:ksbbs
 
帅哥离线Haaaaarukii
级别: 昆山新人
发帖
311
昆币
380 枚
16楼 发表于: 2020-08-19 , 来自:江苏省0==
楼主房子多大的,看着好大的样子
爆料有奖!关注昆山论坛抖音号,抖音搜索“昆山论坛”,或搜索抖音号:ksbbs
 
美女离线小妹妹j
发帖
1111
昆币
1796 枚
17楼 发表于: 2020-08-19 , 来自:江苏省0==
开工了,砸墙没拍,这个是铲墙。铲得蛮干净的,我还是比较满意的哈



















爆料有奖!关注昆山论坛抖音号,抖音搜索“昆山论坛”,或搜索抖音号:ksbbs
 
美女离线小妹妹j
发帖
1111
昆币
1796 枚
18楼 发表于: 2020-08-19 , 来自:江苏省0==
阳台的这个还没铲的样子

爆料有奖!关注昆山论坛抖音号,抖音搜索“昆山论坛”,或搜索抖音号:ksbbs
 
美女离线小妹妹j
发帖
1111
昆币
1796 枚
19楼 发表于: 2020-08-19 , 来自:江苏省0==
好多人都说我家铲得蛮干净的














爆料有奖!关注昆山论坛抖音号,抖音搜索“昆山论坛”,或搜索抖音号:ksbbs
 
快速回复
限76 字节
如果您提交过一次失败了,可以用”恢复数据”来恢复帖子内容
 
上一个 下一个