最近有些忙,来不及回复大家,见谅
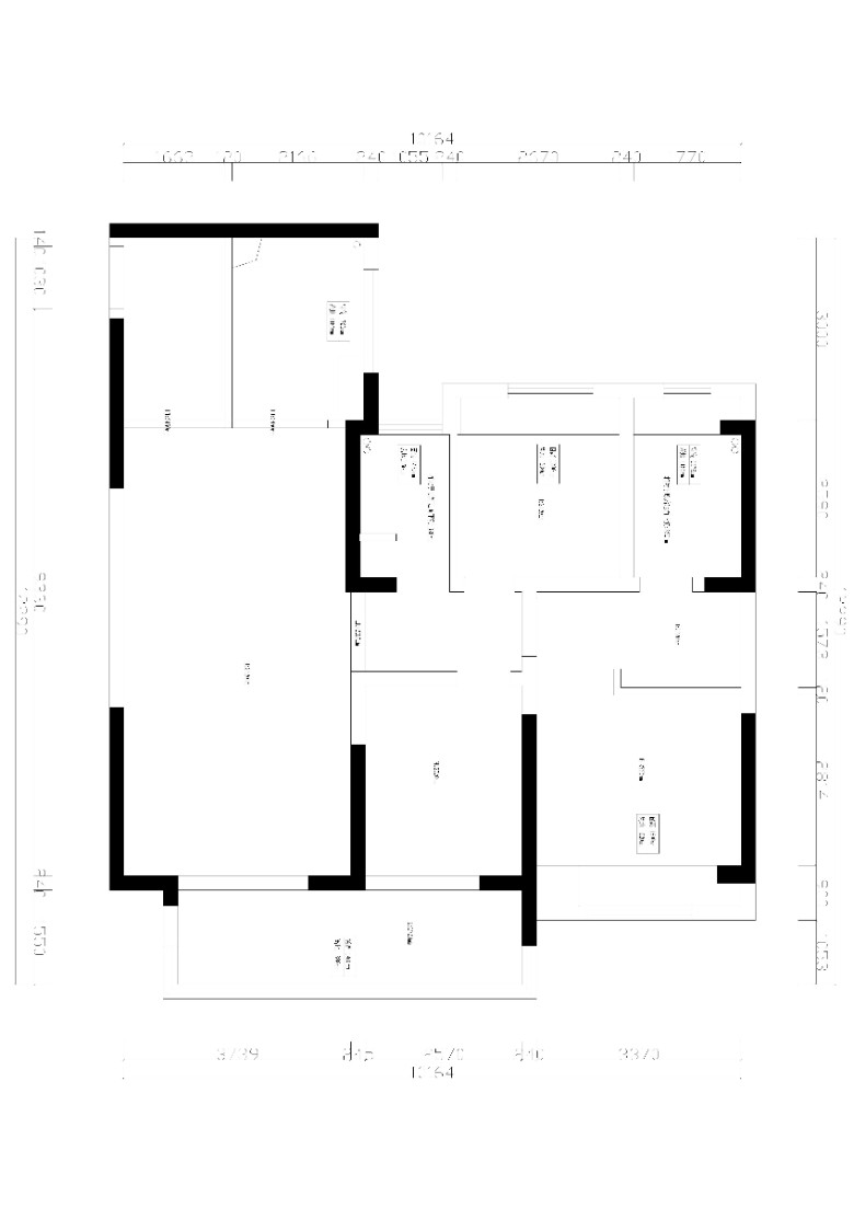
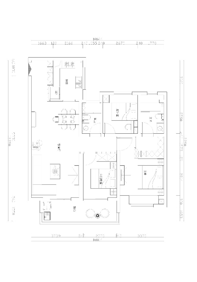
家里水电已经结束了,瓦工刚进场,防水也已经刷好了,因为一直在忙,照片也是项目经理帮忙拍得发到服务群的
------------------------------------------------------------------------------------------------------------------------------------------
水电施工照片:
-------------------------------------------------------------------------------------------------------------------------------
防水施工照片:
对于工作忙的人来说,找装修公司真的省好多事,都没怎么去工地,但是项目经理会在群里拍照实时汇报施工进度,nice