夜间模式
  • 246233阅读
  • 74回复

[装修讨论]中航城的邻居们,看过来,我中途随笔分享分享~ [复制链接]

上一主题 下一主题
离线mufang506
级别: 昆山新人
发帖
166
昆币
237 枚
10楼 发表于: 2020-11-06 , 来自:江苏省0==
一千块一夜:分享看看 (2020-11-03 17:20) 

原始图和平面图 你们看看

本帖评分记录
keao9819179 昆币 +1 -来自昆山论坛APP 2020-11-09
1条评分昆币+1
爆料有奖!关注昆山论坛抖音号,抖音搜索“昆山论坛”,或搜索抖音号:ksbbs
 
美女离线逆水不行舟
级别: 昆山新人
发帖
157
昆币
242 枚
11楼 发表于: 2020-11-08 , 来自:江苏省0==
相互关注哦 我也分享了装修日记
爆料有奖!关注昆山论坛抖音号,抖音搜索“昆山论坛”,或搜索抖音号:ksbbs
 
离线mufang506
级别: 昆山新人
发帖
166
昆币
237 枚
12楼 发表于: 2020-11-08 , 来自:江苏省0==
逆水不行舟:相互关注哦 我也分享了装修日记 (2020-11-08 11:07) 

互关哦
爆料有奖!关注昆山论坛抖音号,抖音搜索“昆山论坛”,或搜索抖音号:ksbbs
 
离线mufang506
级别: 昆山新人
发帖
166
昆币
237 枚
13楼 发表于: 2020-11-08 , 来自:江苏省0==
继续继续





爆料有奖!关注昆山论坛抖音号,抖音搜索“昆山论坛”,或搜索抖音号:ksbbs
 
离线keao9819179
级别: 昆山新人
发帖
127
昆币
180 枚
14楼 发表于: 2020-11-09 , 来自:江苏省0==
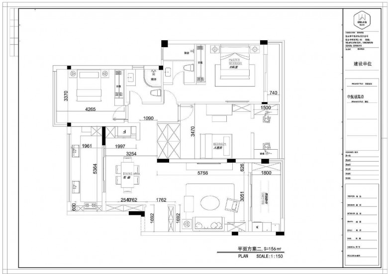
mufang506:原始图和平面图 你们看看
[图片]
[图片] (2020-11-06 10:15) 

平面特别不清楚
本帖评分记录
mufang506 昆币 +1 -来自昆山论坛APP 2020-11-10
1条评分昆币+1
爆料有奖!关注昆山论坛抖音号,抖音搜索“昆山论坛”,或搜索抖音号:ksbbs
 
离线mufang506
级别: 昆山新人
发帖
166
昆币
237 枚
15楼 发表于: 2020-11-10 , 来自:江苏省0==
keao9819179:平面特别不清楚 (2020-11-09 14:06) 

重发一张
本帖评分记录
jiaosong8 昆币 +1 -来自昆山论坛APP 2021-01-15
keao9819179 昆币 +1 -来自昆山论坛APP 2020-11-14
2条评分昆币+2
爆料有奖!关注昆山论坛抖音号,抖音搜索“昆山论坛”,或搜索抖音号:ksbbs
 
离线mufang506
级别: 昆山新人
发帖
166
昆币
237 枚
16楼 发表于: 2020-11-10 , 来自:江苏省0==
今天晚上我很忙,好多东西要买,炸毛!







本帖评分记录
小团长 昆币 +1 -来自昆山论坛APP 2020-11-13
1条评分昆币+1
爆料有奖!关注昆山论坛抖音号,抖音搜索“昆山论坛”,或搜索抖音号:ksbbs
 
离线小团长
级别: 昆山新人
发帖
201
昆币
249 枚
17楼 发表于: 2020-11-13 , 来自:江苏省0==
mufang506:今天晚上我很忙,好多东西要买,炸毛!
[图片]
[图片]
[图片]
[图片]
....... (2020-11-10 16:26) 

装修碰到双十一  可以省不少钱 666
爆料有奖!关注昆山论坛抖音号,抖音搜索“昆山论坛”,或搜索抖音号:ksbbs
 
离线keao9819179
级别: 昆山新人
发帖
127
昆币
180 枚
18楼 发表于: 2020-11-14 , 来自:江苏省0==
小团长:装修碰到双十一  可以省不少钱 666 (2020-11-13 16:13) 

还好吧 也不能买全
爆料有奖!关注昆山论坛抖音号,抖音搜索“昆山论坛”,或搜索抖音号:ksbbs
 
离线mufang506
级别: 昆山新人
发帖
166
昆币
237 枚
19楼 发表于: 2020-11-14 , 来自:江苏省0==
今天墙面打磨已结束,下面可以刷乳胶漆了,新房有点感觉了。




本帖评分记录
mufang506 昆币 +1 -来自昆山论坛APP 2020-11-19
忽悠的哈 昆币 +1 -来自昆山论坛APP 2020-11-18
2条评分昆币+2
爆料有奖!关注昆山论坛抖音号,抖音搜索“昆山论坛”,或搜索抖音号:ksbbs
 
快速回复
限76 字节
如果您提交过一次失败了,可以用”恢复数据”来恢复帖子内容
 
上一个 下一个