案例信息丨Case Information
项目地点:北大资源22#
项目类型:别墅项目性质:全案
项目面积:400㎡
项目风格:现代简约
首设计: 高工设计组:DACI全案组

▼业主需求
满足一家老小居住喜欢暖色、原木色系,老人腿脚不便,居住一口需要房间。简单、清爽、采光好、断舍离。
▼户型优劣势
厨房闭塞,与客餐厅互动性不理想,客餐厅空间开间偏小。厨房和餐厅的空间没有很好的互动。
▼户型改造
厨房做成开放式厨房与餐厅连体,做成餐厨一体空间,增加厨房与外面的社交性与互动性。客厅原始阳台扩进客厅,增加客厅的采光与开间。
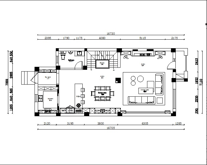
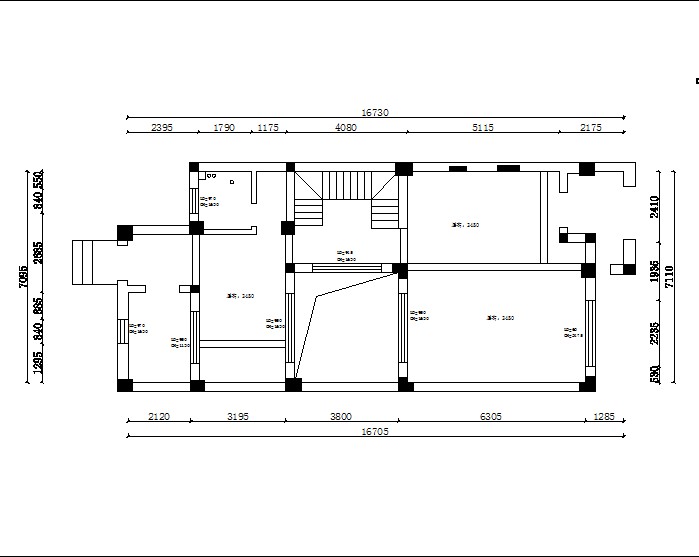
设计方案(户型对比图)
▲ 原始图
▲ 布局图

在客厅的设计上,电视机背景板选择白色硬包,通过米色地砖作为过渡,把原本独立的原木色收纳柜融为一体,营造出时尚简约的氛围。


餐厅的设计宗旨时间约轻松,没有过多的修饰,重在收纳,设计了一组柜子,线条流畅时尚的现代灯饰丰富了空间的层次感和美感。

主卧的背景墙设计选用浅色的硬包,整个主卧设计同样以原木,白,灰三色为主,用橘色椅子为房间加入一抹明亮和温暖,靠窗的绿植又为房间注入一丝春意。落地窗设计提升了房间的光线。冬天将至,阳光正好,微风不燥。

这里格调和主卧差不多,主要是考虑到孩子长大以后还可以住,所以没有放置儿童元素,重在追求舒适和实用。
———————————————————————————————————————— end
中国-苏州-昆山
全案设计中心:昆山九方城8号楼1704--1710(5A写字楼)
展示体验中心:昆山九方城8号楼1706(5A写字楼)
工程管理中心:玉山镇柏庐北路156号(店面)
[ 此帖被大慈装饰在2020-12-25 10:59重新编辑 ]