夜间模式
  • 63274阅读
  • 46回复

Utopia~我的意式极简风& [复制链接]

上一主题 下一主题
离线都不佛啥
级别: 昆山新人
发帖
319
昆币
366 枚
10楼 发表于: 2021-02-07 , 来自:江苏省0==
占个位,慢慢看
爆料有奖!关注昆山论坛抖音号,抖音搜索“昆山论坛”,或搜索抖音号:ksbbs
 
级别: 昆山新人
发帖
112
昆币
123 枚
11楼 发表于: 2021-02-19 , 来自:江苏省0==
坐等楼主更贴了啊啊
爆料有奖!关注昆山论坛抖音号,抖音搜索“昆山论坛”,或搜索抖音号:ksbbs
 
离线miraitowa
级别: 昆山过客
发帖
58
昆币
63 枚
12楼 发表于: 2021-02-23 , 来自:江苏省0==
看完,等着楼主更新啊
爆料有奖!关注昆山论坛抖音号,抖音搜索“昆山论坛”,或搜索抖音号:ksbbs
 
发帖
1126
昆币
1234 枚
13楼 发表于: 2021-02-24 , 来自:江苏省0==
不要弃帖呀
爆料有奖!关注昆山论坛抖音号,抖音搜索“昆山论坛”,或搜索抖音号:ksbbs
 
离线遇与贻尽
级别: 昆山新人
发帖
156
昆币
161 枚
14楼 发表于: 2021-03-02 , 来自:江苏省0==
期待楼主多更新哦
爆料有奖!关注昆山论坛抖音号,抖音搜索“昆山论坛”,或搜索抖音号:ksbbs
 
帅哥离线蛋糕
级别: 昆山新人
发帖
169
昆币
194 枚
15楼 发表于: 2021-03-04 , 来自:江苏省0==
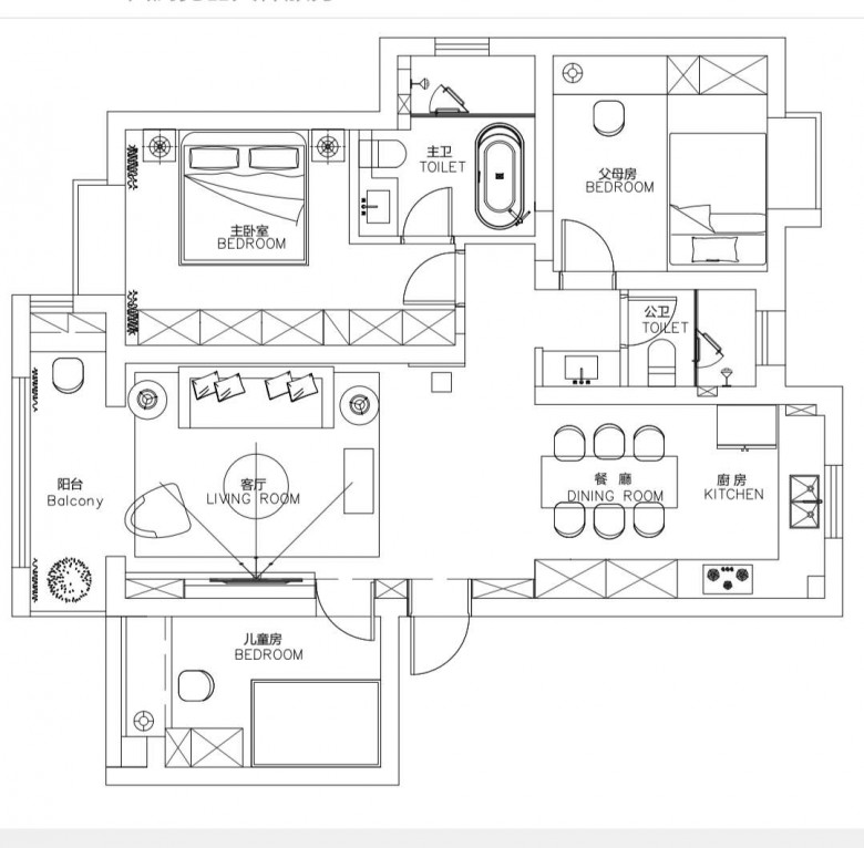
新年好,由于工作太忙本来准备弃贴了,但是看到大家这么鼓励所以决定继续把装修遇到的问题跟一些装修细节继续分享下去
附上一张平面图
爆料有奖!关注昆山论坛抖音号,抖音搜索“昆山论坛”,或搜索抖音号:ksbbs
 
离线LoveU3000
级别: 昆山新人
发帖
109
昆币
115 枚
16楼 发表于: 2021-03-04 , 来自:江苏省0==
   不要弃帖呀
爆料有奖!关注昆山论坛抖音号,抖音搜索“昆山论坛”,或搜索抖音号:ksbbs
 
发帖
1126
昆币
1234 枚
17楼 发表于: 2021-03-05 , 来自:江苏省0==
O(∩_∩)O 继续呀
爆料有奖!关注昆山论坛抖音号,抖音搜索“昆山论坛”,或搜索抖音号:ksbbs
 
帅哥离线蛋糕
级别: 昆山新人
发帖
169
昆币
194 枚
18楼 发表于: 2021-03-08 , 来自:江苏省0==
敲敲砸砸运了好几车垃圾,接下来就是瓦工进场喽


爆料有奖!关注昆山论坛抖音号,抖音搜索“昆山论坛”,或搜索抖音号:ksbbs
 
离线叫我哥
级别: 昆山新人
发帖
180
昆币
210 枚
19楼 发表于: 2021-03-10 , 来自:江苏省0==
已阅读,期待楼主接下来的更新
爆料有奖!关注昆山论坛抖音号,抖音搜索“昆山论坛”,或搜索抖音号:ksbbs
 
快速回复
限76 字节
如果您在写长篇帖子又不马上发表,建议存为草稿
 
上一个 下一个