案例信息
项目地点:时代悦府7#
项目类型:平层
项目性质:全案
项目面积:143㎡
项目风格:现代
首设计:王工
设计组:DACI全案组
前后对比

▲ 原始图
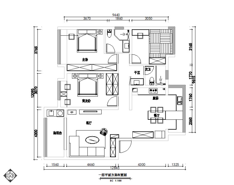
▲ 布局图
玄关

身在繁华都市,内心更想要一个安稳舒适的居所和心灵的寄托,住宅不仅仅是居住空间,更应该是心灵的港湾。

用地台代替了电视柜,没有卫生死角。大理石和木饰面的结合,避免了单一材质带来的单调感,木饰面立体造型,墙咔线条流畅,带来独特的视觉感受。

以镜面,金属等材质的质感和独特的属性,来拉伸整个客厅的空间感,并且保证了充足的光线和通透感。

打通后的阳台做休闲区,既能在此撸串畅饮,又能在此品茶读书,感受阳光和风。
餐厅

餐厅是当下流行的岛台和餐桌相连的形式,大理石餐桌台面和岛台也能呼应,皮质餐椅很有质感,冰箱做了嵌入式的处理,更加简洁。
主卧

优雅又大气的主卧,搭配饱满舒适的软包大床。浅色的整体色调也带来浪漫的气质。

设计师精心挑选的挂画与整屋色调相呼应,只设计了一侧床头柜。

靠窗的床头柜改成书桌,也是梳妆台。飘窗保留并放置靠枕,午后坐在飘窗上晒晒太阳,小憩一会儿也是很惬意的。
中国-苏州-昆山
全案设计中心:昆山九方城8号楼1704--1710(5A写字楼)
展示体验中心:昆山九方城8号楼1706(5A写字楼)
工程管理中心:玉山镇柏庐北路156号(店面)
[ 此帖被大慈装饰在2021-02-21 13:18重新编辑 ]