案例信息丨Case Information
项目地点:时代悦府10#
项目类型:平层
项目性质:全案
项目面积:183㎡
项目风格:现代
首设计:张工
设计组:DACI全案组
户型解析
▼业主需求
业主夫一家五口居住,三室主卧要带书房办公,要稍微明亮一点,空间宽敞舒适。
▼户型优劣势
这个户型是标准的主力户型,采光很好,全明户型。
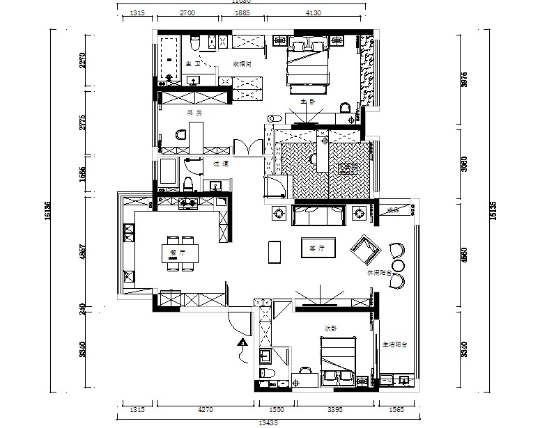
▼户型改造
餐厅和客厅的阳台都打通,增加采光
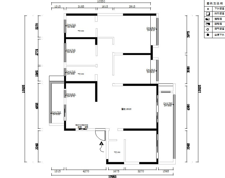
平面图

▲ 原始图

▲ 布局图
玄关
“出则繁华,入则宁静”凝练地道出了现代都市栖居的理想境界。
客厅

主灯华丽精致,天花板内嵌两条磁吸轨道灯,简繁呼应。

客厅是性格的表达,开放空间相互连接扩展,让光线洒满整个区域。

用简单的橱柜收纳杂物,视觉效果清爽整洁。
餐厅

大理石餐桌配上跳色的餐椅,延续整体空间的线条感和色彩。

温馨的就餐环境透露也出了主人对品味的拿捏。
厨房

消毒柜和冰箱内嵌,敞开式的厨房让生活交流更紧密。

主卧

主色调温柔,注重灯光氛围的营造,以此来营造出家的个性与舒适感。
书房

落地窗采光充足,宛若一个温柔的避风港,由内而外的平静宜人。
女儿房

主卧用灰和白营造安谧的休息氛围,配饰不在繁杂,而是从宜居的角度出发
小孩房

家里儿子正在对世界充满好奇的时候,增加了书架和榻榻米便于孩子学。
[ 此帖被大慈装饰在2021-03-14 10:39重新编辑 ]