案例信息丨Case Information
项目地点:时代中央花园
项目类型:平层
项目性质:全案
项目面积:170㎡
项目风格:新中式
首设计:郭工
设计组:DACI全案组
户型解析
▼业主需求一家三代居住,设计上追求舒适度和性价比。
▼户型优劣势
户型架构规整,客餐厅各在南北位置,无结构上的缺陷。
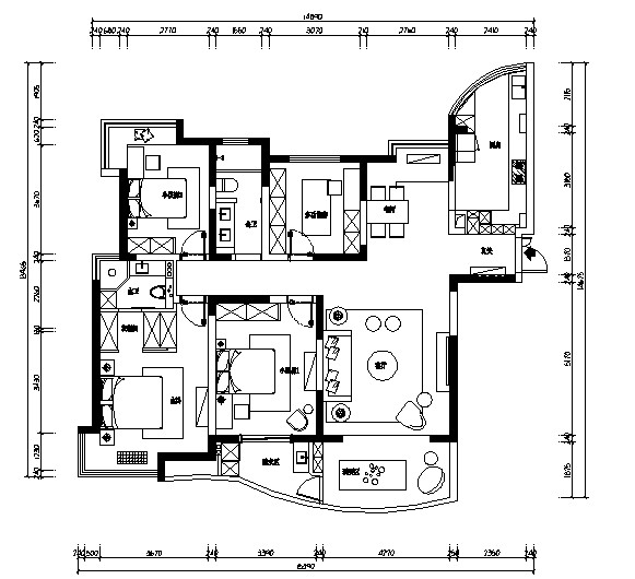
平面图

▲ 原始图
▲ 布局图
玄关

以新中式风格将精神与实用主义相结合,含而不露,隐而不隐,将日常情调融化在空间里。餐厅

厨房客厅相通,在吃饭时亦能享受阳光照进餐厅的那份温暖。
客厅

客厅设计极为克制,没有复杂的线条变化,摒弃繁琐复杂的装饰。

用素雅的色调和干净利落的线条,表现出一种由古典美的力量。

整屋利用原木色和山水画铺陈营造出一种寄情山水的治愈氛围。
主卧

主卧用色考究,天然木质纹理呈现出的质感美,整体空间流露出沉静淡然的气息,梅花背景板恰到好处的显露了东方印象,宁静惬意,以无声胜有声。
[ 此帖被大慈装饰在2021-04-28 15:05重新编辑 ]