夜间模式
  • 219769阅读
  • 28回复

[装修讨论]家具进场,装饰画拆开效果挺可,快完工~ [复制链接]

上一主题 下一主题
级别: 昆山过客
发帖
24
昆币
41 枚
20楼 发表于: 2021-07-04 , 来自:江苏省0==
多大面积啊
本帖评分记录
孝舜 昆币 +1 -来自昆山论坛APP 2021-07-09
印象水仙设计 昆币 +1 -来自昆山论坛APP 2021-07-05
2条评分昆币+2
爆料有奖!关注昆山论坛抖音号,抖音搜索“昆山论坛”,或搜索抖音号:ksbbs
 
帅哥离线印象水仙设计
级别: 家装商家
发帖
11382
昆币
19485 枚
21楼 发表于: 2021-07-05 , 来自:江苏省0==
那情说不完:多大面积啊 (2021-07-04 10:15) 

他们家套内140平左右呢
本帖评分记录
孝舜 昆币 +1 -来自昆山论坛APP 2021-07-09
1条评分昆币+1
爆料有奖!关注昆山论坛抖音号,抖音搜索“昆山论坛”,或搜索抖音号:ksbbs
 
离线孝舜
级别: 昆山过客
发帖
64
昆币
104 枚
22楼 发表于: 2021-07-09 , 来自:江苏省0==
印象水仙设计:他们家套内140平左右呢 (2021-07-05 14:37) 

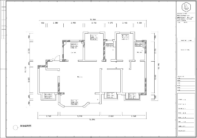
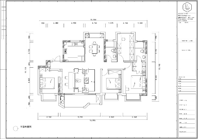
户型图有空分享一下呗
爆料有奖!关注昆山论坛抖音号,抖音搜索“昆山论坛”,或搜索抖音号:ksbbs
 
帅哥离线印象水仙设计
级别: 家装商家
发帖
11382
昆币
19485 枚
23楼 发表于: 2021-07-15 , 来自:江苏省0==
关注印象水仙
爆料有奖!关注昆山论坛抖音号,抖音搜索“昆山论坛”,或搜索抖音号:ksbbs
 
离线gaiqiao7
级别: 昆山新人
发帖
245
昆币
465 枚
24楼 发表于: 2021-07-18 , 来自:江苏省0==
户型改造图,看看,应大家的要求。





爆料有奖!关注昆山论坛抖音号,抖音搜索“昆山论坛”,或搜索抖音号:ksbbs
 
帅哥离线印象水仙设计
级别: 家装商家
发帖
11382
昆币
19485 枚
25楼 发表于: 2021-07-31 , 来自:江苏省0==
期待大家的关注
本帖评分记录
gaiqiao7 昆币 +1 -来自昆山论坛APP 2022-02-27
1条评分昆币+1
爆料有奖!关注昆山论坛抖音号,抖音搜索“昆山论坛”,或搜索抖音号:ksbbs
 
离线xiazhi3394
级别: 昆山新人
发帖
164
昆币
221 枚
26楼 发表于: 2021-08-09 , 来自:江苏省0==
你们家效果也很赞 印象水仙设计赞的
本帖评分记录
gaiqiao7 昆币 +1 -来自昆山论坛APP 2022-02-27
1条评分昆币+1
爆料有奖!关注昆山论坛抖音号,抖音搜索“昆山论坛”,或搜索抖音号:ksbbs
 
离线gaiqiao7
级别: 昆山新人
发帖
245
昆币
465 枚
27楼 发表于: 2022-02-27 , 来自:江苏省0==
对的
爆料有奖!关注昆山论坛抖音号,抖音搜索“昆山论坛”,或搜索抖音号:ksbbs
 
快速回复
限76 字节
如果您提交过一次失败了,可以用”恢复数据”来恢复帖子内容
 
上一个 下一个