夜间模式
  • 145634阅读
  • 86回复

【昆山兴达装饰】24年领域深耕,“出精品、传佳誉”中国健康整装领导者 [复制链接]

上一主题 下一主题
离线兴达装饰
发帖
770
昆币
1066 枚
20楼 发表于: 2021-11-19 , 来自:江苏省0==
我们秉持"以客户为中心",严格把控施工工地
让正在装修的业主更加放心质量
让还在犹豫的业主更加了解我们
装修不仅是我们的事业,更是一种责任
爆料有奖!关注昆山论坛抖音号,抖音搜索“昆山论坛”,或搜索抖音号:ksbbs
 
离线兴达装饰
发帖
770
昆币
1066 枚
21楼 发表于: 2021-11-21 , 来自:江苏省0==
一份荣誉,一份信赖,昆山兴达前进的动力
爆料有奖!关注昆山论坛抖音号,抖音搜索“昆山论坛”,或搜索抖音号:ksbbs
 
离线兴达装饰
发帖
770
昆币
1066 枚
22楼 发表于: 2021-11-22 , 来自:江苏省0==


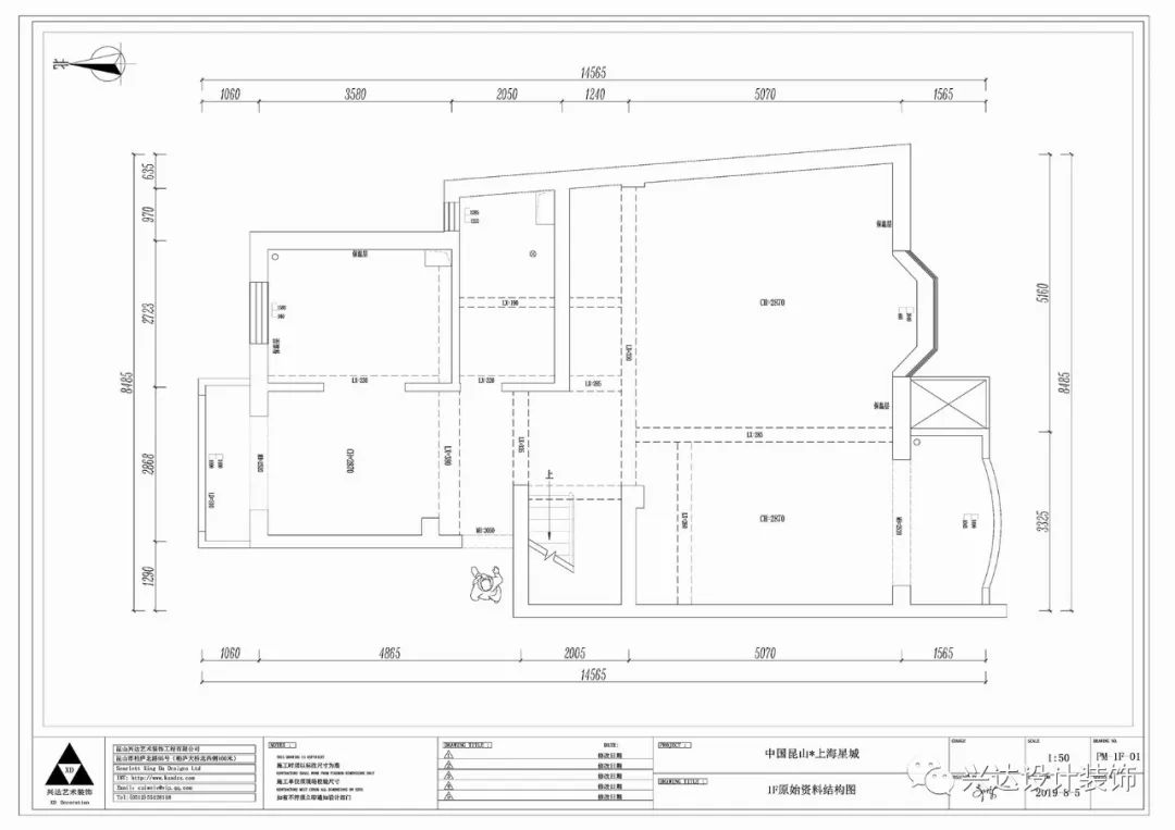
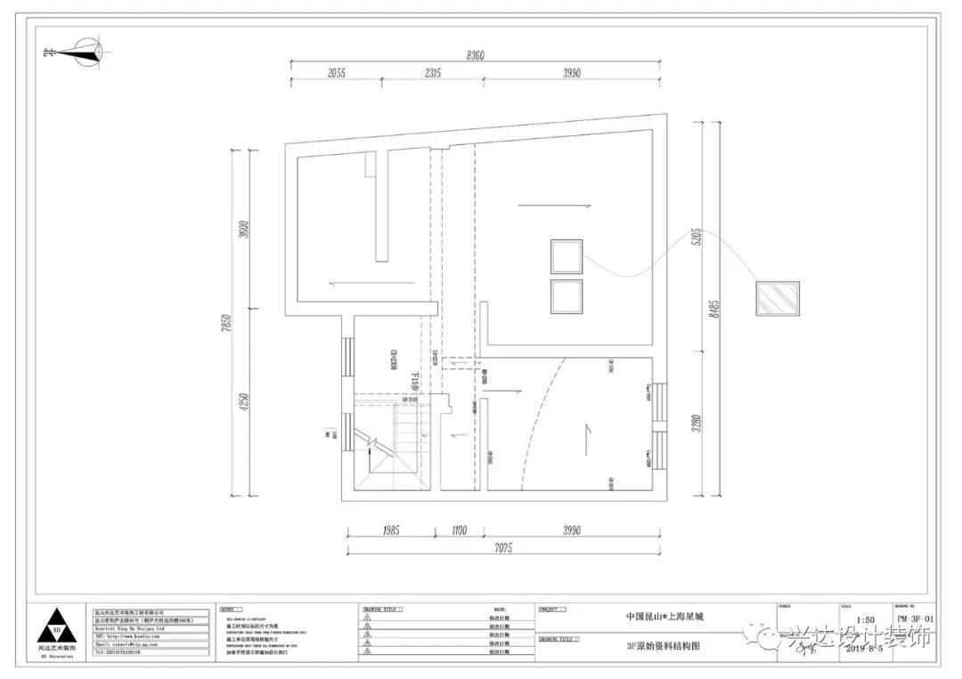
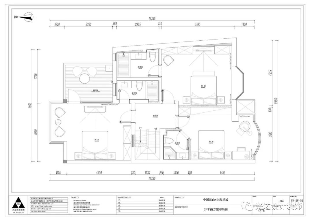
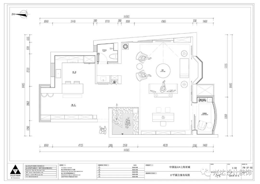
现代简约风格设计定位:家是心灵的港湾。随着人们在旅游中感受到简约的魅力,“简约但并不简单的装饰风格”。当疲惫的身心对家的依恋越发强烈,人们想要的是轻松、自由的环境,“现代简约风格”自然就成为家居设计的一种风尚。注重大小色块间的组合,地域性的后期配饰融入设计风格之中。

项目地址丨Project Add:江南理想城

机构丨Company:兴达国际设计装饰

设计丨Design:刘东

面积丨Square Meters:266m2




[ 此帖被兴达装饰在2021-11-22 15:48重新编辑 ]
爆料有奖!关注昆山论坛抖音号,抖音搜索“昆山论坛”,或搜索抖音号:ksbbs
 
离线兴达装饰
发帖
770
昆币
1066 枚
23楼 发表于: 2021-11-22 , 来自:江苏省0==

在这套266平米的装修案例中,整体以现代风格的大方空间格调,搭配上轻奢优雅的家具细节与软装布置,营造出一种淡雅而又端庄的档次氛围,在舒适的生活中点亮了舒适从容的居住体验感。



▲客厅以现代大方的空间基础,布置上现代优雅舒适的家具,使得客厅充满华丽轻松的惬意氛围。

电视墙以木饰面背景,在两侧装上收纳柜,保持简洁大方的墙面,同时也让空间显得更加优雅自然。




▲餐桌上简单布置酒杯与水果,顶上的金属质感的长条串吊灯,侧边收纳柜旁的矮柜+时尚条纹花瓶摆设,轻奢格调的壁灯布置,让空间显得华丽雅致而情趣。

爆料有奖!关注昆山论坛抖音号,抖音搜索“昆山论坛”,或搜索抖音号:ksbbs
 
离线兴达装饰
发帖
770
昆币
1066 枚
24楼 发表于: 2021-11-22 , 来自:江苏省0==



▲卧室在淡咖色的床头墙基础,装上一个白色推门的衣柜,布置以淡咖色皮质靠背的床铺,床头两侧的床头柜与梳妆台,也让卧室显得更加实用优雅。



▲床头墙上的环状吊灯,布置上淡蓝色的床单布置,让空间呈现出一种浪漫舒适的睡眠氛围。

———— 大咖简介 ————



副总设计师:刘东 从业经验:11年

设计理念:让设计物有所值,让细节缔造完美!

擅长风格:新中式、现代、简欧、美式、轻奢、日式

代表作品:泰鸿别墅,锦绣蓝湾别墅,昆玉九里,凤泽园别墅,绿地别墅,水月周庄别墅,中大艺墅,金大元别墅,自建别墅,太阳岛别墅,金湖银滩别墅,凤泽里别墅,九阳香郡,时代悦府,金鹰,清风华苑,金色森林,森林半岛,华润,观湖壹号江南镜秀,江南理想城,象屿珑庭中星城际,上海星城


预约装修咨询

拨打兴达设计装饰官方热线4008038586

拨打兴达设计装饰官方热线13405676346


向你推荐一个更赞的设计号

兴达.jpg

爆料有奖!关注昆山论坛抖音号,抖音搜索“昆山论坛”,或搜索抖音号:ksbbs
 
离线兴达装饰
发帖
770
昆币
1066 枚
25楼 发表于: 2021-11-23 , 来自:江苏省0==
万科别墅再来一套[强]感谢老客户的推荐,新客户第一次沟通就爽快签约。感谢新老客户的支持[抱拳],要装修还是选择老品牌口碑公司!

爆料有奖!关注昆山论坛抖音号,抖音搜索“昆山论坛”,或搜索抖音号:ksbbs
 
离线兴达装饰
发帖
770
昆币
1066 枚
26楼 发表于: 2021-11-23 , 来自:江苏省0==
爆料有奖!关注昆山论坛抖音号,抖音搜索“昆山论坛”,或搜索抖音号:ksbbs
 
离线兴达装饰
发帖
770
昆币
1066 枚
27楼 发表于: 2021-11-23 , 来自:江苏省0==
    
爆料有奖!关注昆山论坛抖音号,抖音搜索“昆山论坛”,或搜索抖音号:ksbbs
 
离线兴达装饰
发帖
770
昆币
1066 枚
28楼 发表于: 2021-12-01 , 来自:江苏省0==
论坛终于可以登录了 失踪人口回归
爆料有奖!关注昆山论坛抖音号,抖音搜索“昆山论坛”,或搜索抖音号:ksbbs
 
离线斜月吟风
级别: 昆山过客
发帖
39
昆币
43 枚
29楼 发表于: 2021-12-01 , 来自:江苏省0==
  
爆料有奖!关注昆山论坛抖音号,抖音搜索“昆山论坛”,或搜索抖音号:ksbbs
 
快速回复
限76 字节
如果您在写长篇帖子又不马上发表,建议存为草稿
 
上一个 下一个