夜间模式
  • 364524阅读
  • 99回复

斯是陋室,惟吾德馨—装修也是一场心理之旅,祝我好运 [复制链接]

上一主题 下一主题
级别: 昆山新人
发帖
157
昆币
259 枚
只看楼主 使用道具 电梯直达
楼主  发表于: 2021-12-27 , 来自:江苏省0==
家装日记
小区:
套内面积: 200 (平米)
预算:
开工日期: 2021.12.25
装修风格:
装修方式:
装修公司:
    装修,也是一场“战役”,知彼知己,最终呈现的才会是你想要的样子。想要和大家一起分享自己的装修旅程,看看最终结束之后回头看,是不是也别有一番风景。
     【关于我】我是一个急性子,细节控,重度强迫症,敏感又多疑,超级不喜欢出错、返工、意外,所以说实话,装修这样能脱层皮的苦活,其实不适合自己去操作。但奈何,睡眠极浅,到什么程度呢,一楼半夜手机震动的声音,我住4楼能听到。所以我是硬着头皮自己上了。
      【关于装修公司选择】我实话,接触了8家公司,有论坛的,有自己找的,有朋友推荐的。说实话,接触下来,感觉其实挺乱的,可能一次性看太多了。有的装修公司特别不厚道,可能看我一个人单枪匹马问上来的,觉得我啥也不懂,就给你整一些虚的,这种的我就呵呵一声,头也不回的走了。有的装修公司,来量了房没有下文了,可能觉得我的预算低就不接活了。但总体,目前只要有点装修的基本小常识,其实大多公司收费可以接受的,不是狮子乱开口,漫天要价。有四个公司我是纳入考虑范围的,A的设计师小哥哥很细心,只有他问到了我的家人情况,生活起居习惯,走时候细心的把门带上,但是A公司离我目前住的地方有点远,停车不太方便,我就放弃了,这家是论坛有的,口碑还可以,具体我就不说了,这个东西多少有点主观;B的公司设计师量房话不多,咔咔都干掉了,但是和你谈方案的时候,很有想法,方案也很多,会谈到很多细节,也会把风水和你说说,但是可能那天公司的美缝让我不是特别喜欢,我就怕工人做工出糙,当然极有可能是我多虑了,我就因为这个PASS了;C公司对我在的小区最了解,做了很多家了,经验丰富,但是设计师经常联系不到,我就很担忧,没签约都这样,以后怎么愉快的交谈。最后我选了D公司,同学的公司,其实一开始我也担忧,好多人就说装修不要找熟人,坑你没商量,但是呢,接触下来同学夫妻俩还是比较厚道的,一些大项目我都看了价格比较合适,也去现场看了,还是可以的,最主要他自己也在装修,答应了给我用他自己房子装修的工人,设计师也是个比较温柔的人(他说他自己又帅又会唱歌,就是英年早婚哈哈哈),比较适合我这种急躁、敏感、挑剔的人群,所以综合价位+工人+沟通满意度,我选了他们,希望不要辜负我的期待啊!
本帖评分记录
易星 昆币 +1 -来自昆山论坛APP 2022-07-27
ran111 昆币 +1 -来自昆山论坛APP 2022-03-17
一兆雪 昆币 +1 -来自昆山论坛APP 2022-02-15
荣盛门窗 昆币 +1 -来自昆山论坛APP 2022-01-06
4条评分昆币+4
爆料有奖!关注昆山论坛抖音号,抖音搜索“昆山论坛”,或搜索抖音号:ksbbs
 
级别: 昆山新人
发帖
157
昆币
259 枚
沙发  发表于: 2021-12-28 , 来自:江苏省0==
【关于装修风格】简约实用主义,我的感觉装修房子是用来自住的,简单实用,适合自己的生活起居才是最重要的。任何风格只能参考,特色鲜明的风格极容易随着时间而逐步的淘汰。
爆料有奖!关注昆山论坛抖音号,抖音搜索“昆山论坛”,或搜索抖音号:ksbbs
 
级别: 昆山新人
发帖
157
昆币
259 枚
板凳  发表于: 2021-12-28 , 来自:江苏省0==
爆料有奖!关注昆山论坛抖音号,抖音搜索“昆山论坛”,或搜索抖音号:ksbbs
 
级别: 昆山新人
发帖
157
昆币
259 枚
地板  发表于: 2021-12-28 , 来自:江苏省0==
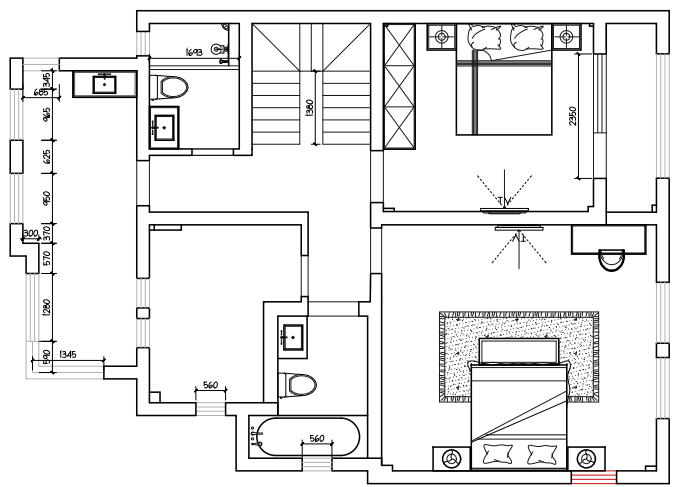
【户型图】
爆料有奖!关注昆山论坛抖音号,抖音搜索“昆山论坛”,或搜索抖音号:ksbbs
 
级别: 昆山新人
发帖
157
昆币
259 枚
4楼 发表于: 2021-12-28 , 来自:江苏省0==
【吐槽】开工第一天就遇上烦心事。1、物业问我收3000元的垃圾清运费,可是网上找的的红头文件显示毛坯第一次装修就是3元/平,建筑面积标准,问了物业就是不说标准哪边来的,趾高气扬说只要有本事,自己交去,他们也是代收。心塞啊,问了一圈,打了一圈电话,目前没落实下来;2、不知道天气冷,还是房子老,上水后房子外壁管道漏水,问了物业说是他们不负责维修,自己找人去。唉,都是万事开头难,我咋这么难?!
爆料有奖!关注昆山论坛抖音号,抖音搜索“昆山论坛”,或搜索抖音号:ksbbs
 
发帖
6918
昆币
6420 枚
5楼 发表于: 2021-12-28 , 来自:江苏省0==
恭喜楼主开工大吉
欢迎关注
【寅盛装饰无毒家装】装修不环保砸掉重做,昆山十年,口碑见证!
公司官网:[url][urlend2]  
VR案例:[url][urlend2]
精品案例:[url][urlend2]  
城东店:昆山市太湖路588号,左岸尚海湾3-103商铺 ( 近震川东路,阳光水世界对面 )
昆山城北店:昆山市柏庐北路94号( 柏庐大桥向北200米左右 )





楼中楼
  • 2022-01-30 18:04 一想天开: 不负责!钱付清了就不问事了!前面说的好听,一步一步都有管家给验收,实际情况是什么都不管!施工自己不验收让业主自己验收!找出问题就改,找不出来就不问事了!业主都是专业的啊!什么都懂!垃圾中的垃圾!
爆料有奖!关注昆山论坛抖音号,抖音搜索“昆山论坛”,或搜索抖音号:ksbbs
 
美女离线装修版客服
发帖
10174
昆币
22137 枚
6楼 发表于: 2021-12-28 , 来自:江苏省0==
开工大吉,要保持好心情呀,后期要常来分享哦
爆料有奖!关注昆山论坛抖音号,抖音搜索“昆山论坛”,或搜索抖音号:ksbbs
 
级别: 昆山新人
发帖
157
昆币
259 枚
7楼 发表于: 2021-12-28 , 来自:江苏省0==
【干货分享-瓷砖篇】转自网络
从几个日常维度,简单聊聊选瓷砖的参数。
1、防滑 防滑能力方面:没有抛光的通体砖(容易脏,不好看)>仿古砖(好看)>抛光砖(亮)>全抛釉(好看,亮)。
2、光泽

并不是越亮越好,不同瓷砖的表层的釉面和抛光,决定了光泽度。

也可以简单理解为全抛→亮光(如抛光砖、全抛釉),半抛→亚光(如仿古砖)。

20°以下称为亚光,色调偏暗;20°~70°之间称为柔光(据说比较适合人的视觉);80°以上为亮光(据说有光污染)。

<20°,多数暖色调仿古砖,因此也被成为亚光砖;

10°~55°,冷灰色调的现代仿古砖;

>55°,一般是抛光砖的国标最低要求,很多抛光砖做到80°以上。

家里采光如果不好,选光泽度稍微高一些的瓷砖,比如柔光的。
3、规格

客厅:地面用800*800(显大),客厅墙面多刷漆或壁纸;

卧室:地面用600*600(和谐),一般卧室不会太大,大尺寸砖不协调;

厨房:地面用600*600(跟卧室类似),墙面建议300*600,大砖因为自重大,上墙非常考验瓦工手艺,容易空鼓脱落;

卫生间:地面300*300,一般空间小,小砖贴的牢固,也避免大砖尺寸不凑巧,切大砖产生更多浪费。墙面可以300*600。

一个小提示:小空间建议横向贴砖,视觉上可凸显纵深。。

爆料有奖!关注昆山论坛抖音号,抖音搜索“昆山论坛”,或搜索抖音号:ksbbs
 
级别: 昆山新人
发帖
157
昆币
259 枚
8楼 发表于: 2021-12-28 , 来自:江苏省0==
【干货分享-瓷砖篇】转自网络大神
1:怎么样淘到自己想要的东西?

在逛建材市场或者淘宝之前,我觉得啊,你得弄明白自己的定位和产品。人人都想要性价比高的东西,价廉而又物美。而事实上呢,这么多年从业的结论,老李信奉一条原则:价廉,那么物一定美不到哪里去。所谓事出反常必有妖。心态一定要端正,尤其是在淘宝上。往往中招的,不能说您贪小便宜,只能说您把这事儿想的太理想了。往往栽跟头的就是这一类人。

先说说实体店吧,我们用瓷砖来打比方。

首先第一,我们得明白,

价格≠价值。

价格=价值+利润+店铺租金+人工成本+广告投入+运营成本+装修费用+其他乱七八糟的费用。

比如说老李在某地开一个瓷砖店,去佛山选择一个品牌,那么老李得去佛山亲自洽谈,选品牌产品,签订合同,然后回到家,租个店面【Money】,然后装修得漂漂亮亮的【Money】,再请导购【Money】,租仓库【Money】,请搬运工,仓管,送货【Money】,一系列人马,不仅得给商铺上交高昂的租金,支付水电人工,还得在当地打通各种销售渠道,和装修公司啊,铺贴泥水工啊,除此之外还得投入或多或少的广告费用------要不然哪里有人理你?

算起来就是【Money】+【Money】+【Money】+【Money】.......【Money】...于是乎,好端端的一块十块钱的瓷砖,摊上各种成本,老李一看,我卖不到20块钱,怎么赚钱啊?那我只好给价格标上20块钱了。

价格呢,就是这么出来的。以瓷砖行业为例,品牌越贵的,附加值越高,早些年一般的品牌,从厂家流通到终端,一般都是平均2倍的价格即可生存,这几年随着成本的上涨,及大家对品牌价值的追求,慢慢都上升到2.5~3倍左右了,个别品牌和高端产品甚至可以在终端实现4倍~5倍以上的成交价格。这也算是市场进步的一种表现。不过这样真的好吗?我有时候也会考虑这个问题。

举个例子,MKBL的某一模一样产品,在北京的售价是80元一片,那么在湖南某地可能只需要55。造成这种价格差异的原因,一部分是因为产地远近导致的物流价格不同,另外一部分原因就是北京的MKBL的专营店投入更大,店面更豪华,服务更好,广告更多,知名度更高,大家更加认MKBL这个品牌。这就造成了直观的价格差异。但是实际上呢,你买的东西都是一样的,没有任何区别。那你希望在哪里买?

当然,你是北京人,跑去湖南买显然不是一件现实的事情,不考虑厂家的区域保护政策【即a区域经销代理权所有者不得向B经销商区域发货】,往来路费也显然不划算。

相同产品不同价格的事情不仅在区域和区域之间发生,也不仅仅在瓷砖店里发生,在同一个城市内,也有一样存在。

其实你看到的各个不同位置,不同店面,有可能一个很豪华很宽敞,另外一个在很不起眼的角落里,装修也很一般。但是实际上他们的产品,也是一模一样的。因为品牌的背后,其实隐藏的是工厂。每个品牌在当地的代理商基本都是唯一的,那么工厂为了销售更多的货物,在同品牌只能唯一经销权的情况下,会怎么办呢?

当然是注册新的品牌,换个包装,这样多一个人卖我的东西。

同品不同价,就来源于此了。

当然,你不能说,开不同的品牌,卖完全一样的产品。这样就会形成恶性竞争。所以品牌和品牌之间,还是有所区分的。通常来说,同一厂家的不同品牌,只是在釉面砖的花色上有所区分。这种区别还有产品上的限制,比如说俗尘的抛光砖【也就是玻化砖】,是无法实现区分的。有所区分的,只能是在内墙砖【也就是瓷片】,全抛釉,微晶石等这些釉面砖上。这个是因为产线布料系统的限制。除此之外,工艺标准,设备参数,压机吨位,窑炉温度,原料采购,配方比例,产品的物理性能,所有的所有,全部是一模一样。所不同的,只是砖背面底部的标志,和釉面的花色以及包装。

那么这个时候,聪明的你自然知道该怎么选了。当然我不能说去豪华店面和去破落店面你的感受会完全一样,在服务上,氛围的豪华上,装修的细节上,肯定还是有一定区别。这就导致了你的价格接受程度的不同。

但是至少有一点可以肯定,你买到的东西,从产品层面来讲,实际上是没有区别的。

有些时候有些同学会在破落的瓷砖店被店员告之,我们跟前面那家很豪华的店里面产品其实是一模一样的。。。大多半信半疑...其实人家说的确实是实话。再有时候,你为了确认,跑去更豪华的店面询问,人家可能会告诉你,确实是一个厂的,但是我们是高端产品,他们是低端产品..

额。。。同厂出品,是不存在高端低端的区别的。瓷砖的生产过程就决定了这一点。

这一点不仅在瓷砖行业存在,在卫浴洁具,照明灯具、木地板、家电、各行各业,都存在不同程度的这种现象。各品牌竞争的背后,其实是厂家的综合角力。

比如箭牌、法恩莎、安华,以及乐华洁具在去年推出的塞唯雅,也是这种关系。

下面凭着记忆给出一张参照表,并对产品做一些简单的点评(主要是广东系资本):

新明珠陶瓷集团

点评:国产瓷砖企业三巨头之一。产品涵盖抛光砖、全抛釉、微晶石、内墙砖、仿古砖等等,属于佛山老牌陶瓷企业,质量稳定,设备先进,东西很扎实。传统强项是抛光砖和内墙砖,其他产品质量很稳定,价格稍微偏高,没有太大优势。仿古砖的设计方面在国内算不上一流水平,但是萨米特新出的小砖哥伦布1492系列个人觉得还算不错。

拥有品牌

广东基地:冠珠、萨米特、格莱斯、金朝阳、惠万家、路易摩登、康建、蒙地卡罗、金利高、宾利、德美【德美品牌已经2013年转回广东,现在由广东供货,算是广东品牌了】

江西基地:五福、百顺、爱空间

新中源集团:

点评:传统的老牌企业,但是现在很烂,由于投资方向偏差的关系,决策出现失误。现在供货非常乱。所属品牌及资产于2013年被新明珠集团收购了很大一部分。

广东基地:新中源、圣德堡、朗高(现在更名为朗宝)、新南悦、新粤、紫砂、裕景、新里万

四川夹江基地:珠江、天伟、巴丹、圣卡、陶仙坊

其他产区(辽宁河南江西):衡利丰、圣保路、瑞兴堡、兴邦、羊城。

顺成集团:

点评:销量三巨头之一,第二代大型企业,以内墙砖发家,号称瓷片帝国,性质与新中源和新明珠接近,强项在于内墙砖和抛光砖。全抛、微晶石性价比略有欠缺。设计方面随大流。

广东基地:顺辉 百特 王者,森尼,骏程,美陶

湖南基地:汤普森、泰伦斯、莱斯曼、兆邦、荣旺、创锐、恒基

唯美集团:

点评:马可波罗销量全国第一,毋庸置疑。擅长仿古砖尤其是大规格仿古砖。产品设计方面很不错,国内企业我给打前三名。擅长釉面砖(主要是仿古砖产品),抛光砖及全抛釉大部分为贴牌商生产。抛光砖的主要供应商之一是【天弼陶瓷】和【新濠瓷砖】。当然,贴牌厂家会有随时变化。值得一提的是近年来由于珠三角地区的环保控制日趋严格,东莞本厂的产能已经在慢慢缩减,更大份额转向江西、清远等地区生产。四川夹江的工厂也在筹建当中。也就是说你现在买到的马可波罗很大程度上不是广东砖。但是这个其实无所谓,后面再来说这一点。

所属品牌:马可波罗、L&D

欧美集团:

之前是外向型出口企业,之前以仿古砖见长,现在的抛光砖和全抛釉及微晶产品做的也还不错,和三巨头在质量上的区别几乎可以忽略不计。现在产品全面,质量也比较稳定。至于值不值得买,还是那句话,得看当地成本所决定的价格。

广东基地:金欧雅、欧美、奥米茄、意利宝、金陶名家、伽玛

江西基地:卡尔丹顿

宏威集团(习惯上还是叫宏宇厂):

点评:集团销量前三,三巨头之一,抛光砖瓷片相当稳定。投诉率很低。由于品牌各地经营手法差距较大,成本不一,所以同品价格差的表现,要比其他地方要略微大一些。想买价优质美的产品,这个厂的产品值得选。抛光砖很出色。

宏宇、威尔斯、宏陶、卡米亚、意特陶、威尔斯

能强集团

点评:抛光砖和内墙砖是强项。全抛釉做得也不错,但是从合格率和市场反馈上来讲,和三大集团略差少许,可以不计。本身也是老牌集团,质量稳定。产品研发和设计方面比起上述三大集团要略差了一点点,设备参数、工艺标准方面也略逊色一筹。属于性价比品牌。

能强、强辉、莱德利、利家居、金科

东鹏集团:

点评:集团销量来说,东鹏并不在三大巨头之内,虽然说东鹏单品牌的销量,已经做到全国第一。东鹏的优势在于它几点:

1、产品的开发和设计及创新能力,在抛光砖领域一直都是走在前沿,比如早年风靡一时的聚晶微粉、洞石等产品,全部出自东鹏。

2、严格的产品质量控制体系。这代表了东鹏的产品质量稳定程度确实要强过其他厂家,包括马可波罗。与诺贝尔相当,在国内算是一流水平。

3、在生产的设备参数和工艺标准上,如果说三巨头是8.5,那么东鹏大概是9的水平。具体数据就不一一列出了。

【题外话】东鹏瓷砖是不错,但是东鹏卫浴那可是真心差啊....回头在卫浴篇里细说。

金舵集团:

点评:佛山老牌企业,现在生产基本迁到广西,佛山只保留了抛光线,虽然生产线迁移了,但是在业内的口碑还是有的。比较稳定。内墙砖做的要稍微差一些。

金舵、天纬、强牌、星期七

兴辉集团:

点评:这个厂子很有意思。起的比较晚,2003年才注册。他和美国莫霍克进行了比较深度的合作。是北美三大瓷砖生产商之一daltile的贴牌商之一,质量稳定程度和产品设计方面都表现得非常不错。从数据上看甚至优于三大。尤其是替daltile贴牌的出口产品,非常漂亮,可惜都不在国内销售。陈总裁国内市场的重心也放在传统产品上,也就是抛光砖和内墙砖。仿古砖有推出,做的也还不错,产品设计上是不逊色于东鹏的,毕竟有daltile技术支持的底气,但是没有在这方面花力气,甚为遗憾。在全国各地的店面综合水平来说运营成本不会特别高,其实是个值得选择的品牌,走的性价比路线。【有一次有个中东的客户根据照片订了2个柜的daltile代工品,结果因为合资中方没办法排产,白白损失了3万多的利润,很可惜,一直引以为憾】有好东西,可惜走岔路。

兴辉、加西亚、家乐陶(家乐陶现已转让经营权,非兴辉集团供货)

博华企业

点评:性质接近三大,跟能强接近,无甚明显优缺点。

博华、我e家、名典、骆驼

蒙娜丽莎企业:

蒙娜丽莎、樵东(QD)、长城

点评:老牌企业,最早一批做瓷砖海外市场的企业之一。强项是釉面砖,仿古砖产品设计很不错,这两年也开始重视国内市场,研发能力也比较强。但是抛光砖性价比相对一般,如果能在三大巨头内或者老牌企业里能找到自己喜欢的花色,就没必要一定蒙娜丽莎,毕竟还得讲求个性价比。仿古砖和内墙砖都做得不错。蒙娜丽莎品牌的缺点是价格有点略高。长城的产品设计太次。。是个缺憾。樵东改头换面,成为现在的QD,但是目前来说不算顺利,可能全国能看到专卖店的比较少。

欧神诺集团:

欧神诺、特地

点评:欧神诺的产品研发能力非常强。缺点是产品价格过高。质量很不错,抛光砖方面可以跟东鹏比肩。去年还是前年推出的梵高系列抛光砖很漂亮。全抛釉和微晶石为贴牌产品,设计不错,但是釉面砖的质量稳定性从数据来看,比起一线集团有些差距,虽然不大。价格太高之唯一障碍。

鹰牌集团:鹰牌、华鹏

点评:没得说了,中国最早的几家陶瓷厂之一。但凡是陶瓷做的早的企业,玻化砖产品都会做得不错,鹰牌的尤其为代表。曾经下滑很厉害,10年自林伟携团队回归,发展迅猛,目前销量超过有10个亿。质量很稳,不逊色于三大。整体水平非常均衡,没有明显弱点。

汇亚集团:汇亚、恒福、玛缇

点评:汇亚和恒福都算是性价比还不错的品牌,也是佛山老牌企业之一。值得一提的是玛缇,价格真心坑。属于典型的高价不高质的产品。营销上做的还不错,但是产品与其价格无法匹配。不推荐。

陶一郎企业:陶一郎 红蜘蛛 伊莎(仿古砖)

点评:新兴企业,早几年内墙砖和釉面砖做的相当不错,靠产品杀出一条血路。近几年渐为疲软,没有明显提升。价格略高。性价比方面不是那么好。

差不多广东系的主流企业都说到了...好累。

原理大家都知道了吧,同个厂所属品牌,挑最便宜的买就好了。甭管他店面是多豪华,还是多一般,买性价比最好的产品,才是硬道理。

下面说说华东系瓷砖。

华东系瓷砖,其实是优于佛山瓷砖的。多为台资或者有外资背景,工厂的质量控制体系和工艺标准,实际上比佛山的更为严格。但是由于产量限制,所以市场占领的份额比较有限。所以走的是精品路线。

代表品牌有诺贝尔、斯米克、冠军、长谷等等。在整个生产过程当中,和原料如色釉料等供应商更为紧密,色釉技术应用程度会更好一些。其他的成型设备包括工艺参数,和广东1线2线企业差不多,但是釉面技术特别是质检体系,比广东企业要更成熟一些。

比如说华东系瓷砖的色墨供应商基本都是Colorobbia,zimmer,Esmalglass-Itaca这种高端厂商。诺贝尔瓷砖在中国有今天的局面,colorobbia的技术人员是功不可没的。而相比之下,广东除了个别做精品仿古砖的厂商或者是传统老牌企业的部分高端产品之外,包括三巨头在内,大部分都是道氏、大鸿、瑭虹、明朝、汇龙等国产厂商。

在釉面砖领域中(仿古砖、全抛釉、内墙砖、微晶石都属于釉面砖),釉面的技术是尤其重要的。好的墨水和不好的墨水之间差距很大。成本差距不可以道里计。这就是为什么进口的砖往往都能卖出天价的原因。最贵的墨水堪比贵金属的价格,一公斤可以上万。比如西班牙进口的porcelanosa有一款产品就用到这种墨水。而华东品牌里的诺贝尔塞尚,和长谷瓷砖的高端产品,就很能体现优质墨水和普通墨水的差距。

另外一点,华东系的特征就是在产品设计上,平均水平要比广东系的更好。一个很主要的原因就是色釉料的应用和开发。基本上华东系的知名品牌每个厂的调色车间都有意大利和西班牙的设计师驻厂调色,而在广东能做到的并不是很多。金意陶和其高端品牌ICC都有做到这一点,另外有部分小型仿古精品品牌,也会有外籍设计师驻厂调色。
综上所述,实际上排除掉胚体的话,好砖和没那么好的砖,主要区分就在于釉面设计效果了。所谓釉面效果,也就是决定你购买瓷砖本身最直接的目的-----装饰效果。同时,好砖和没那么好的砖,成本上的区分,也就区分在原料和工序上。

至于砖的胚体,是有区别,但是区别不会特别大。有很多卖家和经销商喜欢使用威胁式销售法,常见的就是“如果你买的砖胚体不好,就会如何如何如何”....本人极其讨厌这种做法。

事实上,只要不是那种作坊式的运作或者是毫无质检体系工厂的出品,在稍微有一点知名度品牌之间的胚体物理参数对比,区别是非常小的。在使用当中,你就更体会不到什么区别了。

还是那句话,别过份贪便宜,那么都不会有什么麻烦事情。

写到这里了,突然想起来有几点忠告给大家:

1:面积低于70方,预算低于120每平米以下的,不要网购,因为你网购省不了多少钱,这个价位的产品也不会让你买到更好的东西,算上你的运输成本,物流货损,退补货的色差及运输一系列因素,一旦遇上麻烦,保管你欲仙欲死;

2:淘宝上尤其是天猫上,排名前几那几家瓷砖卖家的东西买不得.....跟你当地的杂牌货没有啥本质上的区别,尤其是HDS,老板张WX,做国际贸易出身,和我曾经是同行,他的砖几乎全是四流厂家供货。包括CZXS、QQLS、YJ、SBD等等。

3:有的同学问,你刚才发了好砖和没那么好的砖的图片,我看不出来区别?怎么办?

---------确实有这种买家,而且不在少数。我把这种现象归结于每个人对颜色、质感的敏感程度不同而造成的。瓷砖发展到今天,实际上有一种趋势在慢慢清晰,也就是说,随着工业化的进程,和机械设备的普及程度慢慢加深,瓷砖本身的艺术属性,已经开始取代其本身的建材属性,成为更重要的属性。

通俗一点讲,就是砖都还可以,就是谁做的更好看,谁做的更合你的意,谁能做出你心里想要的那片空间。

如果你觉得第一个好看,那么果断选择第一个!更适合自己才是重要的,对吧。

你是喜欢Zara还是H&M还是GAP还是优衣库?自己选吧。

我反正喜欢佐丹奴。

点评一下道格拉斯:

道格拉斯是典型的广东系,资格也很老,有很深厚的外贸背景,主打国外高端的瓷砖出口市场。之所以不跟广东系的这些企业一起提起的原因是,道格拉斯有点游离于这个体系之外。和简一大理石一样,他们都是从外贸企业转型国内比较成功的企业之一。

在设计风格上和色釉料应用技术上,道格拉斯更加偏向于欧洲如意大利西班牙的设计风格及审美,不像广东这些企业喜欢做亮晶晶的东西。而且道格拉斯本身也有代理一些进口砖,和自己的砖夹杂在一起卖。但是通常价格很高昂。

从设计风格上来讲,道格拉斯更像是华东系的企业。而长期和高端海外市场客户打交道的企业,质控和工艺标准再差也差不到哪里去。

他的产品以哑【亚】光砖为主,这两年也开始做一些全抛釉。空间应用没有太复杂的应用,不像传统的广东厂家,需要通过复杂的加工,拼花,切割造型来营造豪华和富丽堂皇的感觉,而更多的是通过大面积的普通铺贴或者简单几何加工,及色块运用来营造出整个空间的质感。

这种设计观念我本人非常认同,简洁就是美,这种风格其实也更适合现在的家居空间运用。

用服装来类比,如果说广东企业是花花绿绿的森马班尼路,那么道格拉斯这种品牌就更像相对庄重的G2000。

当然我还是喜欢佐丹奴。

好类,我接着说几个要点,比较碎片化,没什么逻辑,但是应该都能用得上。

1:买瓷砖别去装修得最好的最豪华的店子里买,员工越多,装修越豪华,租金越贵,这些都肯定得羊毛出在羊身上。多去那些位置相对没有那么好,装修没那么豪华,但是是属于同集团品牌的店子去买。不会比豪华店里出来的东西差。

2:山东砖江西砖湖南砖不能买?一定得佛山砖?

当然不是。

实际上你们买到的马可波罗、诺贝尔、金意陶、包括广东三巨头品牌里出的产品,都有为数不少的湖南、江西、山东产品。

有一种说法是佛山的粘土的质量好,所以烧出来的砖好。那是十年前的老皇历了。佛山的土早就被挖空了。现在广东的厂家基本上都是从湖南江西广西等临近省份运来的高岭土。

好品质,实际上是依靠稳定的机械设备、高标准的工艺要求、严苛的质检体系实现的。现在不是十年前了民用工业配套体系还不健全的时代了。说到底,还是企业和企业之间硬件和软件的竞争。硬件区别可能不是特别大,软件的区别要更大一些。举个简单的例子,如果一个时间段里窑炉温度不稳定导致出现了一批产品曲面不符合质检要求的砖,而且这批砖为数还不少,那该怎么办?

A厂的处理方法可能就是全部砸掉,或者降级处理;

但是B厂可能就维持原级,打上包装当优等品卖,这样就避免了损失,但是会伤害到消费者。

前者就是品牌,后者就是杂牌。这就是所谓品牌本质上最大的区别。

比如现在山东的狮王和瑞诺,就算是山东砖里的精品,完全可以买。

3:有一种普遍的现象是代工现象。知名品牌的低端产品,也就是通常所说的市场上的阻击品,基本上都是用来吸引消费者,阻击竞争对手为目的的产品。利润非常低。

不光瓷砖,打个比方,科勒,toto,箭牌这些品牌,他们在市场上的599,699,甚至499,399这样的价格的产品,都不是自己生产。而是以控制成本为目的在外采购的产品。这种产品在质量控制、原料、零部件、工艺标准、质控上,都和本厂产品有相当距离。

很简单,在人力成本和原料成本不变的情况下,自己的产能,当然要用来生产更高利润的产品。这个是每个厂家销量到了一定规模的惯常做法。

价格太低,自然没有好货。

所以,去知名品牌,最好不要买那种你觉得捡到大便宜了的产品。那种东西其实跟杂牌没啥区别,而且比杂牌还要贵。买其优势产品和非代工产品才是明智选择。

比如说每个陶瓷品牌的主产品。

卫浴里面代工就更值得讲了,会另外开篇幅。

=========================

下面来讲讲全抛釉和抛光砖。

全抛釉属于釉面砖,抛光砖属于无釉砖。

全抛釉的纹理形成类似于绘画。先在喷布(即底釉)上绘制图案,用彩色墨水混合,形成现在的色彩鲜艳的纹理和图案。然后在上面淋一层釉,高温烧成之后,就形成了一层透明的玻璃状物质。其结构是:玻璃下的画。所以你看侧面,有一层很薄的玻璃。

抛光砖是在泥土底配上,用半金属氧化物性质的色料(各种颜色),通过布料机均匀的洒在泥土胚上,然后再通过窑炉高温将其烧结成整体玻相,最后抛光表面,让粉料形成的纹理均匀显现出现在你看到的花纹。这个就是抛光砖也叫玻化砖。从侧面看,玻化砖的表面有一层白色的粉料层,3~5mm左右。

两者在使用上的区别,最直观的是耐磨程度。抛釉的耐磨系数要低于抛光砖。5点多的莫氏,而抛光砖可以做到接近7的莫氏。

从使用角度来看:

打个比方,如果你家在城市,鞋底基本上没有什么沾上砂子小石头等高硬度小物体的机会,或者说你进家必然换鞋,那么这个时候抛釉砖收到的摩擦少,就比较难产生划痕,可以一直很光良。但是如果你家在近郊,进出人比较多,鞋底泥沙多,进屋不换鞋,那么在一段时间之后肯定会产生很多划痕。不过一般都在可以接受的范围内,不会太夸张。

抛光砖相对就耐磨很多。楼主家里5年前的抛光砖到现在还跟新的一样。

从装饰角度来看:

抛光砖的缺点是纹理和颜色相对单调,缺乏质感。而全抛釉因为是使用彩色墨水着色,所以会好看很多,另外因为表面釉层的存在,折射率也高很多。光泽度抛光砖通常能做到7~85左右。全抛釉根据表面釉层可以做到接近110。也就是说,全抛釉看起来更加富丽堂皇一些。

这个就看大家自己的取舍了。

=============================

说说微晶石的使用。

微晶石只能上墙,无法下地。除非说你家有人定期用保养石材的抛光机进行保养,或者说能一直保持入户换软底鞋的习惯。否则用微晶石还真是个很麻烦的事情。全抛釉在耐磨上表现得稍微要好一些。但是如果你家在近郊,出入人比较多,鞋底带坚硬颗粒物的情况无法避免,最好就连全抛釉也不要用。

就耐磨系数来说,全抛釉表面上那层透明釉大概只有莫氏5级出头。比不上抛光砖的接近7。

微晶石的熔块釉层就更低了,实测不到5。

=============================

抛光砖都是全瓷,整体都烧至玻相,没有听说过有半瓷抛光砖的说法。除非说是砖本身没有经过1200以上的高温烧透,导致胚体非全瓷状态,但是现在这种砖应该很少见了,本身就应该算是不合格的产品。

全瓷和半瓷其实最大的区分就是吸水率。只要是吸水率在千分之一一下的,都应该划归全瓷。而在仿古砖上这个概念被提得更多一些。通常来说,450规格以上的,就必须是全瓷胚体了。而低于450规格的,通常来说都是陶质胚体。

不过是不是全瓷,压根不重要。胚体再好,颜色太差,选他干嘛。

以前没有人提的,倒是这几年把这个梗拿出来炒冷饭。实际上没有啥实际意义。

谁家抛光砖不是全瓷啊。希得他。

=============================

仿古砖的情况要复杂很多。主要因其产品设计分为几个不同的流派。通常来说,仿古砖的水平,抛开进口产品,以国产来分的话,我心目当中的排名整体排名是

一流水平:

Nano(很多人不知道这个厂家,属于隐藏boss级别)

ICC

诺贝尔塞尚

道格拉斯

R.A.K(没人知道)

MOOOID(没人知道)

二流水平:

金意陶(二流往上,和Interceramics合作之后,设计水平有明显的提升)

长谷(个别产品算得上一流水平)

芒果(芒果今年新出的新品庄园系列实际上可以满足一流水平的要求)

马可波罗(如果不是1295系列,那可以掉到第三了)

蓝铂(二流往下,某几款产品还算不错)

....

....

....

伊派 伊加 伊莎 蓝铂 玛卡洛尼

三流水平

。。。。。。。。太多了

值得注意的是,一二流排名并不绝对,只能说明整体水平。如田忌赛马,二流品牌里的某个中高端产品拿出来,还是可以轻松秒杀一流品牌的中低端产品。这种情况并不稀奇。每个品牌都有低中高端产品,一定要横向比较才行。这个一二流只是我心目当中对品牌的设计能力和研发实力的综合体现。至少一流企业里都是有外籍设计师团队和色釉料服务商常年驻厂开发,而二流企业里这种情况就很少或者是没有。

实际上这种排序方式并不理智,你可以不用理会。

仿古砖更接近于艺术品,掂量自己的钱包,选择最适合自己的的东西,才是最重要的。

=============================

教大家一个小诀窍。如果有人号称自己是佛山品牌,就查询他官网。凡是注册地在市东下路,圣堂后街,高基街这类地方的..基本都不可能是佛山品牌。目前至少暂时还没发现例外。
爆料有奖!关注昆山论坛抖音号,抖音搜索“昆山论坛”,或搜索抖音号:ksbbs
 
级别: 昆山新人
发帖
157
昆币
259 枚
9楼 发表于: 2021-12-28 , 来自:江苏省0==
【干货分享-瓷砖篇】转自网络
下面凭着记忆给出一张参照表,并对产品做一些简单的点评(主要是广东系资本):
新明珠陶瓷集团
点评:国产瓷砖企业三巨头之一。产品涵盖抛光砖、全抛釉、微晶石、内墙砖、仿古砖等等,属于佛山老牌陶瓷企业,质量稳定,设备先进,东西很扎实。传统强项是抛光砖和内墙砖,其他产品质量很稳定,价格稍微偏高,没有太大优势。仿古砖的设计方面在国内算不上一流水平,但是萨米特新出的小砖哥伦布1492系列个人觉得还算不错。
拥有品牌
广东基地:冠珠、萨米特、格莱斯、金朝阳、惠万家、路易摩登、康建、蒙地卡罗、金利高、宾利、德美【德美品牌已经2013年转回广东,现在由广东供货,算是广东品牌了】
江西基地:五福、百顺、爱空间
新中源集团:
点评:传统的老牌企业,但是现在很烂,由于投资方向偏差的关系,决策出现失误。现在供货非常乱。所属品牌及资产于2013年被新明珠集团收购了很大一部分。
广东基地:新中源、圣德堡、朗高(现在更名为朗宝)、新南悦、新粤、紫砂、裕景、新里万
四川夹江基地:珠江、天伟、巴丹、圣卡、陶仙坊
其他产区(辽宁河南江西):衡利丰、圣保路、瑞兴堡、兴邦、羊城。
顺成集团:
点评:销量三巨头之一,第二代大型企业,以内墙砖发家,号称瓷片帝国,性质与新中源和新明珠接近,强项在于内墙砖和抛光砖。全抛、微晶石性价比略有欠缺。设计方面随大流。
广东基地:顺辉 百特 王者,森尼,骏程,美陶
湖南基地:汤普森、泰伦斯、莱斯曼、兆邦、荣旺、创锐、恒基
唯美集团:
点评:马可波罗销量全国第一,毋庸置疑。擅长仿古砖尤其是大规格仿古砖。产品设计方面很不错,国内企业我给打前三名。擅长釉面砖(主要是仿古砖产品),抛光砖及全抛釉大部分为贴牌商生产。抛光砖的主要供应商之一是【天弼陶瓷】和【新濠瓷砖】。当然,贴牌厂家会有随时变化。值得一提的是近年来由于珠三角地区的环保控制日趋严格,东莞本厂的产能已经在慢慢缩减,更大份额转向江西、清远等地区生产。四川夹江的工厂也在筹建当中。也就是说你现在买到的马可波罗很大程度上不是广东砖。但是这个其实无所谓,后面再来说这一点。
所属品牌:马可波罗、L&D
欧美集团:
之前是外向型出口企业,之前以仿古砖见长,现在的抛光砖和全抛釉及微晶产品做的也还不错,和三巨头在质量上的区别几乎可以忽略不计。现在产品全面,质量也比较稳定。至于值不值得买,还是那句话,得看当地成本所决定的价格。
广东基地:金欧雅、欧美、奥米茄、意利宝、金陶名家、伽玛
江西基地:卡尔丹顿
宏威集团(或者宏宇厂):
点评:集团销量前三,三巨头之一,抛光砖瓷片相当稳定。投诉率很低。由于品牌各地经营手法差距较大,成本不一,所以同品价格差的表现,要比其他地方要略微大一些。想买价优质美的产品,这个厂的产品值得选。抛光砖很出色。
宏宇、威尔斯、宏陶、卡米亚、意特陶、威尔斯
能强集团
点评:抛光砖和内墙砖是强项。全抛釉做得也不错,但是从合格率和市场反馈上来讲,和三大集团略差少许,可以不计。本身也是老牌集团,质量稳定。产品研发和设计方面比起上述三大集团要略差了一点点,设备参数、工艺标准方面也略逊色一筹。属于性价比品牌。
能强、强辉、莱德利、利家居、金科
东鹏集团:
点评:集团销量来说,东鹏并不在三大巨头之内,虽然说东鹏单品牌的销量,已经做到全国第一。东鹏的优势在于它几点:
1、产品的开发和设计及创新能力,在抛光砖领域一直都是走在前沿,比如早年风靡一时的聚晶微粉、洞石等产品,全部出自东鹏。
2、严格的产品质量控制体系。这代表了东鹏的产品质量稳定程度确实要强过其他厂家,包括马可波罗。与诺贝尔相当,在国内算是一流水平。
3、在生产的设备参数和工艺标准上,如果说三巨头是8.5,那么东鹏大概是9的水平。具体数据就不一一列出了。
【题外话】东鹏瓷砖是不错,但是东鹏卫浴那可是真心差啊....回头在卫浴篇里细说。
金舵集团:
点评:佛山老牌企业,现在生产基本迁到广西,佛山只保留了抛光线,虽然生产线迁移了,但是在业内的口碑还是有的。比较稳定。内墙砖做的要稍微差一些。
金舵、天纬、强牌、星期七
兴辉集团:
点评:这个厂子很有意思。起的比较晚,2003年才注册。他和美国莫霍克进行了比较深度的合作。是北美三大瓷砖生产商之一daltile的贴牌商之一,质量稳定程度和产品设计方面都表现得非常不错。从数据上看甚至优于三大。尤其是替daltile贴牌的出口产品,非常漂亮,可惜都不在国内销售。陈总裁国内市场的重心也放在传统产品上,也就是抛光砖和内墙砖。仿古砖有推出,做的也还不错,产品设计上是不逊色于东鹏的,毕竟有daltile技术支持的底气,但是没有在这方面花力气,甚为遗憾。在全国各地的店面综合水平来说运营成本不会特别高,其实是个值得选择的品牌,走的性价比路线。【有一次有个中东的客户根据照片订了2个柜的daltile代工品,结果因为合资中方没办法排产,白白损失了3万多的利润,很可惜,一直引以为憾】有好东西,可惜走岔路。
兴辉、加西亚、家乐陶(家乐陶现已转让经营权,非兴辉集团供货)
博华企业
点评:性质接近三大,跟能强接近,无甚明显优缺点。
博华、我e家、名典、骆驼
蒙娜丽莎企业:
蒙娜丽莎、樵东(QD)、长城
点评:老牌企业,最早一批做瓷砖海外市场的企业之一。强项是釉面砖,仿古砖产品设计很不错,这两年也开始重视国内市场,研发能力也比较强。但是抛光砖性价比相对一般,如果能在三大巨头内或者老牌企业里能找到自己喜欢的花色,就没必要一定蒙娜丽莎,毕竟还得讲求个性价比。仿古砖和内墙砖都做得不错。蒙娜丽莎品牌的缺点是价格有点略高。长城的产品设计太次。。是个缺憾。樵东改头换面,成为现在的QD,但是目前来说不算顺利,可能全国能看到专卖店的比较少。
欧神诺集团:
欧神诺、特地
点评:欧神诺的产品研发能力非常强。缺点是产品价格过高。质量很不错,抛光砖方面可以跟东鹏比肩。去年还是前年推出的梵高系列抛光砖很漂亮。全抛釉和微晶石为贴牌产品,设计不错,但是釉面砖的质量稳定性从数据来看,比起一线集团有些差距,虽然不大。价格太高之唯一障碍。
鹰牌集团:鹰牌、华鹏
点评:没得说了,中国最早的几家陶瓷厂之一。但凡是陶瓷做的早的企业,玻化砖产品都会做得不错,鹰牌的尤其为代表。曾经下滑很厉害,10年自林伟携团队回归,发展迅猛,目前销量超过有10个亿。质量很稳,不逊色于三大。整体水平非常均衡,没有明显弱点。
汇亚集团:汇亚、恒福、玛缇
点评:汇亚和恒福都算是性价比还不错的品牌,也是佛山老牌企业之一。值得一提的是玛缇,价格真心坑。属于典型的高价不高质的产品。营销上做的还不错,但是产品与其价格无法匹配。不推荐。
陶一郎企业:陶一郎 红蜘蛛 伊莎(仿古砖)
点评:新兴企业,早几年内墙砖和釉面砖做的相当不错,靠产品杀出一条血路。近几年渐为疲软,没有明显提升。价格略高。性价比方面不是那么好。
差不多广东系的主流企业都说到了...好累。
原理大家都知道了吧,同个厂所属品牌,挑最便宜的买就好了。甭管他店面是多豪华,还是多一般,买性价比最好的产品,才是硬道理。
下面说说华东系瓷砖。
华东系瓷砖,其实是优于佛山瓷砖的。多为台资或者有外资背景,工厂的质量控制体系和工艺标准,实际上比佛山的更为严格。但是由于产量限制,所以市场占领的份额比较有限。所以走的是精品路线。
代表品牌有诺贝尔、斯米克、冠军、长谷等等。在整个生产过程当中,和原料如色釉料等供应商更为紧密,色釉技术应用程度会更好一些。其他的成型设备包括工艺参数,和广东1线2线企业差不多,但是釉面技术特别是质检体系,比广东企业要更成熟一些。
楼中楼
  • 2023-02-26 10:09 海阔天空i: 我一个做装修的看的津津有味,学习到了
本帖评分记录
海阔天空i 昆币 +1 -来自昆山论坛APP 2023-02-26
1条评分昆币+1
爆料有奖!关注昆山论坛抖音号,抖音搜索“昆山论坛”,或搜索抖音号:ksbbs
 
快速回复
限76 字节
如果您在写长篇帖子又不马上发表,建议存为草稿
 
上一个 下一个