夜间模式
  • 10795阅读
  • 0回复

168㎡现代北欧轻奢 [复制链接]

上一主题 下一主题
美女离线大慈装饰
级别: 家装商家

发帖
20527
昆币
2358 枚
只看楼主 使用道具 电梯直达
楼主  发表于: 2022-01-16 , 来自:江苏省0==
/

本期案例

/


坐标│江苏·昆山
区域│兰亭御园6#2**室
户型│四方室二厅一厨三卫二阳
面积│168㎡
风格│现代北欧轻奢
设计师丨张工

户主介绍

一个168㎡ 的复式,室内装修选择了现代轻奢风格,素雅的色彩选择,利用些许的亮色点缀提升整体品质。整个的装修效果符合了业主的期待,一楼3个卧室分别是业主夫妻俩、老人房与客卧的单独空间,二楼属于儿子的单独空间,大卧室加一个电竞房,根据各自的特点进行个性定制,打造出只属于且适合他们生活的卧室空间。

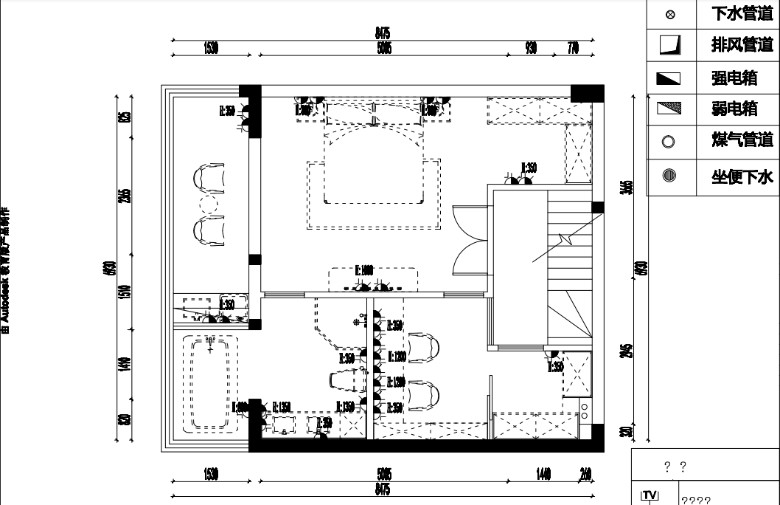
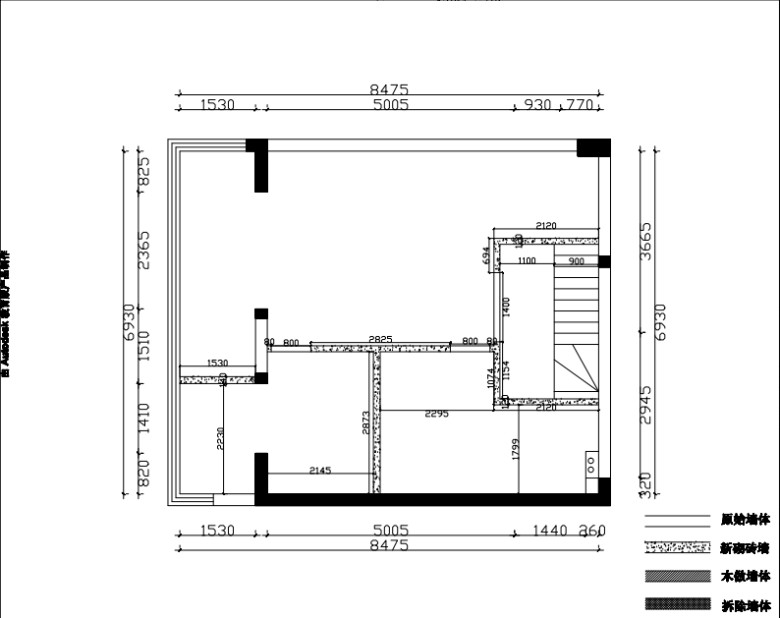
一楼原图



二楼原图




一楼布置图




二楼布置图




▲设计图


/

设计理念

温馨舒适轻奢风格非常注重生活的质量,除了要外表简洁奢华,内在也是相当重要的,每一位业主都希望能打造一片能让自己身心完全放松的家具环境。一位名设计师曾经说过,轻奢装修风格就像冬天里的一张羊绒被,能让你得到最温暖的呵护

电视背景墙



电视背景墙选用了大理石,用了金属线条搭配,显得更有韵味,无主灯的造型吊顶,金属边框更显得贵气,在这个重装饰,轻装修的年代,极简主义的春风吹进了千家万户。

客 餐 厅



客厅空间较大,所以设计师把餐厅与客厅设计在了一块,餐桌拼接岛台。厨房挨着餐厅并且带着客厅出场,就这样把家的三个活动线衔接一起,大方自然地展现了主人的生活空间。

过道



现代客厅可以展现出多种风格,时尚、温馨、清新、实用,给人以舒适之感。 扩大空间的视觉感,如果是小空间,使得客厅拥挤和压抑。

主 卧



卧室以暖色调为主,色调统一使整个空间透漏出温柔的气息,既大气又奢华,将优雅与舒适结合在一起,置身于此,似乎能伴随温暖入眠。

电 竞 房



装修一个属于自己和家人的电竞房,是多少年轻人的梦想!宅在家里和对象一起打游戏,旁边摆上很多很多的零食、奶茶、可口可乐!(可口可乐打钱)当然也少不了舒服的电竞椅!键盘要花里胡哨五颜六色的,要大屏、曲屏旁边还能有个大窗户更好!是不是有画面了!






扫下方二维码了更多装修方案!



中国-苏州-昆山
全案设计中心:昆山九方城8号楼1704--1710(5A写字楼)
展示体验中心:昆山九方城8号楼1706(5A写字楼)
工程管理中心:玉山镇柏庐北路156号(店面)
本帖评分记录
shenjun8002 昆币 +1 -来自昆山论坛APP 2022-01-16
1条评分昆币+1
爆料有奖!关注昆山论坛抖音号,抖音搜索“昆山论坛”,或搜索抖音号:ksbbs
 
大慈装饰  昆山推荐率85%以上,口碑品牌  热线:0512-57779948/18551100758 地址:昆山市九方城保利地产大楼1704-1710
快速回复
限76 字节
如果您提交过一次失败了,可以用”恢复数据”来恢复帖子内容
 
上一个 下一个