夜间模式
  • 13559阅读
  • 2回复

342㎡联排别墅|现代轻奢风格! [复制链接]

上一主题 下一主题
美女离线大慈装饰
级别: 家装商家

发帖
20536
昆币
2376 枚
只看楼主 使用道具 电梯直达
楼主  发表于: 2022-01-16 , 来自:江苏省0==
/

本期案例

/


坐标│江苏·昆山
区域│溪香米兰34#**2室
户型│联排别墅
面积│342㎡
风格│现代轻奢
设计师丨王工

户主介绍

三层342㎡联排别墅,空间绰绰有余,室内装修选择了现代轻奢风格,素雅的色彩选择,利用些许的亮色点缀提升整体品质。整个的装修效果符合了业主的期待,卧室根据各自的特点进行个性定制,打造出只属于且适合他们生活的卧室空间。

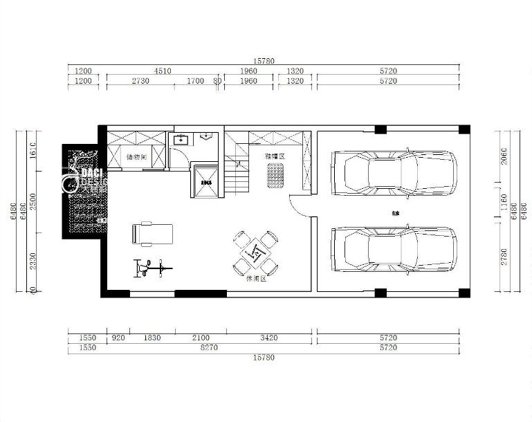
一楼布置
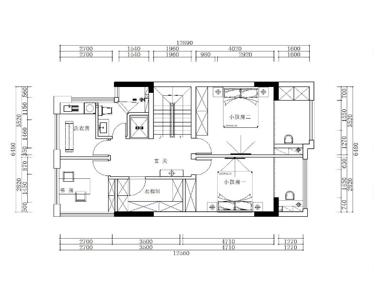
二楼布置图

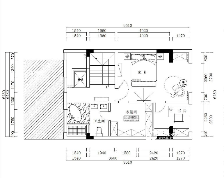
三楼布置图



地下室布置图

▲设计图


/

设计理念

在风格方面,业主喜欢融入精致、时尚元素的现代轻奢风格,设计师运用铜件、大理石、玻璃等不同材质的组合来表达空间面与线的全新维度,采用灰、金为主色调,引出轻奢的生活体验。

客 厅 全 景



342㎡的大房子,足以满足一家六口的日常生活。通透、自由的格局,到处可见的大面积,给人无比舒适、宽敞的感受。

客 厅



自然质地的大理石、木艺、板材等,构造了经典的空间轮廓,圆型吊灯中和了空间块状拼接结构所带来的生硬。

餐  厅

餐厅地面使用高光泽度的石材,提升了整个空间的质感。大理石材质的餐桌与混色餐椅显得别有风味,工业风的吊灯诠释着现代风格的理性魅力。




敞阔的就餐空间,避免了围合感带来的拘束,营造出舒适轻松的家庭氛围。大理石和个性的餐桌椅,搭配出亲切的肌理触感。

主 卧



线型灯饰将形制延续,达到和谐统一。格调灰的高级感、以及自然的生机,抒写了居者平和宁静的心境和高雅的艺术追求。




儿 童 房 1



个性化特点男孩房间装修风格的选择可以参照孩子的喜好,卧室是孩子的个人空间,即使装修时孩子还没有具体的喜好偏向,没办法直接做出选择,家长也可以给孩子一定的范围选项,毕竟房间的设计要陪伴孩子度过童年时期,让他在一定能力内提出自己的意见,可以锻炼小孩子独立的能力。

儿 童 房 2

  

儿童房在蓝白灰调的延续中,增添了金属吊顶调与蓝调作为点缀,于优雅的气息中加入充满活力的因子,更符合成长中的孩童的节奏感,活泼而灵动


  




  
扫下方二维码了更多装修方案!




中国-苏州-昆山
全案设计中心:昆山九方城8号楼1704--1710(5A写字楼)
展示体验中心:昆山九方城8号楼1706(5A写字楼)
工程管理中心:玉山镇柏庐北路156号(店面)


本帖评分记录
shenjun8002 昆币 +1 -来自昆山论坛APP 2022-01-16
1条评分昆币+1
爆料有奖!关注昆山论坛抖音号,抖音搜索“昆山论坛”,或搜索抖音号:ksbbs
 
大慈装饰  昆山推荐率85%以上,口碑品牌  热线:0512-57779948/18551100758 地址:昆山市九方城保利地产大楼1704-1710
帅哥离线evawang
级别: 昆山新人
发帖
428
昆币
889 枚
沙发  发表于: 2022-01-16 , 来自:江苏省0==
一堆效果图,有什么价值
爆料有奖!关注昆山论坛抖音号,抖音搜索“昆山论坛”,或搜索抖音号:ksbbs
 
离线sumnus
级别: 昆山新人
发帖
171
昆币
103 枚
板凳  发表于: 2022-01-16 , 来自:江苏省0==
对有价值的,还是可以有的
爆料有奖!关注昆山论坛抖音号,抖音搜索“昆山论坛”,或搜索抖音号:ksbbs
 
快速回复
限76 字节
如果您提交过一次失败了,可以用”恢复数据”来恢复帖子内容
 
上一个 下一个