|
|
楼主 发表于: 2022-09-03
, 来自:江苏省0==
420㎡别墅 | 现代摩登 | 印象水仙
YXSXDESIGN真正高级的摩登感,是克制的、极致的、特立独行的,它可以简洁,但必须注重细节,它不能千篇一律,更不是盲目从众,是回归生活本质下的自我思考, 是岁月和经历共同赋予的沉淀。正如本案别墅新作所呈现的生活态度,设计师基于业主的空间诉求,以极简的设计手法重新定义摩登美学。将功能与美学转化为精致的细节,以此还原一所奢简有度的气质美墅。 ░ 优雅SPACE

Project Details ■ 项目面积 | 420㎡别墅项目风格 | 现代摩登设计单位 | 印象水仙软装设计 | 印象水仙施工单位 | 印象水仙 关于家: 本案业主是四口之家,业主夫妇喜欢精致的事物,因此在家居空间的塑造中,设计师用一抹蓝色串联家的美好日常,整体空间以极简风为主调,将丰富的内涵装载在简约的空间里,赋予色彩与材质以最适宜温度。在心仪的浪漫情境里,以此揭开他们优雅精致的日常序幕。 关于设计: 设计师合理利用每一寸空间,将功能与美学转化一处处极致的细节;根据业主的生活习惯,制定最贴合业主生活的空间方案。
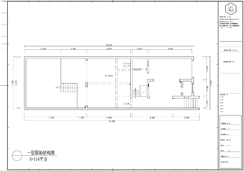
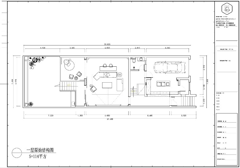
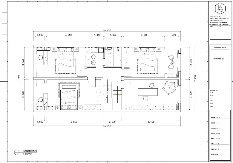
1F原始图VS平面图


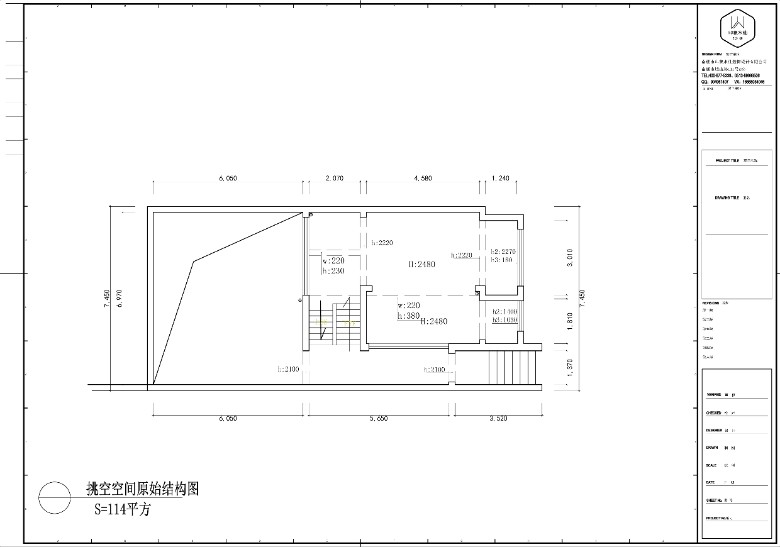
餐厨挑空区域


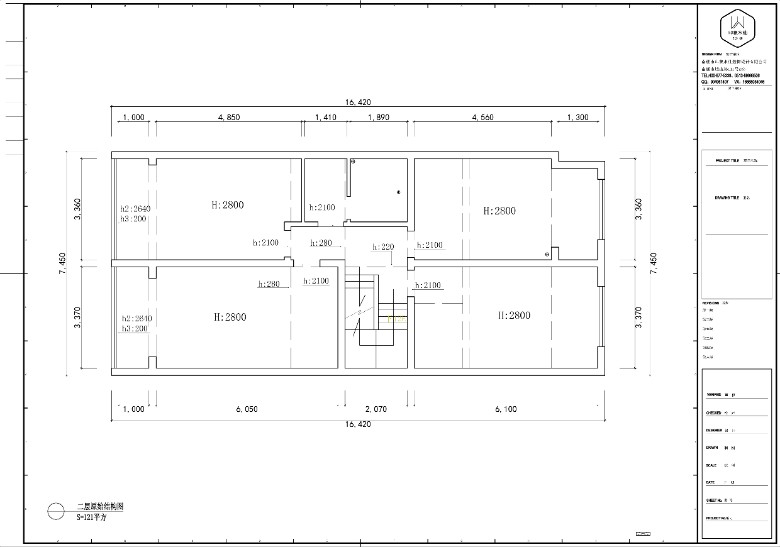
2F原始图VS平面图


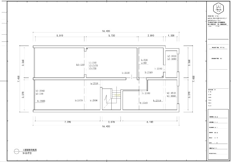
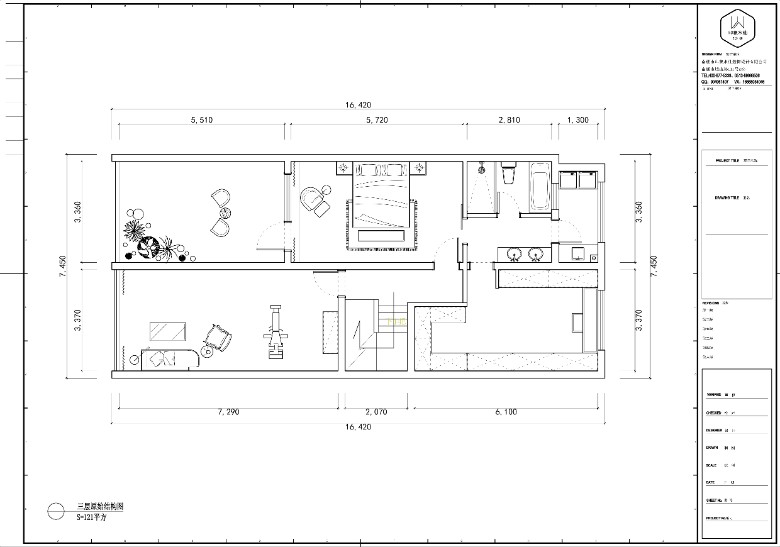
3F原始图VS平面图


生活的美好是不忙的时候,喝喝茶,看看书,吹吹秋风、看看墙上的影子,跟随一部文艺电影的节奏体会的另一种生活的心动。
玄关 / 1FHAKKWAY

进入客厅,放眼空间,似有一种不可言说的未来感与秩序感;高级干练的灰色,往往自带硬冷的质感,但是在设计师美学的软化之下,在进门空间演绎出一番别样的生活仪式感。
客厅 / 1FLIVING ROOM

客厅以环形的格局塑造圆润的视觉感受,包容感、归属感尽显;充满青春气息的克莱因蓝与白色的沙发配色,搭配橙色地毯,再通过射灯补充主灯以外的灯源,视觉上十分精致,有层次感。


电视背景墙做了凹凸造型,中间选用了一款富有纹理的大理石做背景,两侧墙面铺贴的白色墙布,在灯带和射灯照射下,赋予整个背景奢华高级的氛围。

方形石柱上面摆放着蓝色玩偶,细节装饰赋予了这个小宇宙惊艳时光的魅力;不经意间的光束,揭开了青春的帷幕。

两组壁画的排列,个性冲撞的配色,赋予了吧台区新颖、时尚的画面感。

餐厅 / 1FDINING ROOM

三两步阶梯,来到餐厅,大面留白为底色,几分烟火气,又几分仪式感,将生活绘就成一幅浪漫生动的图景。 就餐区紧邻通透的大厨房,功能区得到充分彰显,同时家人用餐也是温馨满满;墙面圆形拼接装饰个性且气质,能激发业主享受美食的完美体验。

水吧台旁边定制了一排到顶酒柜,嵌入式蒸烤箱充分利用功能空间,一侧选择透明黑色玻璃,精致的酒瓶散发出业主精致的生活品质。

顶面水晶灯成为了空间中亮眼的存在。一切在灯光照耀下,仿佛充满了神圣的仪式感,温暖且热烈。

客卫 / 1FGUEST GUARD

洁净简练的次卫生间,入门便给人焕然一新的视觉冲击。
儿童房1 / 2FCHILDREN'S ROOM

背景墙的设计成为男孩房的视觉牵引,衣柜、书柜选择深色调为空间注入一股循序渐进的力量感,克制理性又随性自由,仅通过材质自身天然的肌理质感,还原空间美学诉求。

儿童房2 / 2FCHILDREN'S ROOM

女儿的房间,一改稳重色调,白色、粉色、红色、蓝色搭配焕然一新。以浪漫童梦的设计初衷,将儿童的梦境抽象化于空间之内,营造无拘无束的自在氛围。
客卧 / 2FGUEST BEDROOM

一间简约舒适的客卧,为偶尔来看望留宿的亲友提供一方独立私密的休憩空间;松软的脏粉色大床呼应着两侧精致的壁灯,轻暖的灯光搭配着床的柔软,由内而外地散发着属于这个家的温柔。
次卫 / 2FSECOND TOILET

这一层是孩子们的洗漱区,局部的黄色是对孩子童真的温柔呵护,双台盆盥洗台让孩子们的晨间洗漱更为方便。
影音室 / 3FVIDEO ROOM

红色沙发似弗朗明哥的热情,醒目又炽热,搭配丛林背景又有几分复古摩登的韵味;当音乐响起、屏幕播放着业主喜欢的电影,他们在光影梦幻的场景里,可以让身心来一场彻底的解压。
主卧 / 3FMASTER BEDROOM

主卧空间,这个隔绝外部一切纷繁喧扰的私人领地,设计师在此极力营造一份业主追求的温柔与浪漫。

宽敞通透的格局,丰沛的光线充盈其间,米白色拉扣丝绒大床优雅中透露着慵懒,每当夜幕时分,羽毛落地灯照亮精致的床头一景,浪漫因子在这夜色里欣然起舞。

衣帽间 / 3FCLOAKROOM

衣帽区定制,物归其位的秩序感与简练明朗的现代时尚感,局部黑色玻璃配以灯光渲染,光影灼烁,优雅迷离的艺术气息糅杂现代的利落感,让衣帽间不再是简单的收纳储物空间,更是一处蕴藏品味的私人领地。

书房

主卫 / 3FMAIN GUARD

干区,粉色与灰色的相撞,让完整的家里出现了一个亮点,这可能就是业主的小调皮吧!让整个家充满着一个个小惊喜!

楼梯 / 3F STAIRS

这里的白色吊灯,似棉花糖垂落,空间散发出甜甜的味道。
|