夜间模式
  • 1247948阅读
  • 690回复

记录我第二套房和我发生的事情 [复制链接]

上一主题 下一主题
帅哥离线活塞
级别: 昆山名人
发帖
33344
昆币
49239 枚
40楼 发表于: 2017-12-29 , 来自:江苏省0==
威能机。。。

德系威能博世,博世欧洲之星之后毛病稍少些,顶多非夏季模式循环系统E9之类 检修电磁阀 锅炉重启即可
但是威能机,燃气分配阀故障率出了名的,换一个1800~还没算人工上门费。。。。实在搞不懂这货用户口碑这么垃圾,还能混。。天朝市场实在太大了。。。想起了神车的故障率


地暖个人使用血泪史。。。
爆料有奖!关注昆山论坛抖音号,抖音搜索“昆山论坛”,或搜索抖音号:ksbbs
 
级别: 昆山新人
发帖
484
昆币
527 枚
41楼 发表于: 2017-12-29 , 来自:江苏省0==
回 昆山百特曼 的帖子
昆山百特曼:电线排铺整齐,卫生干净,不错 (2017-12-29 09:11)

帮我监督哦!
本帖评分记录
昆山百特曼 昆币 +1 - 2017-12-29
1条评分昆币+1
爆料有奖!关注昆山论坛抖音号,抖音搜索“昆山论坛”,或搜索抖音号:ksbbs
 
级别: 昆山新人
发帖
484
昆币
527 枚
42楼 发表于: 2017-12-29 , 来自:江苏省0==
回 活塞 的帖子
活塞:威能机。。。
德系威能博世,博世欧洲之星之后毛病稍少些,顶多非夏季模式循环系统E9之类 检修电磁阀 锅炉重启即可
但是威能机,燃气分配阀故障率出了名的,换一个1800~还没算人工上门费。。。。实在搞不懂这货用户口碑这么垃圾,还能混。。天朝市场实在太大了。。。想起了神车的 .. (2017-12-29 09:47)

我们也是没装过,现在很流行,第二套房子整个装预算超出,局部装洗手间装出来比客厅高。外观很难看就要放弃
爆料有奖!关注昆山论坛抖音号,抖音搜索“昆山论坛”,或搜索抖音号:ksbbs
 
级别: 昆山新人
发帖
484
昆币
527 枚
43楼 发表于: 2017-12-29 , 来自:江苏省0==
由于要赚奶粉钱,装修款。 所以我们很忙工地不能天天看着,昨天电路铺好了,电工发图给我们确认,我一看好多都是低位插座,为了以后生活使用美观中高位插座还是需要的,跟电工讲了下,心里想工人会不会有各种借口不给改。 好像是我多想了,人家态度很好,说客户要求了我们都会想办法做到。。。。。。辛苦了
爆料有奖!关注昆山论坛抖音号,抖音搜索“昆山论坛”,或搜索抖音号:ksbbs
 
美女离线昆山伟宏门窗
级别: 禁止发言

发帖
18978
昆币
32400 枚
44楼 发表于: 2017-12-29 , 来自:江苏省0==
用户被禁言,该主题自动屏蔽!
爆料有奖!关注昆山论坛抖音号,抖音搜索“昆山论坛”,或搜索抖音号:ksbbs
 
美女离线小妞的窝窝
级别: 昆山新人
发帖
493
昆币
560 枚
45楼 发表于: 2017-12-29 , 来自:江苏省0==
屋子打扫很干净,不错
爆料有奖!关注昆山论坛抖音号,抖音搜索“昆山论坛”,或搜索抖音号:ksbbs
 
美女离线叁牙妹
级别: 昆山名人
发帖
66131
昆币
51161 枚
46楼 发表于: 2017-12-29 , 来自:未知0==
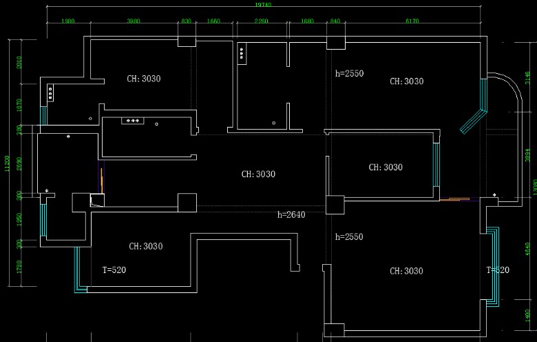
你家客厅和阳台好大,上房型图看看
爆料有奖!关注昆山论坛抖音号,抖音搜索“昆山论坛”,或搜索抖音号:ksbbs
 
级别: 昆山新人
发帖
484
昆币
527 枚
47楼 发表于: 2017-12-30 , 来自:江苏省0==
回 叁牙妹 的帖子
叁牙妹:
你家客厅和阳台好大,上房型图看看

这是没改过的原始户型图


楼中楼
  • 2025-03-30 08:58 scq: 怪不得看着白天采光差,南北进深太长了
爆料有奖!关注昆山论坛抖音号,抖音搜索“昆山论坛”,或搜索抖音号:ksbbs
 
离线朗通装饰
级别: 家装商家

发帖
16952
昆币
14166 枚
48楼 发表于: 2017-12-30 , 来自:江苏省0==
楼主继续更新哦
爆料有奖!关注昆山论坛抖音号,抖音搜索“昆山论坛”,或搜索抖音号:ksbbs
 
离线朗通装饰
级别: 家装商家

发帖
16952
昆币
14166 枚
49楼 发表于: 2017-12-30 , 来自:江苏省0==
爆料有奖!关注昆山论坛抖音号,抖音搜索“昆山论坛”,或搜索抖音号:ksbbs
 
快速回复
限76 字节
如果您提交过一次失败了,可以用”恢复数据”来恢复帖子内容
 
上一个 下一个