夜间模式
  • 5611483阅读
  • 2235回复

网红小姐姐装修实录“禅意新中式”  装修小白变身奥特曼 [复制链接]

上一主题 下一主题
美女离线网红小姐姐

发帖
2926
昆币
6896 枚
只看楼主 使用道具 电梯直达
楼主  发表于: 2018-06-06 , 来自:江苏省0==
家装日记
小区: 中大未来城
套内面积: 170 (平米)
预算: 45-50 万
开工日期: 2018-07-12
装修风格: 中式
装修方式: 半包
装修公司: 79设计





效果图   强势入
[ 此帖被网红小姐姐在2019-08-10 14:19重新编辑 ]
本帖评分记录
任掌柜carry 昆币 +1 -来自昆山论坛APP 2022-07-19
远去的风景 昆币 +1 -来自昆山论坛APP 2020-05-25
雷池装饰 昆币 +1 -来自昆山论坛APP 2020-04-24
曾阿牛 昆币 +1 -来自昆山论坛APP 2020-04-21
junjun1026 昆币 +1 -来自昆山论坛APP 2020-02-18
tude123 昆币 +1 -来自昆山论坛APP 2020-02-16
熊抱曹操 昆币 +1 -来自昆山论坛APP 2019-10-21
zhuoer2513 昆币 +1 -来自昆山论坛APP 2019-07-22
爱丁伯格家具 昆币 +1 -来自昆山论坛APP 2019-07-17
李娜15290464 昆币 +1 -来自昆山论坛APP 2019-05-30
123456...14下一页
到第
134条评分昆币+165
爆料有奖!关注昆山论坛抖音号,抖音搜索“昆山论坛”,或搜索抖音号:ksbbs
 
美女离线昆山伟宏门窗
级别: 禁止发言

发帖
18978
昆币
32400 枚
沙发  发表于: 2018-06-06 , 来自:江苏省0==
用户被禁言,该主题自动屏蔽!
本帖评分记录
兰心888 昆币 +1 -来自昆山论坛APP 2020-05-21
xiaoxiongbi 昆币 +1 -来自昆山论坛APP 2019-03-29
失业小绵羊 昆币 +1 -来自昆山论坛APP 2018-10-08
3条评分昆币+3
爆料有奖!关注昆山论坛抖音号,抖音搜索“昆山论坛”,或搜索抖音号:ksbbs
 
美女离线网红小姐姐

发帖
2926
昆币
6896 枚
板凳  发表于: 2018-06-06 , 来自:江苏省0==
不知不觉写了这么多,有的时候爬楼都很累,整理一下方面自己查找,你们随意哈


装修公司对比篇须知         30楼:http://www.ksbbs.com/read-htm-tid-5865039-toread-1-page-4.html


装修公司的对接须知         72楼:http://www.ksbbs.com/read-htm-tid-5865039-fpage-2-page-8.html


针对装修小白说的话        146楼:http://www.ksbbs.com/read-htm-tid-5865039-fpage-2-page-15.html


各区域规划注意事项    154-168楼:http://www.ksbbs.com/read-htm-tid-5865039-fpage-2-page-17.html


开工篇                    301楼:http://www.ksbbs.com/read-htm-tid-5865039-toread-1-page-31.html


拆墙                      324楼:http://www.ksbbs.com/read-htm-tid-5865039-toread-1-page-33.html
        
地固                  353-360楼:http://www.ksbbs.com/read-htm-tid-5865039-toread-1-page-36.html
      
阳台跑市场            361-367楼:http://www.ksbbs.com/read-htm-tid-5865039-toread-1-page-37.html


砌墙                  378-380楼:http://www.ksbbs.com/read-htm-tid-5865039-toread-1-page-38.html
    
封阳台                383-386楼:http://www.ksbbs.com/read-htm-tid-5865039-toread-1-page-39.html
封阳台的遗憾              896楼:http://www.ksbbs.com/read-htm-tid-5865039-page-90.html
  
门洞标准                  395楼:http://www.ksbbs.com/read-htm-tid-5865039-toread-1-page-40.html


地漏                  427-434楼: http://www.ksbbs.com/read-htm-tid-5865039-toread-1-page-43.html
                          475楼: http://www.ksbbs.com/read-htm-tid-5865039-toread-1-page-48.html
地漏完工展示             1050楼:http://www.ksbbs.com/read-htm-tid-5865039-page-106.html
  
水电                  448-453楼:http://www.ksbbs.com/read-htm-tid-5865039-toread-1-page-45.html

插座预留              454-456楼:http://www.ksbbs.com/read-htm-tid-5865039-toread-1-page-46.html

大金空调              469-472楼:http://www.ksbbs.com/read-htm-tid-5865039-toread-1-page-47.html

水验收                    538楼:http://www.ksbbs.com/read-htm-tid-5865039-toread-1-page-54.html
    
电验收                    548楼:http://www.ksbbs.com/read-htm-tid-5865039-toread-1-page-55.html

下水管                553-560楼:http://www.ksbbs.com/read-htm-tid-5865039-toread-1-page-56.html

防水篇:阳台          598-600楼:http://www.ksbbs.com/read-htm-tid-5865039-toread-1-page-60.html
厨房、卫生间防水图        939楼:http://www.ksbbs.com/read-htm-tid-5865039-page-94.html

大金进场                  593楼:http://www.ksbbs.com/read-htm-tid-5865039-toread-1-page-60.html
大金安装注意事项      619-620楼:http://www.ksbbs.com/read-htm-tid-5865039-toread-1-page-62.html
大金安装验收          628-630楼:http://www.ksbbs.com/read-htm-tid-5865039-toread-1-page-63.html
大金地暖CAD图纸       722-723楼:http://www.ksbbs.com/read-htm-tid-5865039-page-73.html

甲醛的治理                621楼:http://www.ksbbs.com/read-htm-tid-5865039-toread-1-page-63.html


下沉式卫生间施工      641-649楼:http://www.ksbbs.com/read-htm-tid-5865039-page-65.html
下沉式井字格改良         1224楼:http://www.ksbbs.com/read-htm-tid-5865039-page-123.html


林内地暖铺设          664-671楼:http://www.ksbbs.com/read-htm-tid-5865039-page-67.html

地暖豆石头找平        686-688楼:http://www.ksbbs.com/read-htm-tid-5865039-page-69.html


瓷砖跑市场            714-719楼:http://www.ksbbs.com/read-htm-tid-5865039-page-72.html
瓷砖市场总结              725楼:http://www.ksbbs.com/read-htm-tid-5865039-page-73.html

所有团购的主材            727楼:http://www.ksbbs.com/read-htm-tid-5865039-toread-1-page-73.html

低价瓷砖选购地            725楼:http://www.ksbbs.com/read-htm-tid-5865039-toread-1-page-73.html
瓷砖选购第一、二季    736-739楼:http://www.ksbbs.com/read-htm-tid-5865039-toread-1-page-74.html
瓷砖铺贴出CAD图纸         759楼:http://www.ksbbs.com/read-htm-tid-5865039-toread-1-page-76.html
瓷砖选购第三季        765-773楼:http://www.ksbbs.com/read-htm-tid-5865039-toread-1-page-77.html
开孔、磨边机、壁龛        775楼:http://www.ksbbs.com/read-htm-tid-5865039-toread-1-page-78.html
瓷砖选购第四季        779-780楼:http://www.ksbbs.com/read-htm-tid-5865039-toread-1-page-78.html  
瓷砖选购第五季        782-790楼:http://www.ksbbs.com/read-htm-tid-5865039-toread-1-page-80.html
瓷砖铺贴完成           882-893楼:http://www.ksbbs.com/read-htm-tid-5865039-page-89.html
瓷砖铺贴完工分享     1043-1049楼:http://www.ksbbs.com/read-htm-tid-5865039-page-105.html
协进团队                1787楼:http://www.ksbbs.com/read-htm-tid-5865039-toread-1-page-179.html

大理石篇                   974楼:http://www.ksbbs.com/read-htm-tid-5865039-page-98.html
大理石淋浴房         1171-1172楼:http://www.ksbbs.com/read-htm-tid-5865039-page-118.html
花岗岩淋浴房         1229-1230楼:http://www.ksbbs.com/read-htm-tid-5865039-page-123.html
门槛石的铺贴               997楼:http://www.ksbbs.com/read-htm-tid-5865039-page-100.html
飘窗大理石              1855楼:http://www.ksbbs.com/read-htm-tid-5865039-toread-1-page-186.html


橱柜篇                 978-988楼:http://www.ksbbs.com/read-htm-tid-5865039-page-98.html
橱柜价格参考              1001楼:http://www.ksbbs.com/read-htm-tid-5865039-page-102.html
                          1015楼:http://www.ksbbs.com/read-htm-tid-5865039-page-102.html
橱柜CAD图纸               1233楼:http://www.ksbbs.com/read-htm-tid-5865039-page-124.html
橱柜安装           1528-1580楼:http://www.ksbbs.com/read-htm-tid-5865039-toread-1-page-153.html
吊柜细节                1570楼:http://www.ksbbs.com/read-htm-tid-5865039-toread-1-page-158.html
橱柜台面安装       1639-1649楼:http://www.ksbbs.com/read-htm-tid-5865039-toread-1-page-164.html
台中下盆           1652-1655楼:http://www.ksbbs.com/read-htm-tid-5865039-toread-1-page-166.html
橱柜收尾           1802-1803楼:http://www.ksbbs.com/read-htm-tid-5865039-toread-1-page-181.html

集层吊顶篇             989-990楼:http://www.ksbbs.com/read-htm-tid-5865039-page-100.html
性价比高的吊顶            1012楼:http://www.ksbbs.com/read-htm-tid-5865039-page-102.html
吊顶注意事项              1131楼:http://www.ksbbs.com/read-htm-tid-5865039-page-114.html


灶具篇                     991楼:http://www.ksbbs.com/read-htm-tid-5865039-page-100.html
灶具安装                1689楼:http://www.ksbbs.com/read-htm-tid-5865039-toread-1-page-169.html
燃气表安装              1618楼:http://www.ksbbs.com/read-htm-tid-5865039-toread-1-page-162.html
止烟阀安装              1619楼:http://www.ksbbs.com/read-htm-tid-5865039-toread-1-page-162.html
灶具安装                1689楼:http://www.ksbbs.com/read-htm-tid-5865039-toread-1-page-169.html

腻子篇                     993楼:http://www.ksbbs.com/read-htm-tid-5865039-page-100.html
腻子篇               1344-1350楼:http://www.ksbbs.com/read-htm-tid-5865039-page-135.html


油漆篇                     994楼:http://www.ksbbs.com/read-htm-tid-5865039-page-100.html
油漆价格           1437-1440楼:http://www.ksbbs.com/read-htm-tid-5865039-toread-1-page-144.html

木工衣柜总结           812-816楼:http://www.ksbbs.com/read-htm-tid-5865039-toread-1-page-82.html
木门篇                997-1001楼:http://www.ksbbs.com/read-htm-tid-5865039-page-100.html


电线线路温              1042楼:http://www.ksbbs.com/read-htm-tid-5865039-page-105.html

装修单据整理         1084-1085楼:http://www.ksbbs.com/read-htm-tid-5865039-page-109.html
消费表和预算表            1132楼:http://www.ksbbs.com/read-htm-tid-5865039-page-114.htm


建材网购宝典         1179-1181楼:http://www.ksbbs.com/read-htm-tid-5865039-page-118.html


洗衣柜跑市场              1218楼:http://www.ksbbs.com/read-htm-tid-5865039-page-122.html
晾衣架洗衣柜         1904-1906楼:http://www.ksbbs.com/read-htm-tid-5865039-toread-1-page-191.html


家具跑市场           1275-1290楼:http://www.ksbbs.com/read-htm-tid-5865039-page-128.html
看家具               1369-1380楼:http://www.ksbbs.com/read-htm-tid-5865039-page-137.html
家具厂家直购            1405楼:http://www.ksbbs.com/read-htm-tid-5865039-toread-1-page-141.html

家具沙发                1836楼:http://www.ksbbs.com/read-htm-tid-5865039-toread-1-page-184.html
淘宝家具                1870楼:http://www.ksbbs.com/read-htm-tid-5865039-toread-1-page-188.html


衣柜木门               995-996楼:http://www.ksbbs.com/read-htm-tid-5865039-page-100.html
衣柜布局方案              1314楼:http://www.ksbbs.com/read-htm-tid-5865039-page-132.html
衣柜方案确定              1381楼:http://www.ksbbs.com/read-htm-tid-5865039-page-139.html
衣柜细节补充              1387楼:http://www.ksbbs.com/read-htm-tid-5865039-page-139.html


双十一网购清单       1325-1342楼:http://www.ksbbs.com/read-htm-tid-5865039-page-133.html
双十一网购清单       1341-1349楼:http://www.ksbbs.com/read-htm-tid-5865039-page-145.html
双十一网购工具          1431楼:http://www.ksbbs.com/read-htm-tid-5865039-toread-1-page-144.html
小钢炮吸尘器            1785楼:http://www.ksbbs.com/read-htm-tid-5865039-toread-1-page-179.html

美缝篇             1382-1386楼:http://www.ksbbs.com/read-htm-tid-5865039-page-139.html
美缝收边           1935-1942楼:http://www.ksbbs.com/read-htm-tid-5865039-toread-1-page-194.html

插座高度调整            1391楼:http://www.ksbbs.com/read.php?tid=5865039&toread=1&page=140

79设计企业文化     1471-1472楼:http://www.ksbbs.com/read-htm-tid-5865039-toread-1-page-148.html
79设计软装搭配     1473-1474楼:http://www.ksbbs.com/read-htm-tid-5865039-toread-1-page-148.html

墙纸选购                1479楼:http://www.ksbbs.com/read-htm-tid-5865039-toread-1-page-148.html
墙纸基膜                1509楼:http://www.ksbbs.com/read-htm-tid-5865039-toread-1-page-151.html
墙纸篇             1510-1511楼:http://www.ksbbs.com/read-htm-tid-5865039-toread-1-page-152.html

窗帘篇                  1835楼:http://www.ksbbs.com/read-htm-tid-5865039-toread-1-page-184.html
                        1972楼:http://www.ksbbs.com/read-htm-tid-5865039-toread-1-page-198.html

集层吊顶完工            1516楼:http://www.ksbbs.com/read-htm-tid-5865039-toread-1-page-152.html
奥普风暖浴霸       1518-1535楼:http://www.ksbbs.com/read-htm-tid-5865039-toread-1-page-152.html


林内锅炉安装            1605楼:http://www.ksbbs.com/read-htm-tid-5865039-toread-1-page-161.html
排烟管加固         1631-1632楼:http://www.ksbbs.com/read-htm-tid-5865039-toread-1-page-164.html

TATA木门安装       1656-1671楼:http://www.ksbbs.com/read-htm-tid-5865039-toread-1-page-166.html
TATA企业文化            1688楼:http://www.ksbbs.com/read-htm-tid-5865039-toread-1-page-169.html
TATA踢脚线              1762楼:http://www.ksbbs.com/read-htm-tid-5865039-toread-1-page-177.html


地板安装           1690-1692楼:http://www.ksbbs.com/read-htm-tid-5865039-toread-1-page-170.html

芬琳油漆           1699-1706楼:http://www.ksbbs.com/read-htm-tid-5865039-toread-1-page-170.html
芬琳黑板墙         1829-1830楼:http://www.ksbbs.com/read-htm-tid-5865039-toread-1-page-183.html


开关安装                1765楼:http://www.ksbbs.com/read-htm-tid-5865039-toread-1-page-177.html
施耐德开关              1628楼:http://www.ksbbs.com/read-htm-tid-5865039-toread-1-page-163.html
射灯安装                1779楼:http://www.ksbbs.com/read-htm-tid-5865039-toread-1-page-178.html
灯泡安装           1887-1890楼:http://www.ksbbs.com/read-htm-tid-5865039-toread-1-page-189.html

科勒马桶篇         1912-1917楼:http://www.ksbbs.com/read-htm-tid-5865039-toread-1-page-192.html


移门篇             1931-1933楼:http://www.ksbbs.com/read-htm-tid-5865039-toread-1-page-194.html


淋浴房篇           1960-1965楼:http://www.ksbbs.com/read-htm-tid-5865039-toread-1-page-197.html


床垫篇             1974-1979楼:http://www.ksbbs.com/read-htm-tid-5865039-toread-1-page-198.html
[ 此帖被网红小姐姐在2019-06-24 12:35重新编辑 ]
本帖评分记录
函刚 昆币 +1 -来自昆山论坛APP 2019-07-30
jesse_wks 昆币 +1 -来自昆山论坛APP 2018-10-10
y610356201 昆币 +1 -来自昆山论坛APP 2018-10-02
serenity 昆币 +1 这个效果图上的及时,对我有参考意义 2018-06-07
4条评分昆币+4
爆料有奖!关注昆山论坛抖音号,抖音搜索“昆山论坛”,或搜索抖音号:ksbbs
 
美女离线网红小姐姐

发帖
2926
昆币
6896 枚
地板  发表于: 2018-06-06 , 来自:江苏省0==
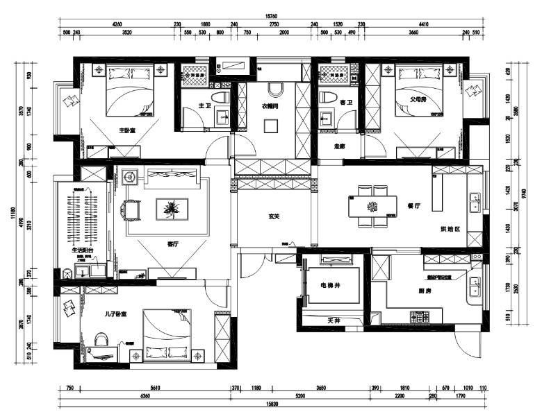
平面图

本帖评分记录
jesse_wks 昆币 +1 -来自昆山论坛APP 2018-10-10
1条评分昆币+1
爆料有奖!关注昆山论坛抖音号,抖音搜索“昆山论坛”,或搜索抖音号:ksbbs
 
美女离线昆山专筑装饰
发帖
3778
昆币
4865 枚
4楼 发表于: 2018-06-06 , 来自:江苏省0==
用户被禁言,该主题自动屏蔽!
本帖评分记录
jesse_wks 昆币 +1 -来自昆山论坛APP 2018-10-10
1条评分昆币+1
爆料有奖!关注昆山论坛抖音号,抖音搜索“昆山论坛”,或搜索抖音号:ksbbs
 
离线朗通装饰
级别: 家装商家

发帖
17075
昆币
14378 枚
5楼 发表于: 2018-06-06 , 来自:江苏省0==
恭喜楼主开工大吉
爆料有奖!关注昆山论坛抖音号,抖音搜索“昆山论坛”,或搜索抖音号:ksbbs
 
美女离线网红小姐姐

发帖
2926
昆币
6896 枚
6楼 发表于: 2018-06-06 , 来自:江苏省0==
选择装修公司篇:
其实很多装修小白逛论坛,爬帖子都是为了看经验,找灵感,寻找适合自己的装修公司。
正确的挑选装修公司一般都会经历三部曲:
1、有的时候都是抱着试试的态度去看看,论证一下自己的判断,其实没错,看多了你就有数了。
2、不过别忘了实地勘察施工现场,这才是最主要的,有没有细节不到位的,但也别全信,因为他们带你去看的,是已经为你精心挑选。总是让你看到最美的一面,最丑的一面需要你去发现和拒绝
3、口碑相传,问问周边邻居朋友,特别是有内幕的----微信群是个不错的选择,从侧面了解很多口碑极佳的公司
言归正传:邻居们选择装修公司五花八门,有的全包,但很多半包居多,虽然很多都是做生意大款土豪领居,但大多数可能也是工作好点的工薪阶级。现在无论什么年纪的人,都是以实用,都用性价比来横梁。所以建议以半包为主,当然土豪除外可以全包,差距也就可能10万以上。


不要问我为什么这么专业,因为我也是从装修小白开始的,2017年9月份开始整理材料至11月,12月份开始选择装修公司,2018年1月份开始跑市场,团购了无数的团购。最近看着很多装修小白进入市场,实在是看不下去掉坑里,特来告知你们一个大神转变的过程,和你们一起分享这段经历,从痛苦到愉快,认识了很多团友,彼此与邻居的感情更深,共同见证奇迹。
[ 此帖被网红小姐姐在2019-04-09 08:37重新编辑 ]
本帖评分记录
牧草先生 昆币 +1 -来自昆山论坛APP 2019-03-19
jesse_wks 昆币 +1 -来自昆山论坛APP 2018-10-10
2条评分昆币+2
爆料有奖!关注昆山论坛抖音号,抖音搜索“昆山论坛”,或搜索抖音号:ksbbs
 
美女离线夏日清凉
发帖
4384
昆币
7601 枚
7楼 发表于: 2018-06-06 , 来自:浙江0==
一环坐稳
本帖评分记录
网红小姐姐 昆币 +1 - 2018-06-06
1条评分昆币+1
爆料有奖!关注昆山论坛抖音号,抖音搜索“昆山论坛”,或搜索抖音号:ksbbs
 
帅哥离线新新媒体人
发帖
6301
昆币
6869 枚
8楼 发表于: 2018-06-06 , 来自:江苏省0==
捧场啦
本帖评分记录
网红小姐姐 昆币 +1 - 2018-06-06
1条评分昆币+1
爆料有奖!关注昆山论坛抖音号,抖音搜索“昆山论坛”,或搜索抖音号:ksbbs
 
美女离线网红小姐姐

发帖
2926
昆币
6896 枚
9楼 发表于: 2018-06-06 , 来自:未知0==
心情24度:捧场啦[表情] (2018-06-06 12:18) 

感谢老铁
爆料有奖!关注昆山论坛抖音号,抖音搜索“昆山论坛”,或搜索抖音号:ksbbs
 
快速回复
限76 字节
如果您提交过一次失败了,可以用”恢复数据”来恢复帖子内容
 
上一个 下一个