夜间模式
  • 31715阅读
  • 24回复

浅谈当前主流家装前期应了解的小知识 [复制链接]

上一主题 下一主题
帅哥离线80后设计
级别: 昆山过客
发帖
24
昆币
24 枚
只看楼主 使用道具 电梯直达
楼主  发表于: 2018-08-13 , 来自:江苏省0==
拆建工程
墙体拆除的前提要 确定 确定 确定 墙体为非承重墙。新建墙体要植入钢筋,以防后期墙面开裂。
隐蔽工程
隐蔽工程是家庭装修的最重要的施工部分。其包含了生活用水、饮用水、强弱电等施工项目。在业主开始着手装修之前应提前了解其中包含的电器类设备。如:家用中央空调、地暖、生活用水系统、智能化家居。这些要提前考虑,这些功能设备都对以后的设计方案、造型、材质有影响。
吊顶工程
目前吊顶材料是以轻钢龙骨、石膏板为主流的。以往的木龙骨基本被摒弃。吊顶转角处应用整块石膏板封板。造型则根据整体设计风格呈现即可。
贴砖工程
装修过程中或多或少的会有损耗,购买墙地砖时,首先应结合自身的尺寸购买,相应的减少不必要的损耗。
墙面工程
该项目在施工的时候是基本 看 不到瑕疵的,往往是在一年左右才体现出来。最鲜明的就是墙体开裂,这里有施工的原因,也有建筑本身的原因。建议施工时墙面全部挂网。
本帖评分记录
最爱萌可乐 昆币 +1 -来自昆山论坛APP 2018-08-13
水岸88888 昆币 +1 -来自昆山论坛APP 2018-08-13
2条评分昆币+2
爆料有奖!关注昆山论坛抖音号,抖音搜索“昆山论坛”,或搜索抖音号:ksbbs
 
级别: 初来乍到
发帖
3
昆币
8 枚
沙发  发表于: 2018-08-13 , 来自:江苏省0==

楼主从业多久了?
爆料有奖!关注昆山论坛抖音号,抖音搜索“昆山论坛”,或搜索抖音号:ksbbs
 
帅哥离线80后设计
级别: 昆山过客
发帖
24
昆币
24 枚
板凳  发表于: 2018-08-13 , 来自:江苏省0==
最爱萌可乐:[表情]
楼主从业多久了? (2018-08-13 11:22) 

2009年至今
爆料有奖!关注昆山论坛抖音号,抖音搜索“昆山论坛”,或搜索抖音号:ksbbs
 
级别: 初来乍到
发帖
3
昆币
8 枚
地板  发表于: 2018-08-13 , 来自:江苏省0==
80后设计:2009年至今[表情] (2018-08-13 11:52) 

我们公司招设计师,有意向来看看吗?
爆料有奖!关注昆山论坛抖音号,抖音搜索“昆山论坛”,或搜索抖音号:ksbbs
 
级别: 初来乍到
发帖
3
昆币
8 枚
4楼 发表于: 2018-08-13 , 来自:江苏省0==
80后设计:不好意思,我是做家装纯设计的,不准备去公司上班。
商品房 40元/平方
别墅     60元/平方
联系方式:Tea19880804 (2018-08-13 12:03) 

价格也不低啊
爆料有奖!关注昆山论坛抖音号,抖音搜索“昆山论坛”,或搜索抖音号:ksbbs
 
帅哥离线80后设计
级别: 昆山过客
发帖
24
昆币
24 枚
5楼 发表于: 2018-08-13 , 来自:江苏省0==
最爱萌可乐:价格也不低啊[表情] (2018-08-13 12:08) 

我做的    全 案 设 计  全 案 设 计 全 案 设 计,硬装设计,主材把控,后期软装都在内。反正就这个价。佛系接单。
爆料有奖!关注昆山论坛抖音号,抖音搜索“昆山论坛”,或搜索抖音号:ksbbs
 
帅哥离线80后设计
级别: 昆山过客
发帖
24
昆币
24 枚
6楼 发表于: 2018-08-13 , 来自:江苏省0==
      
爆料有奖!关注昆山论坛抖音号,抖音搜索“昆山论坛”,或搜索抖音号:ksbbs
 
帅哥离线80后设计
级别: 昆山过客
发帖
24
昆币
24 枚
7楼 发表于: 2018-08-14 , 来自:江苏省0==
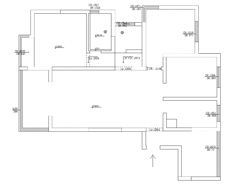
平面图中包含了人体工程学,人体动线图。
爆料有奖!关注昆山论坛抖音号,抖音搜索“昆山论坛”,或搜索抖音号:ksbbs
 
帅哥离线80后设计
级别: 昆山过客
发帖
24
昆币
24 枚
8楼 发表于: 2018-08-15 , 来自:江苏省0==
论 坛 新 人   不知道不能发广告  感谢解封
爆料有奖!关注昆山论坛抖音号,抖音搜索“昆山论坛”,或搜索抖音号:ksbbs
 
帅哥离线80后设计
级别: 昆山过客
发帖
24
昆币
24 枚
9楼 发表于: 2018-08-16 , 来自:江苏省0==
基本的样子出来了。还有后期的软装没全部弄好。
爆料有奖!关注昆山论坛抖音号,抖音搜索“昆山论坛”,或搜索抖音号:ksbbs
 
快速回复
限76 字节
如果您提交过一次失败了,可以用”恢复数据”来恢复帖子内容
 
上一个 下一个