project brief (项目简介)
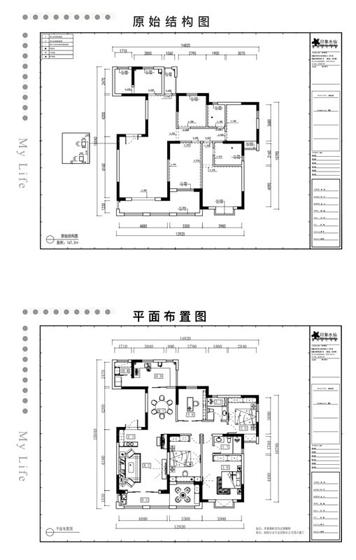
户型:四室两厅两卫一厨
面积:180㎡
风格:轻美式
Preface(前言)
这是一对从事教师行业的老师,一个令人尊敬的职业,他们对居家的品味,有着自己的标准,因此,设计师在选材和搭配上都倾入了心思,打造出了舒适的轻美式居家氛围。
design philosophy(设计理念)
在设计师的眼中,不论是优雅精致的温馨空间,还是深色调的酷炫空间,每一个作品都有着专属于自己的独有理念,在这个相亲相爱的家庭中,无比质感的深色调成为了设计的主线,一切精妙的装饰在此基础上都显得张力十足,更加出彩。
全景三维图展示
实景展示
客 厅
优雅的色调搭配精致的家具,塑造出最为温馨且包容的空间氛围,利用美式的经典元素:丰富的渲染与装饰,带来温暖且优雅的美感,明黄色单人椅的点缀,以柔和的姿态调和着室内的一切。 为了让女主人使用钢琴更为方便,又不占其他的独立空间,设计师在客厅的电视柜旁挪出了位置摆放钢琴,最后呈现的效果,既不影响美观,也不影响客厅布局,一切恰似刚好那般。 深棕色的皮质沙发与茶几带来小美风的气息,脱俗的美感与精致的装饰品,共同营造出良好的空间美感。 餐 厅
开放式的布局让阳光洒进室内的每一角落,餐厅以蓝色、白色为主色调,与客厅相呼应,圆形的实木餐桌搭配斑马纹路的餐椅,色泽的深浅对比彰显着空间层次感;桌面上摆放着精美的花饰,在优雅的氛围中也不失活力与生机。厨 房
根据空间的布局,巧妙定制出厨房的橱柜,丰富的储物空间将杂物收纳妥当,在浅灰色的墙面下,显得更加洁净清爽,简洁的厨具、厨电等,让料理时光也变得精致起来。主 卧
卧室明亮而通透,以素雅的墙纸塑造出静谧而宁和的睡眠环境,优雅的床榻遵循着业主的喜好定制的,局部的空间装饰让这里显得格外精致,丰富的床品与一些有格调的装饰,让这里的舒适度与美学理念相呼应。次 卧
在素色空间里,从整面的衣柜到床上的织品,都显得柔和又静谧。色彩与墙纸的拿捏恰到好处,使这个居所的空间布置完美平衡,甚至有一种清新的色彩,让生活充满趣味。 儿 童 房
相较于主卧和次卧,儿童房更增添了几分生动的颜色,蓝色可谓是取自天空和海洋的灵动。跳跃的红色,给空间增添了几分趣味活泼。书 房
整个书房以浅蓝色乳胶漆粉饰整个墙面,在优雅、低调、静谧的基底下,一切的点缀都变得更加出彩,营造静谧的阅读空间。
主 卫
客 卫

2018-9-17 15:12 上传[url][urlend4]