小叶子有话说:
今天小叶子给大家介绍的并非效果图,而是实景图。该实景图来自公元壹号97平户型,风格为现代轻奢风。整个房屋从硬装到软装都是由叶氏环保家装操刀设计。话不多说,美图看起来!
客户需求
喜欢现代轻奢风的业主都是比较追求时尚和格调的,我们的业主也是如此。业主喜欢干净、高品质的东西,因此精致、美观是她对整个房屋设计的要求。
▼客厅 Living room
现代轻奢,将传统的华奢风简饰成更符合现代人时尚审美与经济需求的奢雅设计,以简洁的格局呈现高端品质与设计感。整个客厅设计以蓝白灰色调奠定了简洁时尚的气质,通过软装:装饰画、彩色电视背景墙、布艺沙发等搭配,彰显出了精致的一面。




▼餐厅 Dining room
客厅一直延伸到餐厅,增加了室内空间的舒适度。因为空间限制,所以餐厅设计相对不会很复杂,一张长形实木桌加上四把椅子和墙面挂画,简单却不失温馨。


▼过道 The corridor
过道也没有做过多修饰,过道尽头一幅现代画,彰显了主人对时尚的追求。

▼主卧 Host bedroom
每个房间设计都有不同的色彩风格,主卧采用的是热情的橘黄色。整体设计给人一种非常放松的体验,没有过多的炫耀式装饰,而是以自我为出发点,满足业主对家的舒适与品质的双重需求。



▼次卧 Secondary bedroom
次卧主色调为舒适的绿色,浅黄色墙体在光线下呈现出柔和的肌理,搭配时尚挂画,氛围轻松优雅。

▼儿童房 Children room
儿童房设计的是偏少女心的粉色,因为空间限制,所以设计的是榻榻米床+衣柜+书桌+书柜的设计,“麻雀虽小五脏俱全”,整体搭配在一起非常舒适,也很适合小朋友居住。

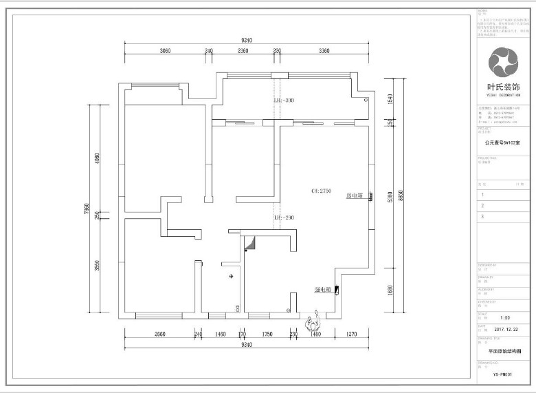
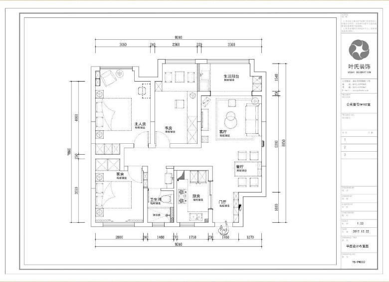
▼户型设计图 The plan


案例信息
项目名称:昆山 · 公元壹号5#
项目面积:97㎡
项目风格:现代轻奢风
项目性质:全包(硬装+软装)
项目造价:硬装12万+软装7万
硬装设计师:枼氏设计机构-唐新伟
软装设计师:枼氏设计机构-廖琼
施工单位:叶氏环保家装
[ 此帖被叶氏装饰客服在2018-09-21 20:01重新编辑 ]