夜间模式
  • 102356阅读
  • 95回复

第一次装修,一步步打造属于我们的家,很期待!! [复制链接]

上一主题 下一主题
离线lihui94453
级别: 昆山新人
发帖
114
昆币
147 枚
只看楼主 使用道具 电梯直达
楼主  发表于: 2018-11-13 , 来自:江苏省0==
家装日记
小区: 泰极花园
套内面积: 170 (平米)
预算: 20 万
开工日期: 2018-11-04
装修风格: 简约
装修方式: 全包
装修公司: 印象水仙装饰设计
小区:泰极花园
套内面积:170m2
预算:20万
开工日期:2018年11月04日
装修风格:北欧
装修方式:全包
装修公司:印象水仙装饰设计

我跟老公都不是本地人,去年在这边买了个二手房,之前一直都是租房子的,现在好不容易有了属于自己的房子,所以对于装修特别上心。因为我们对装修方面一点都不懂,也有在论坛上看别人写的装修日记,在学,现在自己家装修了,因此也开个帖子,希望大神们多多指教。


至于选的装修公司,也是通过货比三家,(当然肯定不止三家了)最后才确定下来了的,因为我们夫妻俩平时工作也是比较忙的,所以我们决定全部由装修公司全权负责,这样我们也比较省心。



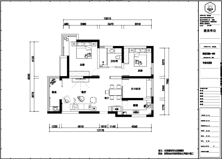
第一次装修心情还是比较激动的,还是先上写图给大家看看。


原始结构图:






平面布置图:






三维:









[ 此帖被lihui94453在2018-11-13 15:46重新编辑 ]
本帖评分记录
昆山馨绿家 昆币 +1 -来自昆山论坛APP 2019-05-21
houandhou 昆币 +1 -来自昆山论坛APP 2019-05-11
我心已死 昆币 +1 -来自昆山论坛APP 2019-03-20
【天地】飞 昆币 +1 -来自昆山论坛APP 2018-11-21
美得不像话 昆币 +1 -来自昆山论坛APP 2018-11-20
zhoupianpian 昆币 +1 -来自昆山论坛APP 2018-11-18
昆山美缝 昆币 +1 -来自昆山论坛APP 2018-11-15
昆山伟宏门窗 昆币 +1 - 2018-11-14
8条评分昆币+8
爆料有奖!关注昆山论坛抖音号,抖音搜索“昆山论坛”,或搜索抖音号:ksbbs
 
美女离线装修版客服
发帖
10174
昆币
22137 枚
置顶 (来自14楼) 发表于: 2018-11-20 , 来自:江苏省0==
恭喜楼主呀,既然开贴了,在日记板块里按照格式参加寅盛杯装修日记大赛呀,有机会获得6888元现金奖哟!
本帖评分记录
一千块一夜 昆币 +1 -来自昆山论坛APP 2018-11-20
1条评分昆币+1
爆料有奖!关注昆山论坛抖音号,抖音搜索“昆山论坛”,或搜索抖音号:ksbbs
 
离线lihui94453
级别: 昆山新人
发帖
114
昆币
147 枚
沙发  发表于: 2018-11-13 , 来自:江苏省0==
11月04日,挑个吉利日家里热热闹闹开工了,开心。








爆料有奖!关注昆山论坛抖音号,抖音搜索“昆山论坛”,或搜索抖音号:ksbbs
 
离线feidou354
级别: 昆山新人
发帖
173
昆币
217 枚
板凳  发表于: 2018-11-13 , 来自:江苏省0==
恭喜楼主开工大吉
爆料有奖!关注昆山论坛抖音号,抖音搜索“昆山论坛”,或搜索抖音号:ksbbs
 
帅哥离线印象水仙设计
级别: 家装商家
发帖
11315
昆币
19373 枚
地板  发表于: 2018-11-13 , 来自:江苏省0==
恭喜开工大吉,我跟你一样期待
爆料有奖!关注昆山论坛抖音号,抖音搜索“昆山论坛”,或搜索抖音号:ksbbs
 
美女离线zhuisou938
级别: 昆山过客
发帖
87
昆币
96 枚
4楼 发表于: 2018-11-14 , 来自:江苏省0==
恭喜你们
爆料有奖!关注昆山论坛抖音号,抖音搜索“昆山论坛”,或搜索抖音号:ksbbs
 
美女离线昆山和美门窗
级别: 禁止发言
发帖
7597
昆币
22038 枚
5楼 发表于: 2018-11-14 , 来自:山东省0==
用户被禁言,该主题自动屏蔽!
爆料有奖!关注昆山论坛抖音号,抖音搜索“昆山论坛”,或搜索抖音号:ksbbs
 
美女离线苏州一只羊
级别: 昆山过客
发帖
14
昆币
26 枚
6楼 发表于: 2018-11-14 , 来自:江苏省0==
恭喜楼主开工啦!装修无小事,过程把控和现场管理很重要哦!独立第三方监理装小蜜了解一下哦,v信szzxm888
爆料有奖!关注昆山论坛抖音号,抖音搜索“昆山论坛”,或搜索抖音号:ksbbs
 
美女离线昆山伟宏门窗
级别: 禁止发言

发帖
18978
昆币
32400 枚
7楼 发表于: 2018-11-14 , 来自:江苏省0==
用户被禁言,该主题自动屏蔽!
爆料有奖!关注昆山论坛抖音号,抖音搜索“昆山论坛”,或搜索抖音号:ksbbs
 
帅哥离线昆山美缝
级别: 昆山新人
发帖
163
昆币
327 枚
8楼 发表于: 2018-11-15 , 来自:江苏省0==
印象水仙装修的不错支持你!
本帖评分记录
期独情天 昆币 +1 -来自昆山论坛APP 2018-11-17
1条评分昆币+1
爆料有奖!关注昆山论坛抖音号,抖音搜索“昆山论坛”,或搜索抖音号:ksbbs
 
快速回复
限76 字节
如果您在写长篇帖子又不马上发表,建议存为草稿
 
上一个 下一个