


先补一个装修前准备工作:
1.需要在办理装修许可证,物业会提供一份房屋的承重墙布局图。
2.跟物业确认封阳台的要求,应该每个小区要求不太一样。
3.开通水电。电其实开发商已经帮你开通过了,只要打电话到供电局问下你家开户号码就可以了。水是在对应小区所在水局开通就可以,周六周日都上班,带上本人身份证和购房合同就可以。注意:联系开通水之前先把家里总阀门关闭,因为开通立马有水的,万一交房过程中忘关求龙头就会水漫金山了


。
主体拆改造,让空间更实用,格局变得更加合理。
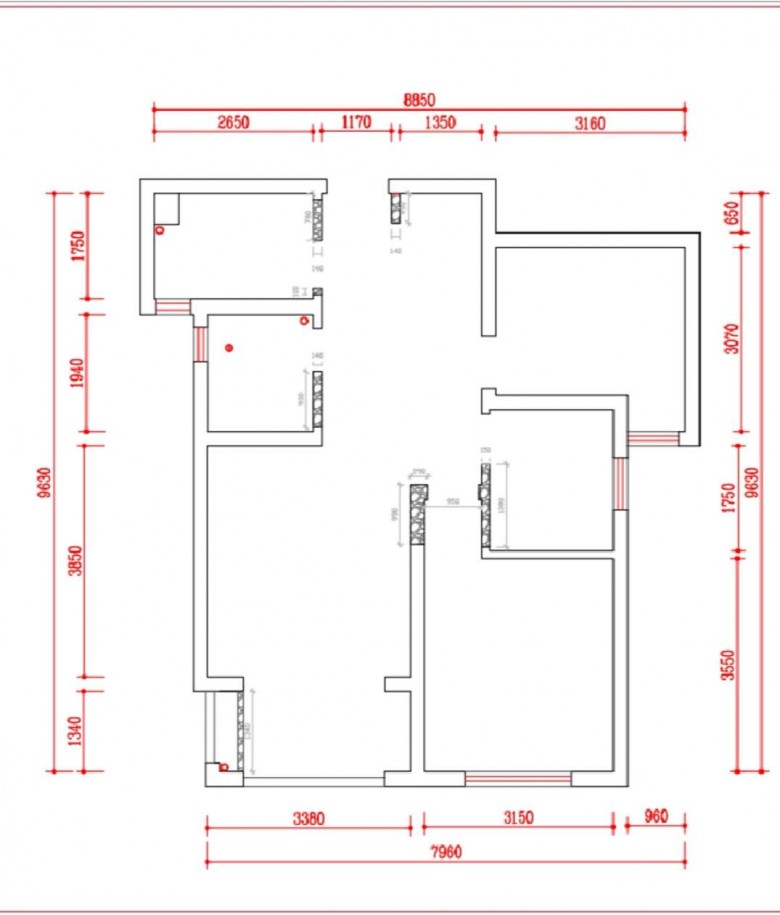
【承重墙结构图 】

我觉得在设计前要掌握建筑的承重结构,分清可拆除部分和不可拆除部分非常重要。如果不提前了解清楚就会打乱你前期所有布局设计。
我家红色小圈也是开工当天再次找物业到我家里再次确认的,因为承重墙是绝对不能拆除的。如果不能拆除我家设计布局也需要改动。
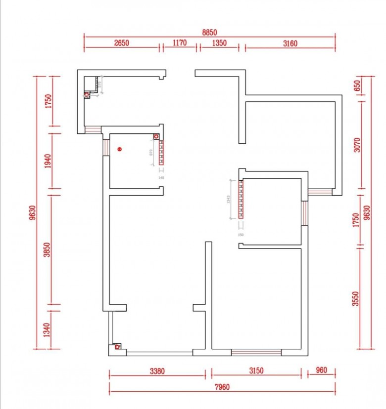
【拆墙图】

【新建结构图】

【平面布局图】

今天已经开始墙体拆除




