日记”一个陌生又熟悉的词,对于“日记”的记忆应该是停留在小学吧。
大家好,从今天起我就要在这里安家,在记录我的装修历程同时也能分享一点小小的经验给大家。
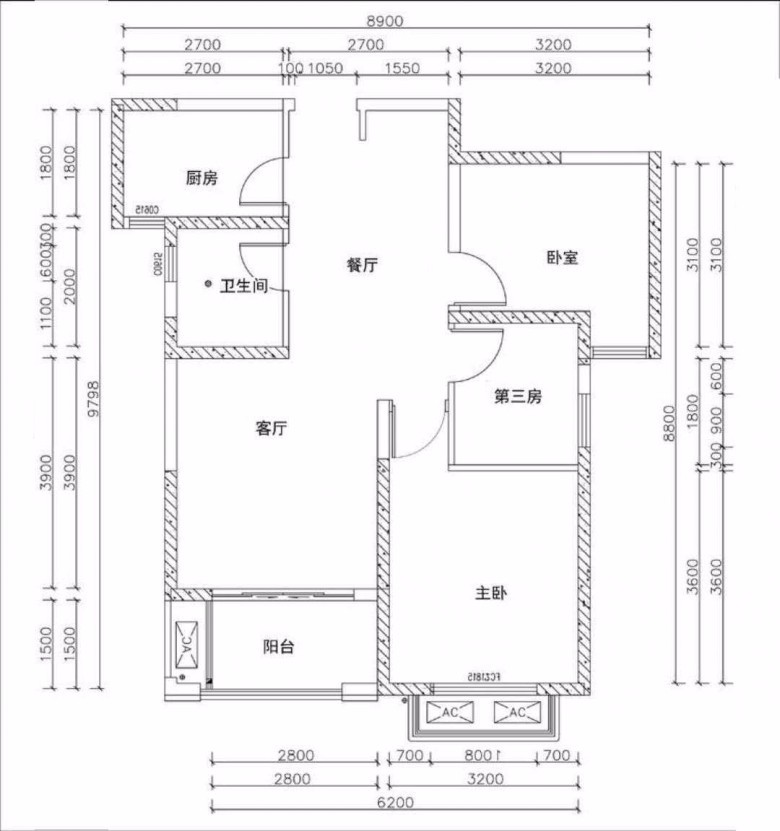
【户型】3室2厅1卫
【建筑面积】建筑面积90.49㎡
【装修公司】叶氏环保家装
【装修风格】北欧
【装修预算】预算888888(一长串吉利数字)
【包工方式】全包,选择全包主要还是因为工作 太忙没有多余时间和精力去跑建材市场。
【装修效果图及户型图】

【装修公司选择篇】
都说装修水很深,到处都是坑。于是找度娘查找了关于装修的话题各种脑补。再加上我是全包,所以选择一家口碑好值得信赖的装修公司非常重要。买东西必须货比三家,着重选择了三家公司对辅材材料环保,工艺及施工工地进行了对比。多水电改造,瓦工,木工,油漆工每到工序进行了现场了解。经过的一个月的奔波,最后综合的考虑选择了叶氏环保家装,在这里感一下谢叶氏总店设计师曹老师。
【开工篇】
7月16日一个适合开工的日子,开工时间8点18分,中间有个小插曲时间变为了8点28分58秒。希望接下来的装修避免这样的插曲

现场对接施工图纸过程,感谢吴总的提议,把厨房移门最终改成了开门,因为移门是玻璃门从外面能看到里面吊柜和橱柜,再加上内开入户门门,最终放弃移门。

电梯口地面和电梯出口两侧进行了保护,即避免在运送材料和建筑垃圾的过程中造成地面瓷砖和电梯出入口损坏又起到了宣传作用,点个赞。
