夜间模式
  • 10374阅读
  • 1回复

越来越多人喜欢中式装修,看完这两套案例你就知道了! [复制链接]

上一主题 下一主题
级别: 家装商家

发帖
21337
昆币
22286 枚
只看楼主 使用道具 电梯直达
楼主  发表于: 2019-10-11 , 来自:江苏省0==

在很多人看来,中式较为传统,大多是受中老年人喜爱的。但如果中式混入了现代元素,就能变得时尚前卫,正好和时下年轻人的喜好做了无缝对接,既保留传统,又兼具颜值。也因此越来越多的年轻人开始喜欢新中式。

新中式到底能有多美,一起看看这两套设计才知道~

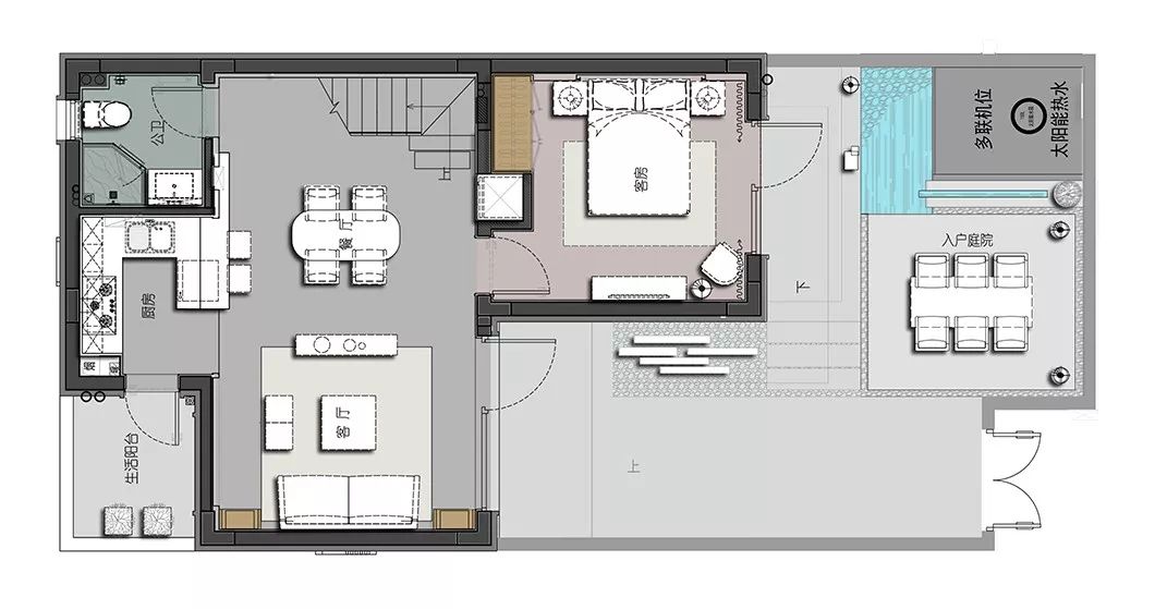
90户型
雨林度假风 悠闲自然情怀



光透过帘幕铺洒进来
一桌一椅在光影的招抚下更见清雅
渗透着生活气息与美感
自然是最美的导师
度假风情,始于自然,清新醇厚



摒弃浮华,尊崇自然,李益中空间设计秉承“策略思维,人文气质”的设计理念,为该户型塑造了雨林度假风,领略威海这座滨海花园的自然之美。


空间界面简洁明净,简约低调的质感充盈在每一个角落。


白色为主调,温和的木色为空间底妆,结合木材的自然纹理,让四周兼顾美观舒适的同时,植入安静纯粹的精神观感。



软装材料是以亲肤的棉麻搭配有质感的藤编,以木饰面为主的家具,局部使用了细腻的藤编,质朴且粗犷,空间的气质在静宁平和中脱颖而出。



没有过多的装饰,视觉中足够的留白,显与隐,互相作用。


对于人居空间设计,设计师深知需要基于生活享受、精神满足、环境舒适等多维度诉求,去指引创作。


设计师用简单自然的手法,让品质生活与艺术魅力相辅相成。


平面图


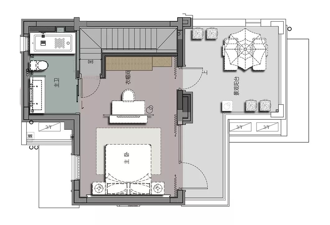
135户型

儒雅东方韵 雅致生活格调



高速的城市化
失去了许多大自然风光
人们需要一个欣赏自然的视窗
在生活中,我们遗忘的那些美景
都藏在这失落的窗中



儒雅居室,文人求之,平和内敛、质朴端庄,时间在这里,仿佛走的更慢。空间设计以现代东方的妙笔,让东方元素与现代技法融合。



135户型中,以天然纹理,简练界面为基础,用材方面较多地采用了木材、麻质面料等体现天然质感的材质,色调倾于朴素。



空间关系处理,留有人文画般的余韵,借由简明清雅的线条,勾勒出儒雅东方韵。



卧室以开放式布局重新调整功能分区,床头背景是一扇可开合的推拉窗,正对面是露台,室内明亮通透。



卧室的软装材料,以有质感的棉麻搭配带有暗纹的窗帘,家具主要以浅木饰面为主,局部使用拉丝古铜、皮革、大理石做点缀,雅致风情之韵让人沉醉其中……



卫生间位于卧室的左侧,浴缸被单独分离设于卧室右侧,点上一支香薰,手捧一本书,主人可以独享沐浴放松时光。


平面图


本帖评分记录
昆山伟宏门窗 昆币 +1 -来自昆山论坛APP 2019-10-12
1条评分昆币+1
爆料有奖!关注昆山论坛抖音号,抖音搜索“昆山论坛”,或搜索抖音号:ksbbs
 
电话:13912674136   微信账号:13912674136 QQ:2993026895  公司地址:张浦镇学士路35号          
美女离线昆山伟宏门窗
级别: 禁止发言

发帖
18978
昆币
32400 枚
沙发  发表于: 2019-10-12 , 来自:江苏省0==
用户被禁言,该主题自动屏蔽!
爆料有奖!关注昆山论坛抖音号,抖音搜索“昆山论坛”,或搜索抖音号:ksbbs
 
快速回复
限76 字节
如果您提交过一次失败了,可以用”恢复数据”来恢复帖子内容
 
上一个 下一个