夜间模式
  • 260638阅读
  • 169回复

【薇薇家居全案软装】鹿城如画,山晓望晴。携手薇薇家居软装打造美式经典 [复制链接]

上一主题 下一主题
离线小蜜麻花
级别: 昆山过客
发帖
98
昆币
101 枚
10楼 发表于: 2020-09-16 , 来自:江苏省0==
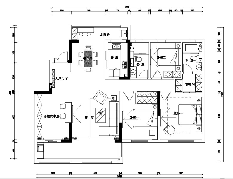
北面阳台我打通了这样面积、采光和通风都能好点,南面的阳台只做了封窗。一方面是因为那边和书房的阳台是通的,阳台能保证环境安静。另外南边的阳台除了养养花还可以做功能性阳台,所以没有打通。
爆料有奖!关注昆山论坛抖音号,抖音搜索“昆山论坛”,或搜索抖音号:ksbbs
 
离线小蜜麻花
级别: 昆山过客
发帖
98
昆币
101 枚
11楼 发表于: 2020-09-16 , 来自:江苏省0==
之前发的是原户型图纸,在原有的户型上面有做一点点改动,书房和阳台都有变化。
爆料有奖!关注昆山论坛抖音号,抖音搜索“昆山论坛”,或搜索抖音号:ksbbs
 
美女离线云樨
发帖
910
昆币
1053 枚
12楼 发表于: 2020-09-16 , 来自:江苏省0==
打卡,期待最后的成品
爆料有奖!关注昆山论坛抖音号,抖音搜索“昆山论坛”,或搜索抖音号:ksbbs
 
美女离线薇薇家居
级别: 昆山过客
发帖
93
昆币
102 枚
13楼 发表于: 2020-09-16 , 来自:江苏省0==
昆山伟宏门窗:第二装修更有经验,又有设计师设计肯定会比第一次好很多,加油!需要封阳台可以上我们厂看看哦 (2020-09-15 14:13) 

你们的阳台也不错呢
爆料有奖!关注昆山论坛抖音号,抖音搜索“昆山论坛”,或搜索抖音号:ksbbs
 
离线willingme
发帖
1083
昆币
1236 枚
14楼 发表于: 2020-09-16 , 来自:江苏省0==
关注了楼主加油更新啊

楼主留言:

好的好的,争取每天都更新哦~

爆料有奖!关注昆山论坛抖音号,抖音搜索“昆山论坛”,或搜索抖音号:ksbbs
 
美女离线昆山伟宏门窗
级别: 禁止发言

发帖
18978
昆币
32400 枚
15楼 发表于: 2020-09-17 , 来自:未知0==
用户被禁言,该主题自动屏蔽!
爆料有奖!关注昆山论坛抖音号,抖音搜索“昆山论坛”,或搜索抖音号:ksbbs
 
离线nobody丶
级别: 昆山新人
发帖
179
昆币
193 枚
16楼 发表于: 2020-09-17 , 来自:江苏省0==
楼主加油,已经收藏了

楼主留言:

谢谢关注~手动比心~~~

爆料有奖!关注昆山论坛抖音号,抖音搜索“昆山论坛”,或搜索抖音号:ksbbs
 
离线小蜜麻花
级别: 昆山过客
发帖
98
昆币
101 枚
17楼 发表于: 2020-09-17 , 来自:江苏省0==
昨天说到户型的改动。其实在原有的户型上并没有改动多少,主要有两点:1.打通北阳台,2.改造开放式书房。
说起来,最大的改动应该就是书房了吧。我们将书房打造成开放式书房。
爆料有奖!关注昆山论坛抖音号,抖音搜索“昆山论坛”,或搜索抖音号:ksbbs
 
美女离线薇薇家居
级别: 昆山过客
发帖
93
昆币
102 枚
18楼 发表于: 2020-09-17 , 来自:江苏省0==
我也想一个这样的fan房子
爆料有奖!关注昆山论坛抖音号,抖音搜索“昆山论坛”,或搜索抖音号:ksbbs
 
离线willingme
发帖
1083
昆币
1236 枚
19楼 发表于: 2020-09-18 , 来自:江苏省0==
主卧卫生间对着床,会不会风水上不太好?这个纯粹网上看到的
爆料有奖!关注昆山论坛抖音号,抖音搜索“昆山论坛”,或搜索抖音号:ksbbs
 
快速回复
限76 字节
如果您提交过一次失败了,可以用”恢复数据”来恢复帖子内容
 
上一个 下一个