夜间模式
  • 80720阅读
  • 47回复

记录我的第二次装修历程 [复制链接]

上一主题 下一主题
美女离线默默转身
级别: 昆山新人
发帖
295
昆币
428 枚
只看楼主 使用道具 电梯直达
楼主  发表于: 2020-09-22 , 来自:江苏省0==
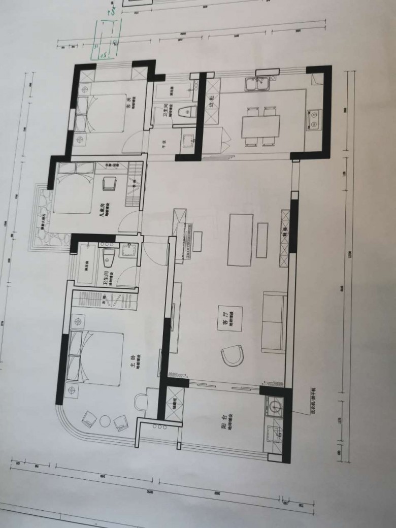
9.19开工啦…
原本是个小四房(图一),设计师给改成了三房(图二),厨房空间变大了,效果图看起来还是很喜欢的,期待最终的成果
之前的那次装修,结果有点失望,入住不到一年,各种问题,实在糟心,这次选择装修公司也算机缘巧合吧,是上次装修的时候参加论坛家装活动的时候认识的,本来是准备多找几家比较下的,结果,这家的设计师各方面特别跟我合拍,也帮我提出了很多细节方面的建议 ,收纳空间也配备的很充足
期待结果如我所想


本帖评分记录
祁晓 昆币 +1 -来自昆山论坛APP 2021-06-01
默默转身 昆币 +1 -来自昆山论坛APP 2021-01-17
荣盛门窗 昆币 +1 -来自昆山论坛APP 2020-09-24
昆山和美门窗 昆币 +1 -来自昆山论坛APP 2020-09-23
昆山伟宏门窗 昆币 +1 -来自昆山论坛APP 2020-09-22
5条评分昆币+5
爆料有奖!关注昆山论坛抖音号,抖音搜索“昆山论坛”,或搜索抖音号:ksbbs
 
离线Edwin9903
发帖
1332
昆币
1485 枚
沙发  发表于: 2020-09-22 , 来自:江苏省0==
恭喜楼主开工大吉
爆料有奖!关注昆山论坛抖音号,抖音搜索“昆山论坛”,或搜索抖音号:ksbbs
 
美女离线装修版客服
发帖
10174
昆币
22137 枚
板凳  发表于: 2020-09-22 , 来自:江苏省0==
恭喜楼主  楼主您也可以来参加本届 《薇薇家居》家装日记大赛哦,参赛就有机会获得7888元现金!
https://bbs.kshot.com/read-htm-tid-6292703.html活动详情了解一下
爆料有奖!关注昆山论坛抖音号,抖音搜索“昆山论坛”,或搜索抖音号:ksbbs
 
离线都不佛啥
级别: 昆山新人
发帖
317
昆币
364 枚
地板  发表于: 2020-09-22 , 来自:江苏省0==
恭喜哦,二套房,可以的
爆料有奖!关注昆山论坛抖音号,抖音搜索“昆山论坛”,或搜索抖音号:ksbbs
 
美女离线昆山伟宏门窗
级别: 禁止发言

发帖
18978
昆币
32400 枚
4楼 发表于: 2020-09-22 , 来自:江苏省0==
用户被禁言,该主题自动屏蔽!
爆料有奖!关注昆山论坛抖音号,抖音搜索“昆山论坛”,或搜索抖音号:ksbbs
 
发帖
6918
昆币
6420 枚
5楼 发表于: 2020-09-22 , 来自:江苏省0==
欢迎关注
【寅盛装饰无毒家装】装修不环保砸掉重做,昆山十年,口碑见证!
公司官网:[url][urlend4]  
VR案例:[url][urlend4]  
精品案例:[url][urlend4]  
东店:昆山市太湖路588号,左岸尚海湾3-103商铺 ( 近震川东路,阳光水世界对面
昆山城北店:昆山市柏庐北路94号(柏庐大桥向北200
爆料有奖!关注昆山论坛抖音号,抖音搜索“昆山论坛”,或搜索抖音号:ksbbs
 
离线朗通装饰
级别: 家装商家

发帖
16948
昆币
14157 枚
6楼 发表于: 2020-09-22 , 来自:江苏省0==
恭喜楼主找到心仪公司
也邀请大家多看装修日记,多学装修心得!
装修日记:http://www.ksbbs.com/read-htm-tid-4497784.html  

公司网址:[url][urlend4] / (精彩案例邀您欣赏)
爆料有奖!关注昆山论坛抖音号,抖音搜索“昆山论坛”,或搜索抖音号:ksbbs
 
发帖
829
昆币
934 枚
7楼 发表于: 2020-09-22 , 来自:江苏省0==
楼主要多更新呀
爆料有奖!关注昆山论坛抖音号,抖音搜索“昆山论坛”,或搜索抖音号:ksbbs
 
发帖
1126
昆币
1234 枚
8楼 发表于: 2020-09-23 , 来自:江苏省0==
再看 ,继续更新啊 楼主
爆料有奖!关注昆山论坛抖音号,抖音搜索“昆山论坛”,或搜索抖音号:ksbbs
 
美女离线昆山和美门窗
级别: 禁止发言
发帖
7597
昆币
22038 枚
9楼 发表于: 2020-09-23 , 来自:江苏省0==
用户被禁言,该主题自动屏蔽!
爆料有奖!关注昆山论坛抖音号,抖音搜索“昆山论坛”,或搜索抖音号:ksbbs
 
快速回复
限76 字节
如果您提交过一次失败了,可以用”恢复数据”来恢复帖子内容
 
上一个 下一个