夜间模式
  • 275242阅读
  • 123回复

齐家典尚&华赢乐家设计丨景悦府97㎡在这里谱写新的生活篇章。 [复制链接]

上一主题 下一主题
美女离线雅梦熏依
级别: 昆山过客
发帖
47
昆币
81 枚
只看楼主 使用道具 电梯直达
楼主  发表于: 2020-09-24 , 来自:江苏省0==
家装日记
小区: 景悦府
套内面积: 97 (平米)
预算: 25 万
开工日期: 2020-09-21
装修风格: 简约
装修方式: 全包
装修公司: 齐家典尚&华赢乐家整装
风,总是吹个不停,吹恼了这都市的路人,
吹散了盛开的蒲公英
于是便有了开始的故事,

——便有了一个家



(开工合照)



本帖评分记录
塞福缇 昆币 +1 -来自昆山论坛APP 2020-11-08
昆山和美门窗 昆币 +1 -来自昆山论坛APP 2020-09-26
sophia老虎 昆币 +1 -来自昆山论坛APP 2020-09-25
昆山伟宏门窗 昆币 +1 -来自昆山论坛APP 2020-09-25
荣盛门窗 昆币 +1 -来自昆山论坛APP 2020-09-24
5条评分昆币+5
爆料有奖!关注昆山论坛抖音号,抖音搜索“昆山论坛”,或搜索抖音号:ksbbs
 
美女离线雅梦熏依
级别: 昆山过客
发帖
47
昆币
81 枚
沙发  发表于: 2020-09-24 , 来自:江苏省0==
家有千面,每所住宅都记录着自己的故事。
                                                                            ----------------------------------------------------------------------------------------------------------------------

对于选择哪家装修公司我们也是对比了几家的,最终依旧选择了华赢乐家,因为对比下来华赢乐家从工艺、细节的处理、还有设计理念方案相对对来说我更满意,再加上自己也有了解过他们家也是在城东这边将近十年了,大公司还是比较靠谱的。


人间百态,各自繁忙。当生活回归根本,是卸下心防和负担。

爆料有奖!关注昆山论坛抖音号,抖音搜索“昆山论坛”,或搜索抖音号:ksbbs
 
美女离线雅梦熏依
级别: 昆山过客
发帖
47
昆币
81 枚
板凳  发表于: 2020-09-24 , 来自:江苏省0==
风格:现代简约
确认风格也是令人头疼,说实话在看装修前我是一点概念都没有的,也不知道到底装什么风格的,所以在确认风格上也要感谢设计师环工的建议,现代简约风格不易过时,简单大方又高级。(最主要的看效果有一种90多平装出100多平的赶脚

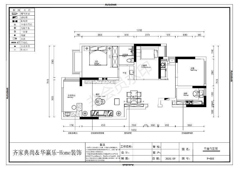
下边平面图、效果图奉上



(平面布置图)


效果图










爆料有奖!关注昆山论坛抖音号,抖音搜索“昆山论坛”,或搜索抖音号:ksbbs
 
美女离线荣盛门窗
级别: 禁止发言

发帖
7737
昆币
8552 枚
地板  发表于: 2020-09-24 , 来自:江苏省0==
用户被禁言,该主题自动屏蔽!
爆料有奖!关注昆山论坛抖音号,抖音搜索“昆山论坛”,或搜索抖音号:ksbbs
 
美女离线装修版客服
发帖
10174
昆币
22137 枚
4楼 发表于: 2020-09-25 , 来自:江苏省0==
恭喜楼主  楼主您也可以来参加本届 《薇薇家居》家装日记大赛哦,参赛就有机会获得7888元现金!
https://bbs.kshot.com/read-htm-tid-6292703.html活动详情了解一下
爆料有奖!关注昆山论坛抖音号,抖音搜索“昆山论坛”,或搜索抖音号:ksbbs
 
离线饭团儿57
级别: 昆山新人
发帖
270
昆币
298 枚
5楼 发表于: 2020-09-25 , 来自:江苏省0==
楼主开工大吉,效果图好看
爆料有奖!关注昆山论坛抖音号,抖音搜索“昆山论坛”,或搜索抖音号:ksbbs
 
发帖
6918
昆币
6420 枚
6楼 发表于: 2020-09-25 , 来自:江苏省0==
欢迎关注
【寅盛装饰无毒家装】装修不环保砸掉重做,昆山十年,口碑见证!
公司官网:[url][urlend4]  
VR案例:[url][urlend4]  
精品案例:[url][urlend4]  
东店:昆山市太湖路588号,左岸尚海湾3-103商铺 ( 近震川东路,阳光水世界对面
昆山城北店:昆山市柏庐北路94号(柏庐大桥向北200米左右

爆料有奖!关注昆山论坛抖音号,抖音搜索“昆山论坛”,或搜索抖音号:ksbbs
 
离线西域姑娘
级别: 昆山新人
发帖
123
昆币
134 枚
7楼 发表于: 2020-09-25 , 来自:江苏省0==
开工大吉
爆料有奖!关注昆山论坛抖音号,抖音搜索“昆山论坛”,或搜索抖音号:ksbbs
 
美女离线昆山伟宏门窗
级别: 禁止发言

发帖
18978
昆币
32400 枚
8楼 发表于: 2020-09-25 , 来自:江苏省0==
用户被禁言,该主题自动屏蔽!
爆料有奖!关注昆山论坛抖音号,抖音搜索“昆山论坛”,或搜索抖音号:ksbbs
 
美女离线雅梦熏依
级别: 昆山过客
发帖
47
昆币
81 枚
9楼 发表于: 2020-09-26 , 来自:江苏省0==
持续更新中》》》》》》》》》


阳台进行了防尘网保护






然后就是各种铲除









爆料有奖!关注昆山论坛抖音号,抖音搜索“昆山论坛”,或搜索抖音号:ksbbs
 
快速回复
限76 字节
如果您在写长篇帖子又不马上发表,建议存为草稿
 
上一个 下一个