买房之路不亚于取经之路,之前只想买个120平左右的3房安个家,所以一直在看中央社区和伯爵刚需房,惜售的形势下等几个好户型好楼层出来非常难,价格也是一路高涨。悦府是一路看着盖起来的,看中的就是在周边算户型比较好,捂盘惜售下购买也不是那么容易的事,摇号也没那么好的运气,3个号一个也没中,有人3个中了2个,命太好。18年摇号以后房价也稳定了,也不急着买了,一晃2年又过去。疫情之后,资金收益也一路下滑,刚好悦府也发证了,了解了一下情况,楼王户型非常完美,但是基本买不到。果断退而求其次挑了个168的户型,也算够用。直接跨过刚需一步到位到改善了。
往事不可忆,在一直需求不明确的情况下,错过了江南理想,不后悔是不可能的,但错过就错过了,15年后也一起老了。悦府交房以后的价格也是比预计的高得多,如果回到18年,估计会选择悦庭了,不会像现在这么紧凑。
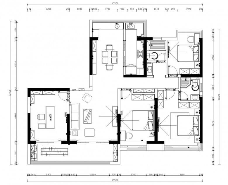
也许一直就在等悦府,还是蛮中意4房的户型,与大厅隔开的一个南卧室可以用来做书房办公房电脑房,动静分离而不影响另外3个卧室,隔壁也是邻居的大厅,也不会扰邻居。

5月办事效率很高,20多天全部手续办完拿到证,工作以后飘荡了16年总算有了一个自己的小窝,有点小激动。也有点小失望,等了这么久,为了这个首套的资格牺牲了不少买房就能赚钱的机会,最后也没落到什么优惠政策,利率依然那么高对首套没有优惠,贷款额度依然卡的那么紧,公积金不算收入。像我这样一直没买的80后估计所剩无几了。个中辛酸只有自己能体会,经历是珍贵的,努力终会有回报。

接下来考虑装修,论坛里很多家,选择谁完全看缘分,最终选择了朗通,昆山十几年老牌公司,口碑很不错,工地经验丰富,小区在建工地也多
宋首设计师非常有耐心,装修方案反复讨论了3个月才定下来。我也比较忙,也一直在抽时间看土巴兔的装修案例。装修小白开始一头雾水,住了这么多年的简装房,觉得要装出点不一样的,欧式的简约的租了这么多年房子,住了太多了,家要有点家的感觉,不想一进家门感觉像进了酒店或者出租房。2020这个特殊的年份,让我们看到了祖国的强大。跟随祖国的步伐经历贫瘠、成长,达到小康,奔向富裕,终究希望生活能回归中式文化。个人是比较中意新中式的,老婆不太喜欢深色,所以最终敲定了浅色原木色。中式讲究对称设计,仔细研究下来,悦府这户型不太适合纯中式设计,客厅和餐厅不方正。餐厅本身很狭窄,沙发背景墙不对称,主卧比次卧还小,主卫容不下浴缸。167的户型4房本身到处都很紧凑,中式要做的好感觉得200以上的大平层。又要照顾到预算,最终在不断修修改改之下,形成现在的原木色风格+现代轻奢+新中式的混搭风格,很多地方还是从简做了简约设计。了解到小区同户型已装的成本预算,基本60-70万是打底的数字。几家无形之中超预算到90万左右。所以这个心理准备是要的。
9月的装修黄道吉日不多,选个黄道吉日总不至于冲煞。选了9月19号 9点19分,终于开工了!
合影左一朗通师傅,右一监理,右二宋首设计师

萌娃开敲开工之锤
来两张效果图,VR截图视角有点拉升