夜间模式
  • 294569阅读
  • 118回复

【薇薇家居全案软装】金九银十  —— 我的装修之旅 [复制链接]

上一主题 下一主题
发帖
1019
昆币
1395 枚
只看楼主 使用道具 电梯直达
楼主  发表于: 2020-10-14 , 来自:江苏省0==
家装日记
小区: 兰亭御园
套内面积: 107 (平米)
预算: 50 万
开工日期: 2020-09-25
装修风格: 欧式
装修方式: 全包
装修公司: 1918
熟悉我ID的应该都知道,前两个月发了贴,选装修公司,但是最近太忙了,在忙什么我也不知道
总之,我的家终于开工啦

本帖评分记录
83天蓝 昆币 +1 -来自昆山论坛APP 2020-11-12
荣盛门窗 昆币 +1 -来自昆山论坛APP 2020-10-14
昆山伟宏门窗 昆币 +1 - 2020-10-14
3条评分昆币+3
爆料有奖!关注昆山论坛抖音号,抖音搜索“昆山论坛”,或搜索抖音号:ksbbs
 
美女离线装修版客服
发帖
10174
昆币
22137 枚
置顶 (来自5楼) 发表于: 2020-10-14 , 来自:江苏省0==
恭喜楼主  楼主您也可以来参加本届 《薇薇家居》家装日记大赛哦,参赛就有机会获得7888元现金!
https://bbs.kshot.com/read-htm-tid-6292703.html活动详情了解一下
爆料有奖!关注昆山论坛抖音号,抖音搜索“昆山论坛”,或搜索抖音号:ksbbs
 
美女离线昆山伟宏门窗
级别: 禁止发言

发帖
18978
昆币
32400 枚
沙发  发表于: 2020-10-14 , 来自:江苏省0==
用户被禁言,该主题自动屏蔽!
爆料有奖!关注昆山论坛抖音号,抖音搜索“昆山论坛”,或搜索抖音号:ksbbs
 
发帖
1019
昆币
1395 枚
板凳  发表于: 2020-10-14 , 来自:江苏省0==
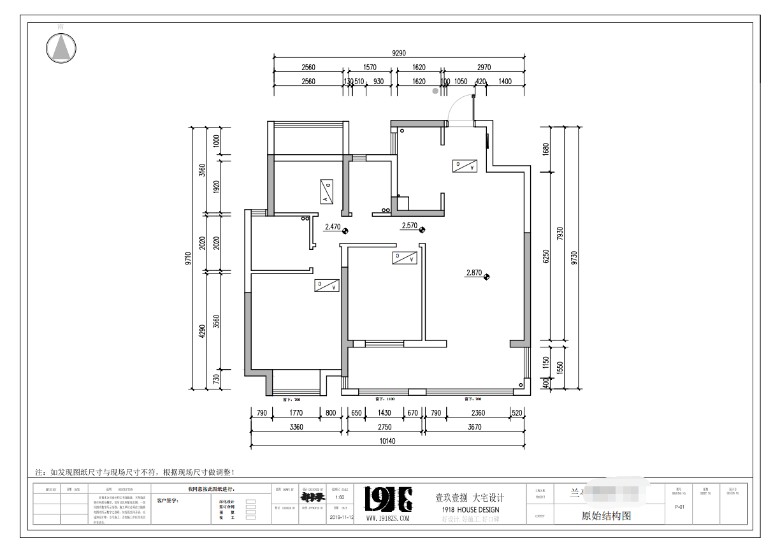
其实中间还有很多插曲,总的来说还是顺利开工了
这个户型平面图,调整过多次

最后我们定了北欧风格,结构简单实用,没有过多的造型装饰


爆料有奖!关注昆山论坛抖音号,抖音搜索“昆山论坛”,或搜索抖音号:ksbbs
 
美女离线荣盛门窗
级别: 禁止发言

发帖
7737
昆币
8552 枚
地板  发表于: 2020-10-14 , 来自:江苏省0==
用户被禁言,该主题自动屏蔽!
爆料有奖!关注昆山论坛抖音号,抖音搜索“昆山论坛”,或搜索抖音号:ksbbs
 
美女离线昆山伟宏门窗
级别: 禁止发言

发帖
18978
昆币
32400 枚
4楼 发表于: 2020-10-14 , 来自:江苏省0==
用户被禁言,该主题自动屏蔽!
爆料有奖!关注昆山论坛抖音号,抖音搜索“昆山论坛”,或搜索抖音号:ksbbs
 
美女离线装修版客服
发帖
10174
昆币
22137 枚
5楼 发表于: 2020-10-14 , 来自:江苏省0==
恭喜楼主  楼主您也可以来参加本届 《薇薇家居》家装日记大赛哦,参赛就有机会获得7888元现金!
https://bbs.kshot.com/read-htm-tid-6292703.html活动详情了解一下
爆料有奖!关注昆山论坛抖音号,抖音搜索“昆山论坛”,或搜索抖音号:ksbbs
 
发帖
2098
昆币
1988 枚
6楼 发表于: 2020-10-14 , 来自:江苏省0==
帮顶下,后期关注下
[ 此帖被微笑奶爸先生在2020-10-14 21:33重新编辑 ]
爆料有奖!关注昆山论坛抖音号,抖音搜索“昆山论坛”,或搜索抖音号:ksbbs
 
帅哥离线守望先锋76589
发帖
772
昆币
909 枚
7楼 发表于: 2020-10-15 , 来自:江苏省0==
开工大吉
爆料有奖!关注昆山论坛抖音号,抖音搜索“昆山论坛”,或搜索抖音号:ksbbs
 
离线遇与贻尽
级别: 昆山新人
发帖
156
昆币
161 枚
8楼 发表于: 2020-10-15 , 来自:江苏省0==
效果图好评
爆料有奖!关注昆山论坛抖音号,抖音搜索“昆山论坛”,或搜索抖音号:ksbbs
 
快速回复
限76 字节
如果您提交过一次失败了,可以用”恢复数据”来恢复帖子内容
 
上一个 下一个