夜间模式
  • 324734阅读
  • 165回复

老小区二手房装修的佛系记录 [复制链接]

上一主题 下一主题
帅哥离线nonickname
级别: 昆山新人
发帖
386
昆币
2187 枚
只看楼主 使用道具 电梯直达
楼主  发表于: 2020-10-26 , 来自:江苏省0==
家装日记
小区: 娄邑小区
套内面积: 61 (平米)
预算:
开工日期: 2020-10-20
装修风格: 简约
装修方式: 半包
装修公司:
开工篇
本来装修没有提上日程,租客的提前退租,使得我重新考虑装修的事情。
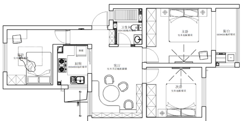
房子是2000年修建的,产证面积是78.25㎡,套内面积是61.7㎡。房屋是框架结构,三室一厅一厨一卫,两个卧室朝南,客厅居中,客厅北面带个窗户,一个卧室朝北。具体户型图如下:




此户型图最大的缺点:就是南北不通透,客厅居中,只有一个朝南的窗户。



[ 此帖被nonickname在2020-10-26 21:29重新编辑 ]
本帖评分记录
小石sy 昆币 +1 -来自昆山论坛APP 2021-05-28
乾隆盛世 昆币 +1 -来自昆山论坛APP 2021-04-01
巴黎蔷薇 昆币 +1 -来自昆山论坛APP 2021-03-27
小胖胖的小 昆币 +1 -来自昆山论坛APP 2021-02-15
fusion 昆币 +1 -来自昆山论坛APP 2021-01-17
一直很安静88 昆币 +1 -来自昆山论坛APP 2020-12-07
nonickname 昆币 +1 -来自昆山论坛APP 2020-12-06
黑白嘟世界 昆币 +1 -来自昆山论坛APP 2020-11-30
c2046 昆币 +1 -来自昆山论坛APP 2020-11-28
kily 昆币 +1 -来自昆山论坛APP 2020-11-19
12
13条评分昆币+14
爆料有奖!关注昆山论坛抖音号,抖音搜索“昆山论坛”,或搜索抖音号:ksbbs
 
美女离线装修版客服
发帖
10174
昆币
22137 枚
置顶 (来自3楼) 发表于: 2020-10-27 , 来自:江苏省0==
恭喜楼主  楼主您也可以来参加本届 《薇薇家居》家装日记大赛哦,参赛就有机会获得7888元现金!
https://bbs.kshot.com/read-htm-tid-6292703.html活动详情了解一下
爆料有奖!关注昆山论坛抖音号,抖音搜索“昆山论坛”,或搜索抖音号:ksbbs
 
帅哥离线nonickname
级别: 昆山新人
发帖
386
昆币
2187 枚
沙发  发表于: 2020-10-26 , 来自:江苏省0==
房屋的设计
房子将来会有5个人居住,三室基本满足要求。
由于我们平时很少看电视,客厅不按照常规布置打算做整面墙的书柜。仅在老人居住的卧室安装电视。
此外由于通透性不好,会导致客厅比较暗。由于是老房子,我们也不敢轻易破坏房屋结构。为此,我们去了昆山城建档案馆拷贝了房屋的结构图。

只要不敲掉画红圈的梁,其余的都可以改动。考虑到房子毕竟有二十多年的房龄,只做了两处改动:一是改变厨房门的朝向,二是将卫生间的墙敲掉一部分做鞋柜。



本帖评分记录
荣盛门窗 昆币 +1 -来自昆山论坛APP 2020-10-31
1条评分昆币+1
爆料有奖!关注昆山论坛抖音号,抖音搜索“昆山论坛”,或搜索抖音号:ksbbs
 
美女离线荣盛门窗
级别: 禁止发言

发帖
7737
昆币
8552 枚
板凳  发表于: 2020-10-27 , 来自:江苏省0==
用户被禁言,该主题自动屏蔽!
爆料有奖!关注昆山论坛抖音号,抖音搜索“昆山论坛”,或搜索抖音号:ksbbs
 
美女离线装修版客服
发帖
10174
昆币
22137 枚
地板  发表于: 2020-10-27 , 来自:江苏省0==
恭喜楼主  楼主您也可以来参加本届 《薇薇家居》家装日记大赛哦,参赛就有机会获得7888元现金!
https://bbs.kshot.com/read-htm-tid-6292703.html活动详情了解一下
爆料有奖!关注昆山论坛抖音号,抖音搜索“昆山论坛”,或搜索抖音号:ksbbs
 
在线朗通装饰
级别: 家装商家

发帖
16948
昆币
14157 枚
4楼 发表于: 2020-10-27 , 来自:江苏省0==

恭喜楼主开工大吉
欢迎后续多上传美图,我们会一直关注,
也邀请大家多看装修日记,多学装修心得!
装修日记:http://www.ksbbs.com/read-htm-tid-4497784.html  
公司网址:[url][urlend4] / (精彩案例邀您欣赏)
爆料有奖!关注昆山论坛抖音号,抖音搜索“昆山论坛”,或搜索抖音号:ksbbs
 
离线double木
级别: 昆山新人
发帖
261
昆币
272 枚
5楼 发表于: 2020-10-27 , 来自:江苏省0==
开工顺利
爆料有奖!关注昆山论坛抖音号,抖音搜索“昆山论坛”,或搜索抖音号:ksbbs
 
发帖
11504
昆币
15072 枚
6楼 发表于: 2020-10-27 , 来自:江苏省0==
开工顺利
爆料有奖!关注昆山论坛抖音号,抖音搜索“昆山论坛”,或搜索抖音号:ksbbs
 
离线LuoDaKuang
级别: 昆山新人
发帖
255
昆币
282 枚
7楼 发表于: 2020-10-28 , 来自:江苏省0==
恭喜楼主开工,以后常来更新哦
爆料有奖!关注昆山论坛抖音号,抖音搜索“昆山论坛”,或搜索抖音号:ksbbs
 
帅哥离线nonickname
级别: 昆山新人
发帖
386
昆币
2187 枚
8楼 发表于: 2020-10-28 , 来自:江苏省0==
老房子装修的第一步就是拆旧。瓷砖地板窗户都要拆掉重装,入户门也要更换掉。
由于小区装修的时间限定了,工作日只能早8点到下午5点期间装修,周六周日不能装修。
20号开始拆旧,目前还在进行中。



[ 此帖被nonickname在2020-10-28 12:36重新编辑 ]
爆料有奖!关注昆山论坛抖音号,抖音搜索“昆山论坛”,或搜索抖音号:ksbbs
 
快速回复
限76 字节
批量上传需要先选择文件,再选择上传
 
上一个 下一个