夜间模式
  • 82802阅读
  • 23回复

[求助问答]求中南世纪城装修案例 [复制链接]

上一主题 下一主题
发帖
1475
昆币
733 枚
9楼 发表于: 2021-02-25 , 来自:江苏省0==
美缝关注我
爆料有奖!关注昆山论坛抖音号,抖音搜索“昆山论坛”,或搜索抖音号:ksbbs
 
帅哥离线印象水仙设计
级别: 家装商家
发帖
11308
昆币
19358 枚
10楼 发表于: 2021-02-25 , 来自:江苏省0==
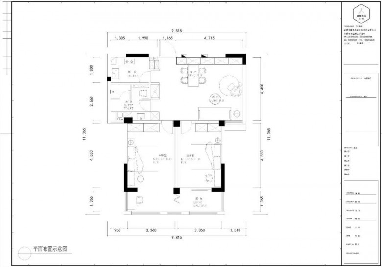
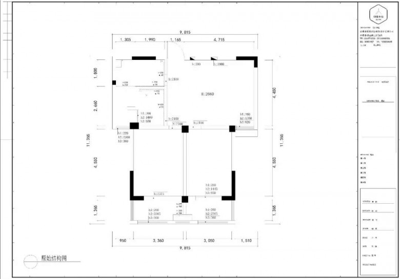
小编找到一家近期完工的一家实景案例,面积户型都跟你们家差不多,您可以做个初步参考,当然你们家户型还可以做其他不同的方案和风格, 这个具体你可以跟金钟微信详聊。




















[ 此帖被印象水仙设计在2021-02-25 14:47重新编辑 ]
本帖评分记录
大明法度 昆币 +1 -来自昆山论坛APP 2021-03-23
印象水仙设计 昆币 +1 -来自昆山论坛APP 2021-02-26
2条评分昆币+2
爆料有奖!关注昆山论坛抖音号,抖音搜索“昆山论坛”,或搜索抖音号:ksbbs
 
美女离线昆山伟宏门窗
级别: 禁止发言

发帖
18978
昆币
32400 枚
11楼 发表于: 2021-02-25 , 来自:江苏省0==
用户被禁言,该主题自动屏蔽!
爆料有奖!关注昆山论坛抖音号,抖音搜索“昆山论坛”,或搜索抖音号:ksbbs
 
美女离线荣盛门窗
级别: 禁止发言

发帖
7737
昆币
8552 枚
12楼 发表于: 2021-02-25 , 来自:江苏省0==
用户被禁言,该主题自动屏蔽!
爆料有奖!关注昆山论坛抖音号,抖音搜索“昆山论坛”,或搜索抖音号:ksbbs
 
帅哥离线印象水仙设计
级别: 家装商家
发帖
11308
昆币
19358 枚
13楼 发表于: 2021-02-26 , 来自:江苏省0==
元宵节快乐
爆料有奖!关注昆山论坛抖音号,抖音搜索“昆山论坛”,或搜索抖音号:ksbbs
 
美女离线大慈装饰
级别: 家装商家

发帖
20494
昆币
2276 枚
14楼 发表于: 2021-03-05 , 来自:江苏省0==
有一个中南世纪城19#的
爆料有奖!关注昆山论坛抖音号,抖音搜索“昆山论坛”,或搜索抖音号:ksbbs
 
大慈装饰  昆山推荐率85%以上,口碑品牌  热线:0512-57779948/18551100758 地址:昆山市九方城保利地产大楼1704-1710
级别: 昆山过客
发帖
76
昆币
120 枚
15楼 发表于: 2021-03-10 , 来自:江苏省0==
感觉没用客厅空间啊
爆料有奖!关注昆山论坛抖音号,抖音搜索“昆山论坛”,或搜索抖音号:ksbbs
 
发帖
6918
昆币
6420 枚
16楼 发表于: 2021-03-11 , 来自:江苏省0==
公司官网:[url][urlend2]
VR案例:[url][urlend4]  
精品案例:[url][urlend4]
我们的网址点开可以看到。
爆料有奖!关注昆山论坛抖音号,抖音搜索“昆山论坛”,或搜索抖音号:ksbbs
 
帅哥离线博洲装饰设计
级别: 禁止发言
发帖
1137
昆币
1301 枚
17楼 发表于: 2021-03-11 , 来自:江苏省0==
用户被禁言,该主题自动屏蔽!
爆料有奖!关注昆山论坛抖音号,抖音搜索“昆山论坛”,或搜索抖音号:ksbbs
 
发帖
6918
昆币
6420 枚
18楼 发表于: 2021-03-11 , 来自:江苏省0==
【寅盛装饰无毒家装】装修不环保砸掉重做,昆山十年,口碑见证!
                                                 公司官网:[url][urlend2]  
                                        VR案例:[url][urlend4]  
                                 精品案例:[url][urlend4]
城东店:昆山市太湖路588号,左岸尚海湾3-103商铺 ( 近震川东路,阳光水世界对面 )
昆山城北店:昆山市柏庐北路94号(柏庐大桥向北200米左右)
爆料有奖!关注昆山论坛抖音号,抖音搜索“昆山论坛”,或搜索抖音号:ksbbs
 
快速回复
限76 字节
如果您在写长篇帖子又不马上发表,建议存为草稿
 
上一个 下一个