懒到今天才动手写家装日记

房子地址:北城新境6号楼
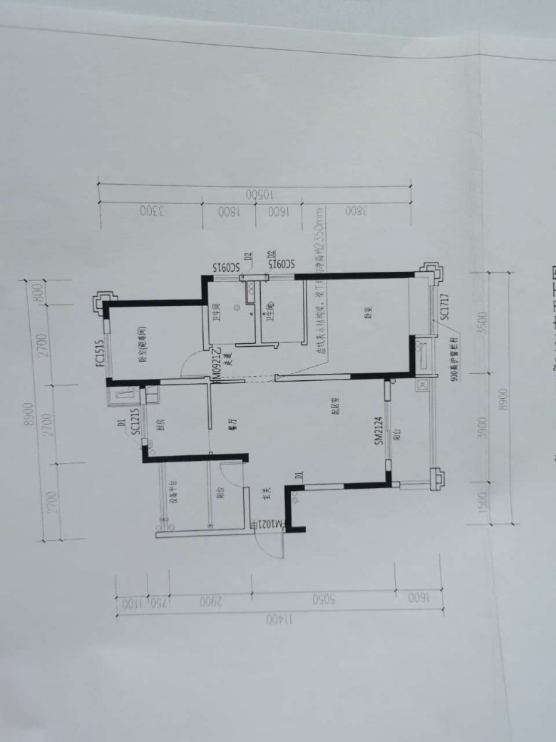
户型:三房两厅两卫
装修公司:大慈装饰
设计师:乔工
写在前面~
说起选择装修公司,那真是一条艰辛路…对于从未有过类似经验的人来说,真是一条道走到黑的感觉…但是本着接触就能了解,了解就能熟悉的原则,我和老公还是共同步入了漫漫装修路…同我们一起装的,还有我闺蜜夫妻~我们的拿房合同期是2021年1月31号,由于疫情分批拿房,我们被安排在1月25号拿房,等了一年多,终于要拿房的时候,反而也没什么特别的激动,就觉得晕乎乎的就拿了,让交什么钱就交了,哈哈!然后当时有装修公司免费验房,就体验了一番,除了一处无关紧要的空鼓,整体没有什么毛病~拿到房并不是麻烦的结束,而是麻烦的开始…从拿房前一个月,我们就已经开始看装修公司了。去过一家大店的门店,耗费4小时,最终没有定下来,是因为销售太多,不停给我们**,在我们要走的时候强留,体验感不好,关于设计倒是感觉还蛮投缘。也去过小点的装修公司,感觉我们这小三房设计也就大体一样了,并没有什么特别的新意,可能是因为太小,没什么好发挥的地方…拿房前看过5家小小的装修公司,因为不急,也并没有决定下来~拿房前,偶然的机会通过昆山论坛报名参加了免费量房设计的活动,拿房后的一周,也就是31号,监理联系了4家装修公司来我们家实地量房,他们分别是朗通/大慈/金螳螂/华庭宜居~不知道为什么,就是感觉比我自己看的要专业,也许是论坛的明星效应?哈哈!和监理小哥哥聊的也很开心,他也教授了我们一些装修经验,给他点赞在这之后,我们自己又看了4家左右,其中也包括论坛推荐的朗通和大慈,其他2家由于真的隔的太远,就没去看方案,但真不是因为他们不好,在此也要感谢和致歉另外两家~最终我们决定在我盆友介绍的一家和大慈两家之间择一~也不知道是因为和设计师聊的投缘,还是因为更加相信论坛,最终,在去过两次大慈(第一次是看方案,第二次是看预算报价)后,在2月的最后一天定下了大慈~装修前言到此终于告一段落,在松了一口气的同时,也开始了另一个担心…毕竟听说过装修是无底洞,装修公司坑多,等等之类关于装修的“黑内幕”,心里的忐忑自是不用说的…但是不管怎么样,既然选择了,就还是要相信,硬着头皮上吧~
先更新到这儿~手机打字真辛苦,哈哈…