夜间模式
  • 409497阅读
  • 111回复

天籁花园开贴,施工中 [复制链接]

上一主题 下一主题
级别: 昆山新人
发帖
151
昆币
203 枚
只看楼主 使用道具 电梯直达
楼主  发表于: 2021-10-19 , 来自:江苏省0==
家装日记
小区: 天籁花园
套内面积: 95 (平米)
预算: 30w 万
开工日期: 2021年9月1日
装修风格: 田园
装修方式:
装修公司: 印象水仙室内设计
    家里开工一个多月了,目前水电施工中,思来想去楼主决定在论坛占块地皮,为小家的装修过程做个简要记录,一为留下一份回忆,二也是请网友帮忙一起监督。      
     我从今年年初就开始筹划装修,却因各种事情一再耽搁,此间也比较了几家公司,我老婆最终被印象水仙设计的朱设计师的方案打动,身边朋友对他们公司的设计、施工评价也不错,就定了下来。      
      本来想做整装的,无奈本人圈子广,身边做建材的朋友不少,很多人早早就跟我打招呼,所谓盛情难却,就选择了半包,不过他们公司也有全案,后期看吧,性价比不错也可以选择;目前合作下来,感觉不错,项目经理效率挺高的,工序安排井井有条。希望春节前主材尽快安装结束,抢点工期。今天就先开个头,有空再来更新。


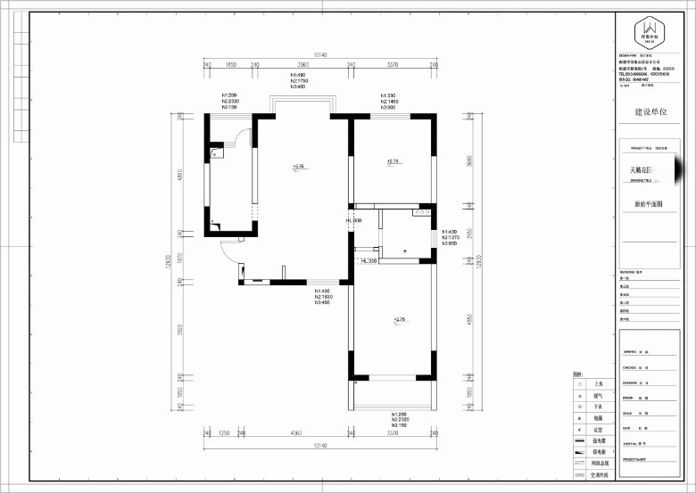
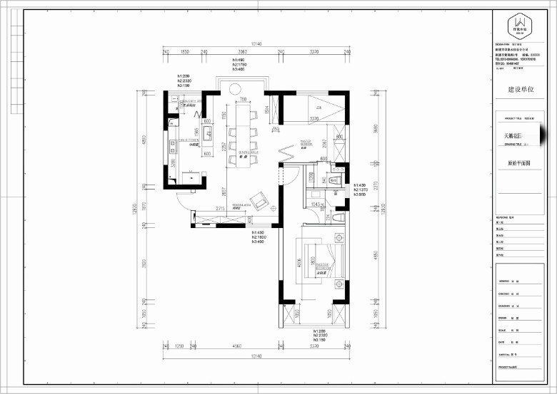
原始图和平面图,这可是设计师跟我的心血哈。






开工现场仪式感满满。



家里施工工地,前几天拍的。



本帖评分记录
印象水仙设计 昆币 +1 -来自昆山论坛APP 2023-03-03
至里设计整装 昆币 +1 -来自昆山论坛APP 2022-06-22
高茜茜 昆币 +1 -来自昆山论坛APP 2022-04-10
垂丝逸影 昆币 +1 -来自昆山论坛APP 2022-03-19
孙许 昆币 +1 -来自昆山论坛APP 2021-10-30
荣盛门窗 昆币 +1 -来自昆山论坛APP 2021-10-21
昆山伟宏门窗 昆币 +1 -来自昆山论坛APP 2021-10-20
7条评分昆币+7
爆料有奖!关注昆山论坛抖音号,抖音搜索“昆山论坛”,或搜索抖音号:ksbbs
 
发帖
6918
昆币
6420 枚
沙发  发表于: 2021-10-20 , 来自:江苏省0==
欢迎关注
【寅盛装饰无毒家装】装修不环保砸掉重做,昆山十年,口碑见证!
公司官网:[url][urlend2]  
VR案例:[url][urlend2]
精品案例:[url][urlend2]  
城东店:昆山市太湖路588号,左岸尚海湾3-103商铺 ( 近震川东路,阳光水世界对面 )
昆山城北店:昆山市柏庐北路94号( 柏庐大桥向北200米左右 )

爆料有奖!关注昆山论坛抖音号,抖音搜索“昆山论坛”,或搜索抖音号:ksbbs
 
离线秀目黛眉
级别: 昆山过客
发帖
89
昆币
129 枚
板凳  发表于: 2021-10-20 , 来自:江苏省0==
恭喜恭喜 ,这是老房吧
本帖评分记录
你是一只小鸟 昆币 +1 -来自昆山论坛APP 2021-10-20
1条评分昆币+1
爆料有奖!关注昆山论坛抖音号,抖音搜索“昆山论坛”,或搜索抖音号:ksbbs
 
美女离线昆山伟宏门窗
级别: 禁止发言

发帖
18978
昆币
32400 枚
地板  发表于: 2021-10-20 , 来自:江苏省0==
用户被禁言,该主题自动屏蔽!
爆料有奖!关注昆山论坛抖音号,抖音搜索“昆山论坛”,或搜索抖音号:ksbbs
 
帅哥离线年轻的烦恼
级别: 昆山新人
发帖
111
昆币
158 枚
4楼 发表于: 2021-10-20 , 来自:江苏省0==
这是学区房吧
本帖评分记录
你是一只小鸟 昆币 +1 -来自昆山论坛APP 2021-10-20
1条评分昆币+1
爆料有奖!关注昆山论坛抖音号,抖音搜索“昆山论坛”,或搜索抖音号:ksbbs
 
级别: 昆山新人
发帖
151
昆币
203 枚
5楼 发表于: 2021-10-20 , 来自:江苏省0==
年轻的烦恼:这是学区房吧 (2021-10-20 14:06) 

对的,为了孩子上学近一点
爆料有奖!关注昆山论坛抖音号,抖音搜索“昆山论坛”,或搜索抖音号:ksbbs
 
级别: 昆山新人
发帖
151
昆币
203 枚
6楼 发表于: 2021-10-20 , 来自:江苏省0==
简介:你们家拆除搞了多久 是自己请人还是印象水仙 (2021-10-20 16:18) 

印象水仙 中间隔了国庆及周末 进度还行吧
爆料有奖!关注昆山论坛抖音号,抖音搜索“昆山论坛”,或搜索抖音号:ksbbs
 
帅哥离线简介
级别: 昆山新人
发帖
245
昆币
342 枚
7楼 发表于: 2021-10-20 , 来自:江苏省0==
你们家拆除搞了多久 是自己请人还是印象水仙
本帖评分记录
sping0711 昆币 +1 -来自昆山论坛APP 2022-08-29
你是一只小鸟 昆币 +1 -来自昆山论坛APP 2021-10-20
2条评分昆币+2
爆料有奖!关注昆山论坛抖音号,抖音搜索“昆山论坛”,或搜索抖音号:ksbbs
 
级别: 昆山新人
发帖
151
昆币
203 枚
8楼 发表于: 2021-10-20 , 来自:江苏省0==
秀目黛眉:恭喜恭喜 ,这是老房吧 (2021-10-20 10:06) 

是的 学区老房
爆料有奖!关注昆山论坛抖音号,抖音搜索“昆山论坛”,或搜索抖音号:ksbbs
 
发帖
1475
昆币
733 枚
9楼 发表于: 2021-10-21 , 来自:江苏省0==
美缝关注一下
爆料有奖!关注昆山论坛抖音号,抖音搜索“昆山论坛”,或搜索抖音号:ksbbs
 
快速回复
限76 字节
批量上传需要先选择文件,再选择上传
 
上一个 下一个