夜间模式
  • 13616阅读
  • 1回复

[装修]精装房改造,他们家个性的完工落地风格,你能接受吗? [复制链接]

上一主题 下一主题
帅哥离线印象水仙设计
级别: 家装商家
发帖
11379
昆币
19479 枚
只看楼主 使用道具 电梯直达
楼主  发表于: 2022-03-24 , 来自:江苏省0==
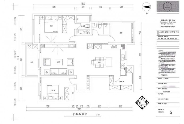
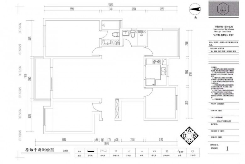
原始vs平面展示!


本案是一套三口之家的精装房局部改造项目,基于业主的需求、喜好及预算,原本四个卧室改成主卧、儿童房、儿童休闲区、储物间;比较大的改造区域就是厨房空间了,将原本封闭式厨房改成开放式厨房,通过空间氛围与色调上的匹配和墙漆色彩、全屋定制的再设计,以及在软装配饰和点缀空间氛围感的一些单品上选择了一些现代偏美式的元素,使整体空间得到融合,从而达到理想状态。











本帖评分记录
昆山伟宏门窗 昆币 +1 -来自昆山论坛APP 2022-03-28
1条评分昆币+1
爆料有奖!关注昆山论坛抖音号,抖音搜索“昆山论坛”,或搜索抖音号:ksbbs
 
美女离线昆山伟宏门窗
级别: 禁止发言

发帖
18978
昆币
32400 枚
沙发  发表于: 2022-03-28 , 来自:江苏省0==
用户被禁言,该主题自动屏蔽!
爆料有奖!关注昆山论坛抖音号,抖音搜索“昆山论坛”,或搜索抖音号:ksbbs
 
快速回复
限76 字节
如果您在写长篇帖子又不马上发表,建议存为草稿
 
上一个 下一个