夜间模式
  • 129841阅读
  • 70回复

“520”相约蛮好德,开始89平小家的蜕变之路! [复制链接]

上一主题 下一主题
帅哥离线一天天一年年
级别: 昆山过客
发帖
44
昆币
154 枚
只看楼主 使用道具 电梯直达
楼主  发表于: 2022-05-20 , 来自:江苏省0==
为了能让小孩在身边读书,硬着头皮在昆山买了房子,看房时候二手房装修好的看不到满意的,满意的又太贵,最后还是决定买毛胚自己慢慢折腾!从2021年五六月份开始看房,七月份跟中介签了合同办理贷款过户,中间出了点小插曲直接到2022年五月初才顺利过户,等待过户期间一直在论坛看装修公司,中途也有好几个公司去量了房报了价,最终还是选择了口碑跟工艺都不错的的蛮好德!希望合作一切顺利,开帖也是为了记录装修过程,文化水平有限,有不好地方请多担待,毕竟头一次装修,好多我也不懂!
希望装修完最终结果是,恩,不错,确实装的蛮好德!!!
本帖评分记录
亭林路人甲 昆币 +1 -来自昆山论坛APP 2022-08-23
飘洒自如 昆币 +1 -来自昆山论坛APP 2022-07-05
一天天一年年 昆币 +1 -来自昆山论坛APP 2022-06-12
蛮好德装饰 昆币 +1 -来自昆山论坛APP 2022-06-03
昆山伟宏门窗 昆币 +1 -来自昆山论坛APP 2022-05-28
5条评分昆币+5
爆料有奖!关注昆山论坛抖音号,抖音搜索“昆山论坛”,或搜索抖音号:ksbbs
 
帅哥离线一天天一年年
级别: 昆山过客
发帖
44
昆币
154 枚
沙发  发表于: 2022-05-20 , 来自:江苏省0==
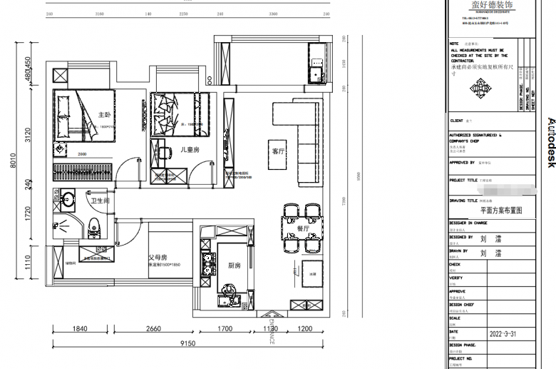
房型图,经过刘澐的设计,是真的把能用的地方都用到了!
爆料有奖!关注昆山论坛抖音号,抖音搜索“昆山论坛”,或搜索抖音号:ksbbs
 
帅哥离线一天天一年年
级别: 昆山过客
发帖
44
昆币
154 枚
板凳  发表于: 2022-05-20 , 来自:江苏省0==
另外前面看论坛说有第三方监理公司可以全程监理,三月初的时候找了论坛小装同学推荐了第三方监理安心装,购买了十四次装修过程监管加签合同陪同!签合同当天跟安心装监理马如加老师一起到场,好多细节问题都替我想到了,也跟装修公司沟通好,当时就感觉专业的事情还需要找专业的人才行!!!
爆料有奖!关注昆山论坛抖音号,抖音搜索“昆山论坛”,或搜索抖音号:ksbbs
 
帅哥离线左尚明舍
级别: 昆山新人
发帖
283
昆币
341 枚
地板  发表于: 2022-05-21 , 来自:江苏省0==
爆料有奖!关注昆山论坛抖音号,抖音搜索“昆山论坛”,或搜索抖音号:ksbbs
 
级别: 昆山过客
发帖
30
昆币
29 枚
4楼 发表于: 2022-05-23 , 来自:江苏省0==
这个装修公司怎么样啊?
楼中楼
  • 2022-05-24 09:36 蛮好德装饰: 您好 楼主 家里有装修需求 欢迎来我们家看看
  • 2022-05-24 22:00 一梦一千年: 哈哈 你家基装大概什么价位?
  • 2022-05-24 22:21 蛮好德装饰: 1000-1200
  • 2022-05-24 23:58 一梦一千年: 套内面积还是建筑面积?
  • 2022-05-25 07:06 蛮好德装饰: 建筑面积
  • 2022-05-25 09:02 一梦一千年: 不是套内面积才装修吗?建筑面积 那公摊又不用装修
  • 2022-05-25 18:59 一天天一年年: 怎么说呢,看了大半年论坛,最后还是选了他家,至少感觉他家老板还有下面设计人都还不错!我家也是刚开始装修,你可以没事看看我的帖子,后面我会慢慢更新直到结束!
  • 2022-06-03 22:06 终会成功: 你好基装就是硬装的意思吗?包括哪些内容?
  • 2022-06-03 22:56 蛮好德装饰: 只有水电是按建筑面积收费,其它都是套内实用面积收费的哦。
  • 2022-06-03 22:58 蛮好德装饰: 前期拆除 砌墙 水电 瓦工 木工 油漆 包工包料,这些基础硬装部分是我们做的,如有特殊要求也可以写进报价,根据业主的需求以及要求来做的。
  • 2022-06-04 08:39 终会成功: 不懂,做完这些是不是买好沙发和床就能入住啦?
  • 2022-06-04 09:33 蛮好德装饰: 不是,还有软装跟家电需要自己购买。
爆料有奖!关注昆山论坛抖音号,抖音搜索“昆山论坛”,或搜索抖音号:ksbbs
 
级别: 昆山过客
发帖
12
昆币
12 枚
5楼 发表于: 2022-05-23 , 来自:江苏省0==
恭喜楼主开工啦
楼中楼
  • 2022-05-25 19:00 一天天一年年: 谢谢
爆料有奖!关注昆山论坛抖音号,抖音搜索“昆山论坛”,或搜索抖音号:ksbbs
 
级别: 昆山新人
发帖
422
昆币
446 枚
6楼 发表于: 2022-05-23 , 来自:江苏省0==
回 一天天一年年 的帖子
一天天一年年:另外前面看论坛说有第三方监理公司可以全程监理,三月初的时候找了论坛小装同学推荐了第三方监理安心装,购买了十四次装修过程监管加签合同陪同!签合同当天跟安心装监理马如加老师一起到场,好多细节问题都替我想到了,也跟装修公司沟通好,当时就感觉专业的事情还需要找专业的人 .. (2022-05-20 16:27)

这点确实,我都没有想到,主要是没有这个意识
楼中楼
  • 2022-05-25 19:01 一天天一年年: 监理也是逛论坛,看别人的装修日记才看到的!我感觉请一个还是有必要的
爆料有奖!关注昆山论坛抖音号,抖音搜索“昆山论坛”,或搜索抖音号:ksbbs
 
美女离线昆山九鼎装饰
级别: 昆山新人
发帖
129
昆币
951 枚
7楼 发表于: 2022-05-24 , 来自:江苏省0==
有需要装修的欢迎来我们店里咨询了解
楼中楼
  • 2022-05-25 19:02 一天天一年年: 已经定好啦!感谢!
爆料有奖!关注昆山论坛抖音号,抖音搜索“昆山论坛”,或搜索抖音号:ksbbs
 
美女离线装修版客服
发帖
10174
昆币
22137 枚
8楼 发表于: 2022-05-25 , 来自:江苏省0==
恭喜楼主哦,期待你的毕业照
楼中楼
  • 2022-05-25 19:03 一天天一年年: 谢谢,毕业还有两三个月!
爆料有奖!关注昆山论坛抖音号,抖音搜索“昆山论坛”,或搜索抖音号:ksbbs
 
帅哥离线一天天一年年
级别: 昆山过客
发帖
44
昆币
154 枚
9楼 发表于: 2022-05-27 , 来自:江苏省0==
23号动工到今天27号,墙敲了,墙固刷好了,今天水电交底了,一下子过来好多人,,等待下个星期做水电了!





爆料有奖!关注昆山论坛抖音号,抖音搜索“昆山论坛”,或搜索抖音号:ksbbs
 
快速回复
限76 字节
如果您提交过一次失败了,可以用”恢复数据”来恢复帖子内容
 
上一个 下一个