夜间模式
  • 84469阅读
  • 20回复

花桥鑫苑世家,将小窝生活品质升级,装修记录~ [复制链接]

上一主题 下一主题
离线一哄而散
级别: 昆山新人
发帖
119
昆币
196 枚
只看楼主 使用道具 电梯直达
楼主  发表于: 2022-06-28 , 来自:江苏省0==
最近看好多朋友都在记录着家里的装修日记,我每天也时不时来论坛转悠,自己家装修到油漆阶段了,现在来更新也不算太迟。

下面的施工现场是我20号左右拍的,存在手机里的,我们家施工现场向来还是很整洁的,垃圾有序安排堆放,尤其是师傅们的素质很高,从哪几点呢:1、卫生 2、在外面解决自己的小号、大号 3、沟通 4、手艺活 5、性格和善 。
不得不说,印象水仙金总很会选人!





本帖评分记录
海阔天空i 昆币 +1 -来自昆山论坛APP 2023-04-29
装修监理 昆币 +1 -来自昆山论坛APP 2022-10-22
陌生的旋律 昆币 +1 -来自昆山论坛APP 2022-10-22
开心一刻 昆币 +1 -来自昆山论坛APP 2022-09-13
78637638 昆币 +1 -来自昆山论坛APP 2022-06-29
梦苒 昆币 +1 -来自昆山论坛APP 2022-06-28
装修版客服 昆币 +10 鼓励分享 2022-06-28
陌路人甲 昆币 +1 -来自昆山论坛APP 2022-06-28
昆山伟宏门窗 昆币 +1 -来自昆山论坛APP 2022-06-28
9条评分昆币+18
爆料有奖!关注昆山论坛抖音号,抖音搜索“昆山论坛”,或搜索抖音号:ksbbs
 
离线一哄而散
级别: 昆山新人
发帖
119
昆币
196 枚
沙发  发表于: 2022-06-28 , 来自:江苏省0==
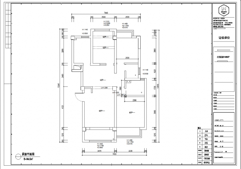
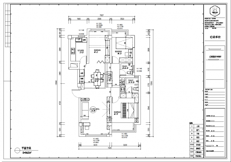
这是我们家平面改造图,记得当时设计沟通了半个月,哈哈,别看目前这样一看哪哪儿都是应该这样做,其实一开始还真的很纠结。



爆料有奖!关注昆山论坛抖音号,抖音搜索“昆山论坛”,或搜索抖音号:ksbbs
 
离线一哄而散
级别: 昆山新人
发帖
119
昆币
196 枚
板凳  发表于: 2022-06-28 , 来自:江苏省0==
家里新风地暖都安排上了,自然完工效果不能落伍,我喜欢的风格如下,我们家效果部分。







爆料有奖!关注昆山论坛抖音号,抖音搜索“昆山论坛”,或搜索抖音号:ksbbs
 
美女离线昆山伟宏门窗
级别: 禁止发言

发帖
18978
昆币
32400 枚
地板  发表于: 2022-06-28 , 来自:江苏省0==
用户被禁言,该主题自动屏蔽!
爆料有奖!关注昆山论坛抖音号,抖音搜索“昆山论坛”,或搜索抖音号:ksbbs
 
美女离线草莓屁屁
级别: 禁止发言
发帖
8968
昆币
42509 枚
4楼 发表于: 2022-06-28 , 来自:江苏省0==
用户被禁言,该主题自动屏蔽!
爆料有奖!关注昆山论坛抖音号,抖音搜索“昆山论坛”,或搜索抖音号:ksbbs
 
帅哥离线印象水仙设计
发帖
11322
昆币
19389 枚
5楼 发表于: 2022-06-28 , 来自:江苏省0==
嘻嘻,感谢好评
爆料有奖!关注昆山论坛抖音号,抖音搜索“昆山论坛”,或搜索抖音号:ksbbs
 
离线hello-mi
发帖
1214
昆币
2112 枚
6楼 发表于: 2022-06-28 , 来自:江苏省0==
和毛坯不是一个房子吧
爆料有奖!关注昆山论坛抖音号,抖音搜索“昆山论坛”,或搜索抖音号:ksbbs
 
美女离线装修版客服
发帖
10174
昆币
22137 枚
7楼 发表于: 2022-06-28 , 来自:江苏省0==
恭喜
爆料有奖!关注昆山论坛抖音号,抖音搜索“昆山论坛”,或搜索抖音号:ksbbs
 
离线xiaowei300
级别: 昆山新人
发帖
159
昆币
261 枚
8楼 发表于: 2022-06-28 , 来自:江苏省0==
广告实锤
楼中楼
  • 2022-07-01 00:03 恬淡自如: 好像是真业主
爆料有奖!关注昆山论坛抖音号,抖音搜索“昆山论坛”,或搜索抖音号:ksbbs
 
帅哥离线小宝的橙子
级别: 昆山新人
发帖
419
昆币
3865 枚
9楼 发表于: 2022-06-28 , 来自:江苏省0==
效果图真不错,希望实物会更好
本帖评分记录
恬淡自如 昆币 +1 -来自昆山论坛APP 2022-07-01
1条评分昆币+1
爆料有奖!关注昆山论坛抖音号,抖音搜索“昆山论坛”,或搜索抖音号:ksbbs
 
快速回复
限76 字节
批量上传需要先选择文件,再选择上传
 
上一个 下一个