夜间模式
  • 262097阅读
  • 45回复

新家开始装修了 特别激动 [复制链接]

上一主题 下一主题
离线梦人说话
级别: 昆山过客
发帖
86
昆币
353 枚
只看楼主 使用道具 电梯直达
楼主  发表于: 2022-08-25 , 来自:江苏省0==
家装日记
小区: 公元壹号四期
套内面积: 99 (平米)
预算: 17 万
开工日期: 2022年8月4号
装修风格: 简约
装修方式: 全包
装修公司: 寅盛装饰
新家要开始装修了!啦~啦~啦~啦!


我人生的第一套房,我和老公跑了不下10家装修公司,最后确定了一家。
主要是设计师非常专业,沟通特别顺畅。
我大概讲了一下自己的想法,包括入室门,卫生间和客厅,以及衣柜的要求。
设计师连夜做了设计,二天方案就出来了,当时特别感动。
然后,设计师按照我们的要求,修改了不下10遍设计稿,完善各种细节。
做为一个装修小白,我装修前参考了很多视频,了解一些装修容易入的坑,以防万一。
但是说实话 ,我从来没有想过要自己装修,毕竟工作太忙。
我一直认为:专业的事情还是交给专业的人去做,所以我选择了全包。
很多人担心被坑,担心装修费用后期会增加。
其实避坑很简单,所以的条件都要在合同上一一列出,只要工艺、材料不变,费用不会增加。
今天准备抽空去看看装修进度!
本帖评分记录
落叶松11 昆币 +1 -来自昆山论坛APP 2023-02-10
嘻嘻希希 昆币 +1 -来自昆山论坛APP 2023-02-03
锦度装饰 昆币 +1 -来自昆山论坛APP 2023-02-02
炅然 昆币 +1 -来自昆山论坛APP 2022-09-21
嘟乐宝 昆币 +1 -来自昆山论坛APP 2022-09-04
开心一刻 昆币 +1 -来自昆山论坛APP 2022-09-02
昆山伟宏门窗 昆币 +1 -来自昆山论坛APP 2022-08-29
7条评分昆币+7
爆料有奖!关注昆山论坛抖音号,抖音搜索“昆山论坛”,或搜索抖音号:ksbbs
 
帅哥离线zfq57446265
级别: 昆山新人
发帖
363
昆币
515 枚
沙发  发表于: 2022-08-25 , 来自:江苏省0==
  
爆料有奖!关注昆山论坛抖音号,抖音搜索“昆山论坛”,或搜索抖音号:ksbbs
 
帅哥离线1918设计
级别: 禁止发声
发帖
9059
昆币
10185 枚
板凳  发表于: 2022-08-25 , 来自:江苏省0==

恭喜楼主开工大吉
壹玖壹捌·设计专家 - 高品质绿色家装创造者
官方网站:[url][urlend4]
地址:柏庐北路340-342(花园路向北100米左右)
爆料有奖!关注昆山论坛抖音号,抖音搜索“昆山论坛”,或搜索抖音号:ksbbs
 
在线朗通装饰
级别: 家装商家

发帖
16993
昆币
14234 枚
地板  发表于: 2022-08-25 , 来自:江苏省0==

恭喜楼主开工大吉

欢迎后续多上传美图
也邀请大家多看装修日记,多学装修心得!

爆料有奖!关注昆山论坛抖音号,抖音搜索“昆山论坛”,或搜索抖音号:ksbbs
 
离线梦人说话
级别: 昆山过客
发帖
86
昆币
353 枚
4楼 发表于: 2022-08-25 , 来自:江苏省0==
虽然天热但是还是忍不住去看了。
前几天去看的时候,
墙已经敲掉了,工人师傅正在砌墙……








今天去看的时候发现墙已经起好了,水电进场了……
[ 此帖被梦人说话在2022-08-25 14:49重新编辑 ]
爆料有奖!关注昆山论坛抖音号,抖音搜索“昆山论坛”,或搜索抖音号:ksbbs
 
离线梦人说话
级别: 昆山过客
发帖
86
昆币
353 枚
5楼 发表于: 2022-08-26 , 来自:江苏省0==
昨天晚上我老公去看了一下
发现工人师傅正在往墙上涂黄色的东西
人家告诉他这叫——墙堌
他一脸懵逼
我给他说 不懂就问 不丢人






爆料有奖!关注昆山论坛抖音号,抖音搜索“昆山论坛”,或搜索抖音号:ksbbs
 
美女离线昆山伟宏门窗
级别: 禁止发言

发帖
18978
昆币
32400 枚
6楼 发表于: 2022-08-29 , 来自:江苏省0==
用户被禁言,该主题自动屏蔽!
爆料有奖!关注昆山论坛抖音号,抖音搜索“昆山论坛”,或搜索抖音号:ksbbs
 
离线梦人说话
级别: 昆山过客
发帖
86
昆币
353 枚
7楼 发表于: 2022-08-29 , 来自:江苏省0==
昨天去看了新房装修进展
水电已经开始了
天还挺热的
装修师傅辛苦了


[attachment=6236446]
[ 此帖被梦人说话在2022-08-29 15:52重新编辑 ]
爆料有奖!关注昆山论坛抖音号,抖音搜索“昆山论坛”,或搜索抖音号:ksbbs
 
离线梦人说话
级别: 昆山过客
发帖
86
昆币
353 枚
8楼 发表于: 2022-08-30 , 来自:江苏省0==
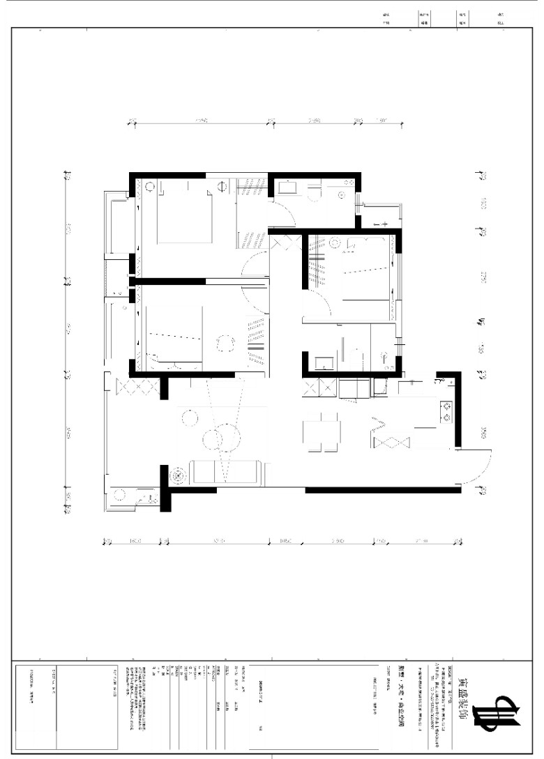
今天仔细看了我的设计图
三室一厅的房子
套内90多个平方
南北通透
两个卧室和客厅都靠南
主卧大点
北面的卧室稍微小点
总的来说户型比较方正

爆料有奖!关注昆山论坛抖音号,抖音搜索“昆山论坛”,或搜索抖音号:ksbbs
 
美女离线装修版客服
发帖
10174
昆币
22137 枚
9楼 发表于: 2022-08-30 , 来自:江苏省0==
恭喜楼主,后期也要常来分享哦
爆料有奖!关注昆山论坛抖音号,抖音搜索“昆山论坛”,或搜索抖音号:ksbbs
 
快速回复
限76 字节
如果您在写长篇帖子又不马上发表,建议存为草稿
 
上一个 下一个