夜间模式
打赏中心
每日签到
幸运转盘
论坛帮助
活动聚焦
手机客户端
道具中心
商家认证
勋章中心
诚信认证
快捷通道
关闭
您还没有登录,快捷通道只有在登录后才能使用。
立即登录
还没有帐号? 赶紧
注册一个
论坛首页
论坛导航
商家
招聘
装修
昆山优选
小红娘
分类信息
二手房
昆山视窗
登录
注册
找回密码
帖子
用户
版块
帖子
搜索
论坛首页
>
论坛导航
>
酸甜苦辣话装修
>
大慈装饰
>
Re:★★【大慈设计】10年+设计服务16载、3000+户幸福家庭入住 ★ ..
发帖
回复
返回列表
新帖
19061
阅读
0
回复
Re:★★【大慈设计】10年+设计服务16载、3000+户幸福家庭入住 ★★
[复制链接]
扫描到手机
论坛小编教你如何扫二维码
上一主题
下一主题
美女离线
大慈装饰
UID:597111
注册时间
2013-05-29
最后登录
2026-04-08
发帖
20533
搜Ta的帖子
精华
0
昆币
2369
访问TA的空间
加好友
用道具
级别:
家装商家
发帖
20533
昆币
2369 枚
加关注
发消息
只看楼主
使用道具
电梯直达
楼主
发表于: 2022-09-19
,
来自:江苏省
0==
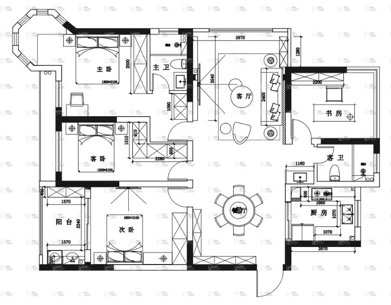
本期案例
案例信息:大慈设计装饰
项目地点:城西印象12#4**
项目类型:四房二厅一厨二卫二阳
项目性质:全案
面 积:133㎡
项目风格:现代简约
设 计 师:大慈装饰 王工
设计理念:艺术的使命不是模仿自然而是表现自然,而艺术带给我们的喜悦应是我们的感官与美的事物相互结合,发现一种新的生活方式,让自然与人营造出一处有感情的居住空间,并通过时间的沉淀留下美好的记忆与温度。
布置图
客厅主色调设计白色,灰色以及小部分黑色,空间温馨舒适,软装搭配撞色为客厅添加许多高级感,整体空间给人带来前卫、不受拘束的感觉,背景墙石材与木饰面的组合现代时尚,完美契合简约高级调性,起到和谐的视觉效果,茶几上摆放一株日本吊钟同时也为整个客厅添加了一抹自然之色,引导人融入当下。
生活方式的演变,餐厅是最能体现生活仪式感的空间。金属、玻璃和石材的粲然光感完美交融,营造出空间的优雅美好,凝结着都市生活的轻奢享受!
【联系我们】
苏州.昆山大慈装饰设计工程有限公司
深耕昆山十多年,落地设计,口碑见证,昆山不大做的是品牌和圈子
设计中心地址:昆山玉山镇九方城保利地产大厦1704-1710室
展示中心地址:昆山玉山镇九方城保利地产大厦1706室
工程管理中心:昆山柏庐北路156号(柏庐北路 与娄苑路 交叉口)
电话:0512-57779948、QQ:958938158 VX:18551100785
更多精彩作品案例请点:
https://[url][urlend6]/u/957jOrkvrw4
本帖评分记录
苏-昆
昆币
+1
-来自
昆山论坛APP
2022-09-19
共
1
条评分
,
昆币
+1
热点推荐
盘点苏州大市150以上超高楼,园区50座昆山12座
时间定了!这项国家级赛事落地昆山夏驾河
昆山兵希学子拾金不昧,雷锋精神永放光芒
讨论下这种情况下你们会怎么做
锦绣乾昆 同心同行!昆山农商银行2026春季校园招聘
年产值超60亿元!昆山两大“智造”项目启动
4/8:内贸销售.外贸跟单.物流助理.业助.机械设计.保安.保洁.电工.学徒.新媒体运营
苏超苏州赛区赞助商公布!昆山两家企业入选!
清陶(昆山)能源发展集团股份有限公司向港交所提交上市申请书
首份!昆山市发布市民核心避险技能推荐清单
最新消息!昆山白马泾站TOD核心区旧房拆除,城市更新再进一步
企业职工基本养老保险关系转移有时间、次数限制吗?
昆山首个宋韵全维实景示范区
更真实更放心!昆山论坛婚恋平台上线
关注昆山论坛抖音官方号ksbbs爆料有奖
昆山论坛招聘网,随时随地找工作
一秒极速下载昆山论坛APP,好玩
昆山分类信息重磅发布 闲置可以换钱
爆料有奖!关注昆山论坛抖音号,抖音搜索“昆山论坛”,或搜索抖音号:ksbbs
大慈装饰 昆山推荐率85%以上,口碑品牌 热线:0512-57779948/18551100758 地址:昆山市九方城保利地产大楼1704-1710
回复
举报
发帖
回复
返回列表
https://ksbbs.com
访问内容超出本站范围,不能确定是否安全
继续访问
取消访问
快速回复
限76 字节
如果您在写长篇帖子又不马上发表,建议存为草稿
您目前还是游客,请
登录
或
注册
进入高级模式
文字颜色
发 布
回复后跳转到最后一页
上一个
下一个
隐藏
快速跳转
社会民生
聚焦昆山
立法直通车
昆山分类信息
昆山市教育局
昆山公交集团
昆山市交通运输局
消费维权
美丽昆山
昆山百事通
文明昆山
全民反诈
城市生活
玉山广场
昆友圈
走遍天下
昆山招聘
KBS车友会
昆山体育
房产装修
房产大家谈
房产租售
酸甜苦辣话装修
生活资讯
家有儿女
美食天地
花草宠物
交友婚恋
闲花文字
数码摄影
认证商家
论坛商家
昆山商情
社区站务
论坛事务
删帖声明
关闭
关闭
选中
1
篇
全选
喜欢就打赏个小红包吧
请选择打赏金额
1元
5元
10元
30元
100元
200元
您是游客,登陆后可以使用赏金钱包
赏金钱包支付
微信扫码支付
赏
我要提现
用微信扫描二维码完成支付
电话:0512-57993030
工作日 8:30-17:00在线
广告热线:18012662666
紧急联系:18888186330